JI JIAN SHI YI
作品详情
  • Details of the work 标题横线
    头像或者logo
    图片 李娜 丽水几支传媒特约推荐
    城市:丽水
    公司: 丽水市颠锋视界设计装饰有限公司
    参赛作品: 极简诗意
    空间类型:别墅
    个人/公司简介:
    第四届DESIGN FOCUS国际空间设计大奖别墅豪宅空间设计.优秀奖 DESIGN FOCUS 城市精英名师榜2023-2024年度先锋设计师(丽水赛区) 4040当代设计接触青年中国丽水 金堂奖2022年城市(丽水)十佳 DESIGN FOCUS国际空间设计大奖年度住宅公寓空间设计.优秀奖 【设享家】第二届样板房设计大赛TOP10 【设享家】第三届样板房设计大赛TOP10 2019【设享家】样板房设计大赛年度TOP10 【设享家】第五届公共空间设计大赛铜奖 华鼎奖银奖
    设计说明 | Design Instruction
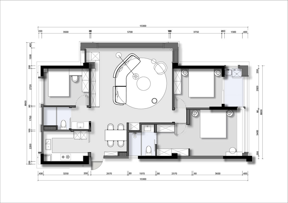
  • 项目定位:艺术家具与简约空间的完美融合,光影运用与空间布局的优雅趣味。 将现代与复古相结合,大面积的浅色为主,辅以深色的搭配,让空间更有层次感。 空间布局:1.我们拆掉了全屋所有非承重墙,重新梳理划分空间格局,由此串联起了由起居室到各个不同房间的趣味动线。 2.将可拓展的空间纳入客厅,进行了空间的扩大。 3.将门边柜子区域还有主卫空间进行改造,将餐厅设计在此处,拉近了厨餐距离,让空间动线更合理的同时,打造了大客厅的视觉感受。 设计选材:1.将老房子里的老物件进行改造,自己动手重新打磨刷黑漆改造成扫地机器人的罩子还有一张小凳子。 2.取消了大理石和岩板灯材料,运用石膏板做了电视背景墙造型,轻装修,重装饰。
  • 图片
  • 图片
  • 图片
  • 图片
  • 图片
  • 图片
  • 图片
  • 图片
  • 图片
  • 图片
  • 图片
  • 图片
  • 图片
  • 图片
  • 图片
  • 图片
  • 图片
  • 图片
  • 图片
  • 图片
  • 图片
  • 图片
  • 图片
  • 图片
  • 图片
  • 上一个 下一个
    2024第八届金腾奖 私宅(独居)丨私宅(多人居)丨餐饮丨酒店丨办公丨商业丨公共丨公益丨人物丨NEW100 jintengAWARD(小金_金腾奖组委会) 广州市海珠区琶洲大道68号华新中心21楼
    金腾奖视频号 金腾奖小红书号 监制:刘译遥
    统筹:张俊媚
    运营:赖钰炼 曹凯月 刘芳棋 小金
    新媒体:王贝贝 严洁 张文一
    技术:黄天佑 丁德昌
    最终解释权归金腾奖主办方所有