当中古遇上现代
作品详情
  • Details of the work 标题横线
    头像或者logo
    图片 李娜 丽水几支传媒特约推荐
    城市:丽水
    公司: 丽水市颠锋视界设计装饰有限公司
    参赛作品: 当中古遇上现代
    空间类型:别墅
    个人/公司简介:
    第四届DESIGN FOCUS国际空间设计大奖别墅豪宅空间设计.优秀奖 DESIGN FOCUS 城市精英名师榜2023-2024年度先锋设计师(丽水赛区) 4040当代设计接触青年中国丽水 金堂奖2022年城市(丽水)十佳 DESIGN FOCUS国际空间设计大奖年度住宅公寓空间设计.优秀奖 【设享家】第二届样板房设计大赛TOP10 【设享家】第三届样板房设计大赛TOP10 2019【设享家】样板房设计大赛年度TOP10 【设享家】第五届公共空间设计大赛铜奖 华鼎奖银奖
    设计说明 | Design Instruction
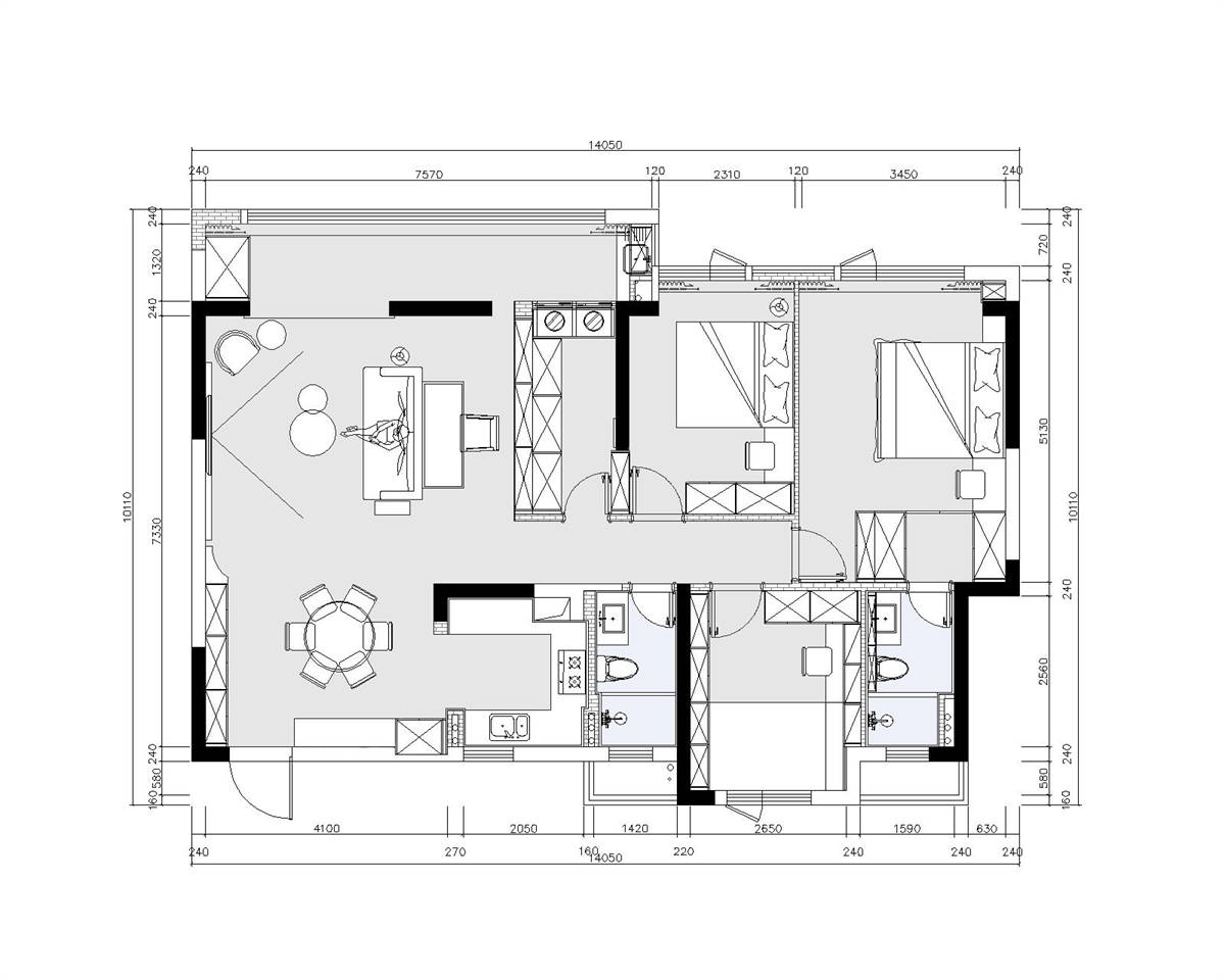
  • 项目定位: 混搭中古风潮,光线轻盈流动,强调空间敞开与功能融合,配备具有功能与美观的物件,勾勒出别具一格的层次感与格调感。 空间意境:现代与中古混搭。 极简的空间,配上艺术感十足的家具。布艺温柔舒适,木质温润隽永。 空间布局: 1将原建筑空间进行了重新分隔,将储物空间衣帽间和洗衣房进行了联动,通过百叶窗将两个空间分隔。这一设计解决了原建筑阳台宽度不够无法拥有洗衣机,烘干机的同时拥有舒适的洗衣池,同时通过百叶窗将两个空间联通,方便衣物的收纳整理,同时也让储物间能够更通风,更敞亮,让洗衣空间根据舒适性和趣味性。 2设置了开放式书房,融于客厅,创造更加开阔灵活的公共空间。因原建筑客厅处有一堵承重墙无法拆除,影响客厅的开阔性和采光,所以在设计上利用承重柱和书柜进行了光线穿透的设计,让光线能透过镂空处照进来。 3.利用承重柱的位置,将阳台抬高,做了取景框的设计,借助窗外的景色让休闲阳台的空间营造出一副美丽的画卷。 设计选材: 1.收罗了老木百叶窗进行打磨油漆,再根据木百叶窗的尺寸改造储物间的窗户大小以及高度,变废为宝。 2.墙面和顶面通刷了艺术涂料,自带故事感的自然肌理,搭配胡桃木、亚麻、藤编等材质,点缀些许绿植,让人真切的感受到整个空间的生机。 在这样一个纯粹而松弛的家里,每个角落都能感受到生活的烟火气。 3.取消了大理石和岩板灯材料,运用石膏板做了电视背景墙造型,轻装修,重装饰。 用户体验:八年前的老客户二套房装修,觉得空间规划很符合他们的生活和色彩搭配很让人眼前一亮,每一个装修细节都很上心,做到事无大小面面聚到,就像是装修自己的家一样。搬新家的时候收到了亲朋好友一致好评,觉得很舒适。
  • 图片
  • 图片
  • 图片
  • 图片
  • 图片
  • 图片
  • 图片
  • 图片
  • 图片
  • 图片
  • 图片
  • 图片
  • 图片
  • 图片
  • 图片
  • 图片
  • 图片
  • 图片
  • 图片
  • 图片
  • 图片
  • 图片
  • 上一个 下一个
    2024第八届金腾奖 私宅(独居)丨私宅(多人居)丨餐饮丨酒店丨办公丨商业丨公共丨公益丨人物丨NEW100 jintengAWARD(小金_金腾奖组委会) 广州市海珠区琶洲大道68号华新中心21楼
    金腾奖视频号 金腾奖小红书号 监制:刘译遥
    统筹:张俊媚
    运营:赖钰炼 曹凯月 刘芳棋 小金
    新媒体:王贝贝 严洁 张文一
    技术:黄天佑 丁德昌
    最终解释权归金腾奖主办方所有