流光慕白·心向温暖
作品详情
  • Details of the work 标题横线
    头像或者logo
    图片 王琦 瞰设计特约推荐
    城市:天津
    公司: 知之厘
    参赛作品: 流光慕白·心向温暖
    空间类型:别墅
    个人/公司简介:
    王琦从业7年+白羊座 90后设计师一枚 知之厘空间设计研究室主创设计师 设计思考: 随着专业于设计这个行业的时间越长,我也越来越能感受到设计真正的作用和价值。在不断地解决问题,创造空间的同时,也得到了很多业主的正向反馈。设计的过程也是在思考一种新的生活方式,如何能够在使用功能上更加的有效化?同时我们希望生活在空间中的人感受到的是什么样的空间场域? 设计是能够治愈人心的。每当看到业主正式入住后开心的享受着新的生活时,这种感觉也会愈加的强烈,也会愈加的肯定和坚信深耕于设计的道路。 艺术不仅仅源于生活,高于生活,它还反哺治愈生活。其实,设计也是如此。履历、荣誉、职务、设计理念等。
    设计说明 | Design Instruction
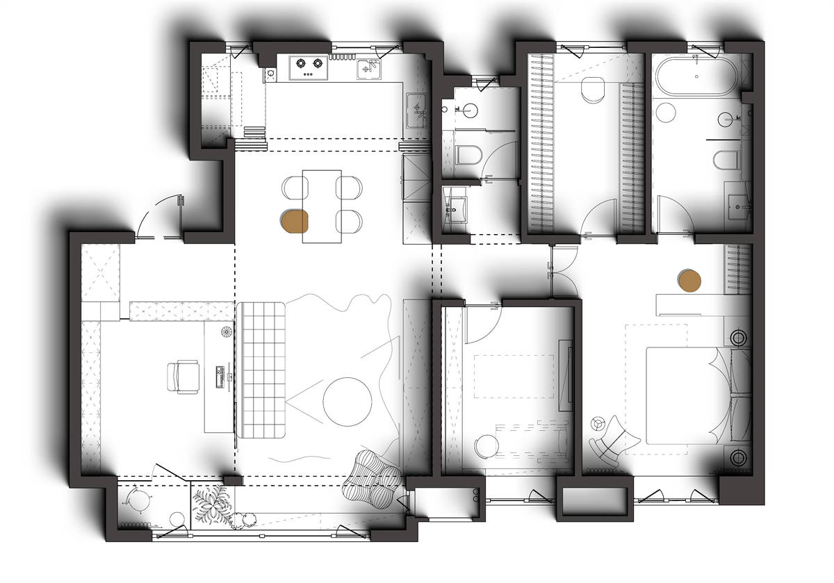
  • 一对中韩夫妻的浪漫屋。由于工作的关系,他们往往于午后才开启新一天的生活。繁忙的工作让他们缺失了一些户外乐趣,家门里不但包含日常起居和办公必备空间,还有娱乐休闲等多种生活状态。 业主夫妻从事在线教育工作,工作时间从下午两点至夜晚,上午一般在补眠或者备课。日常几乎是生活和工作之间转场,好在他们有很多爱好,这些可以成为生活中的调剂品。设计师对业主的生活习惯做了详细的调研,把小意趣揉进空间里,让这个家既舒适,又解压。 宽厅是两位业主共享时间最长的空间,设计师将其规划为一半生活属性,一半工作属性。工作区旁边的阳台改为男业主专属的吸烟区,女业主喜欢做手作和收藏,家中的收纳体系也随之升级,精细分为:收纳、储藏和展示三种空间。夫妻俩不但爱看书、观影,还是非常合拍的K歌搭子,多种休闲放松模式都集中于宽厅。 家,作为他们的综合补给站,除了考虑生活的舒适性,还要缓解重复工作的单调性,以及长时间宅家的审美疲劳。 在空间设计上,硬装从轻从简,软装跟随多巴胺心流,灵活有趣的空间布局,让生活与工作完美交融,也让职业与兴趣都有了落点。
  • 图片
  • 图片
  • 图片
  • 图片
  • 图片
  • 图片
  • 图片
  • 图片
  • 图片
  • 图片
  • 图片
  • 图片
  • 图片
  • 图片
  • 图片
  • 图片
  • 图片
  • 图片
  • 图片
  • 图片
  • 图片
  • 图片
  • 图片
  • 图片
  • 图片
  • 图片
  • 图片
  • 图片
  • 图片
  • 图片
  • 图片
  • 图片
  • 图片
  • 图片
  • 图片
  • 图片
  • 图片
  • 图片
  • 图片
  • 图片
  • 上一个 下一个
    2024第八届金腾奖 私宅(独居)丨私宅(多人居)丨餐饮丨酒店丨办公丨商业丨公共丨公益丨人物丨NEW100 jintengAWARD(小金_金腾奖组委会) 广州市海珠区琶洲大道68号华新中心21楼
    金腾奖视频号 金腾奖小红书号 监制:刘译遥
    统筹:张俊媚
    运营:赖钰炼 曹凯月 刘芳棋 小金
    新媒体:王贝贝 严洁 张文一
    技术:黄天佑 丁德昌
    最终解释权归金腾奖主办方所有