luxury penthouse
作品详情
  • Details of the work 标题横线
    头像或者logo
    图片 楠山设计 瞰设计特约推荐
    城市:天津
    公司:楠山设计
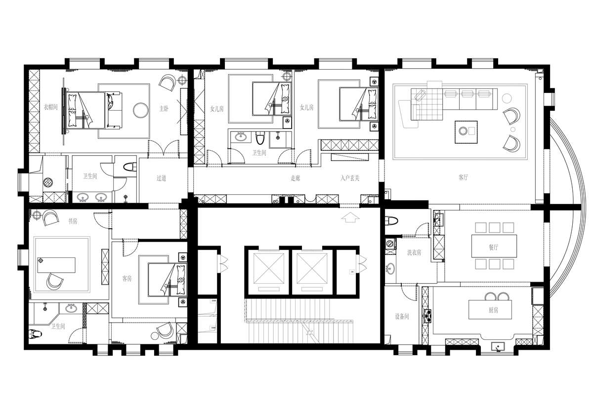
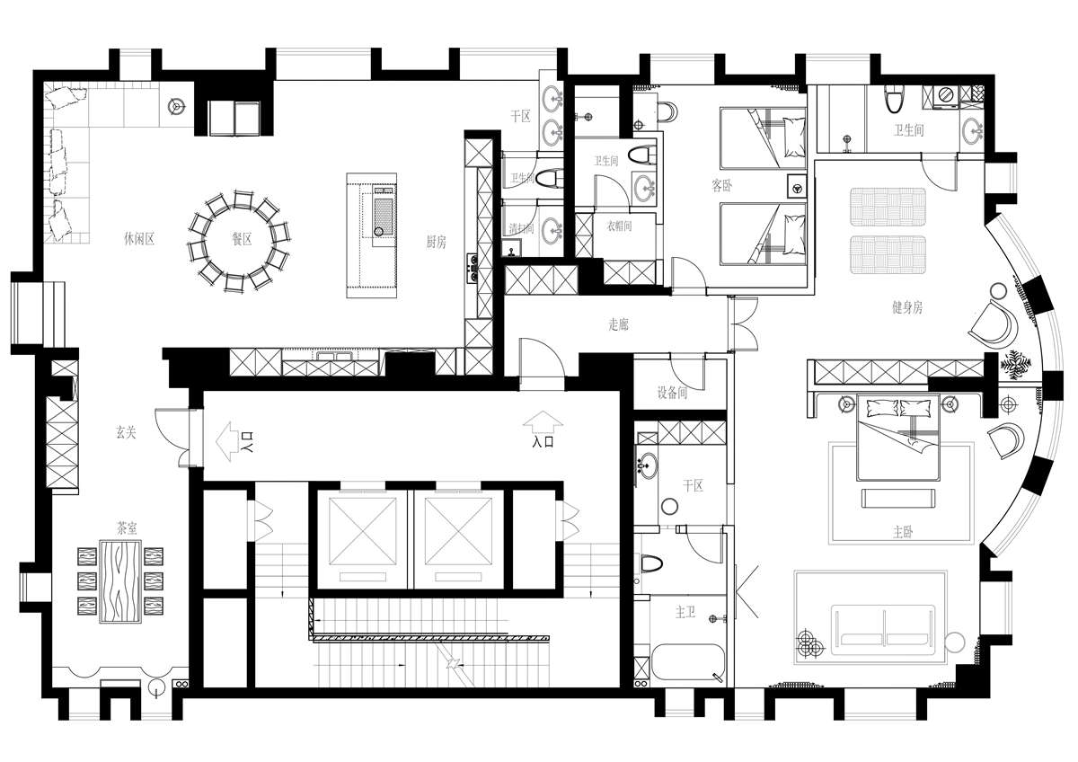
    参赛作品: 顶层大宅
    空间类型:别墅
    个人/公司简介:
    楠山设计,艺术与实践的融合之地。以创新为灵魂,审美为驱动,致力于为客户打造独一无二的空间艺术。让设计既有艺术的美感,又具备实用性。楠山设计拥有一群富有激情和创造力的团队,具有国际化视野,专业素养高,审美能力强,提供全方位的定制化解决方案。以专业和创意为客户带来独特价值。我们期待与您携手,共创美好空间。
    设计说明 | Design Instruction
  • 天津城——唯一有详细筑城始点的三代港城,它是扎根厚土的参天树,是发自深源的清透、更是心静身安的居所佳城。“Less is more”是设计要义、更是生活态度。卡洛·斯卡帕的解构主义抚慰视线,沙恩娜石材打造温润氛围,经久不衰。线条在空间中流动、延展,勾勒出简洁的设计语言,展现空间张力,诉说生命韧劲。细腻的 MINOTTI 沙发与天然材质几何茶几的搭配,让刚与柔、力与美,皆 存于此。剔透石材上,是自然神工;云石灯具下,是烟火真情。这一结合 因势象形,完美发挥照明效应的同时,更展现了艺术的视觉光感之美. 木质呼吸感让美食烹调者享受生活,脚步轻挪;厨房开放式,让真情相系时无有阻隔,承载欢乐。独卧的雅致和自由,是质感生活赋予的舒适,而姐妹的相伴与欢乐,都由洗漱间联通——我们血浓于水,亦各有芳华。
  • 图片
  • 图片
  • 图片
  • 图片
  • 图片
  • 图片
  • 图片
  • 图片
  • 图片
  • 图片
  • 图片
  • 图片
  • 图片
  • 图片
  • 图片
  • 图片
  • 图片
  • 上一个 下一个
    2024第八届金腾奖 私宅(独居)丨私宅(多人居)丨餐饮丨酒店丨办公丨商业丨公共丨公益丨人物丨NEW100 jintengAWARD(小金_金腾奖组委会) 广州市海珠区琶洲大道68号华新中心21楼
    金腾奖视频号 金腾奖小红书号 监制:刘译遥
    统筹:张俊媚
    运营:赖钰炼 曹凯月 刘芳棋 小金
    新媒体:王贝贝 严洁 张文一
    技术:黄天佑 丁德昌
    最终解释权归金腾奖主办方所有