Hidden Garden House
作品详情
  • Details of the work 标题横线
    头像或者logo
    图片 Antonius Richard RAD+AR
    城市:Indonesia
    公司:Antonius Richard RAD+AR
    参赛作品: Hidden Garden House
    空间类型:公寓(150㎡以下)
    个人/公司简介:
    RAD+ar (pronounced RADAR) is Indonesian based group of architects, designers, and thinkers operating within the field of architecture, urbanism, research and development – which focus to bring the idea of Architecture as an art of utilizing space in most provocative to utopian-research based approach. Formed from the curiosity of the advancement of Tropical Architecture by Antonius Richard Rusli, RAD+ar believes that in order to shape a better and more sustainable version of today’s challenges, architecture can profitably be one of the most worth-exploring field. RAD+ar explores and experiments to redefine the value of architecture in both globalization and localization. Beyond spaces and building, it connects history, narrative of cultures, expanding beyond limits of what we call architecture. Collaboration of multidisciplinary at each portfolio through systematic integration, allow RAD+ar to always innovate and experiments. Proj
    设计说明 | Design Instruction
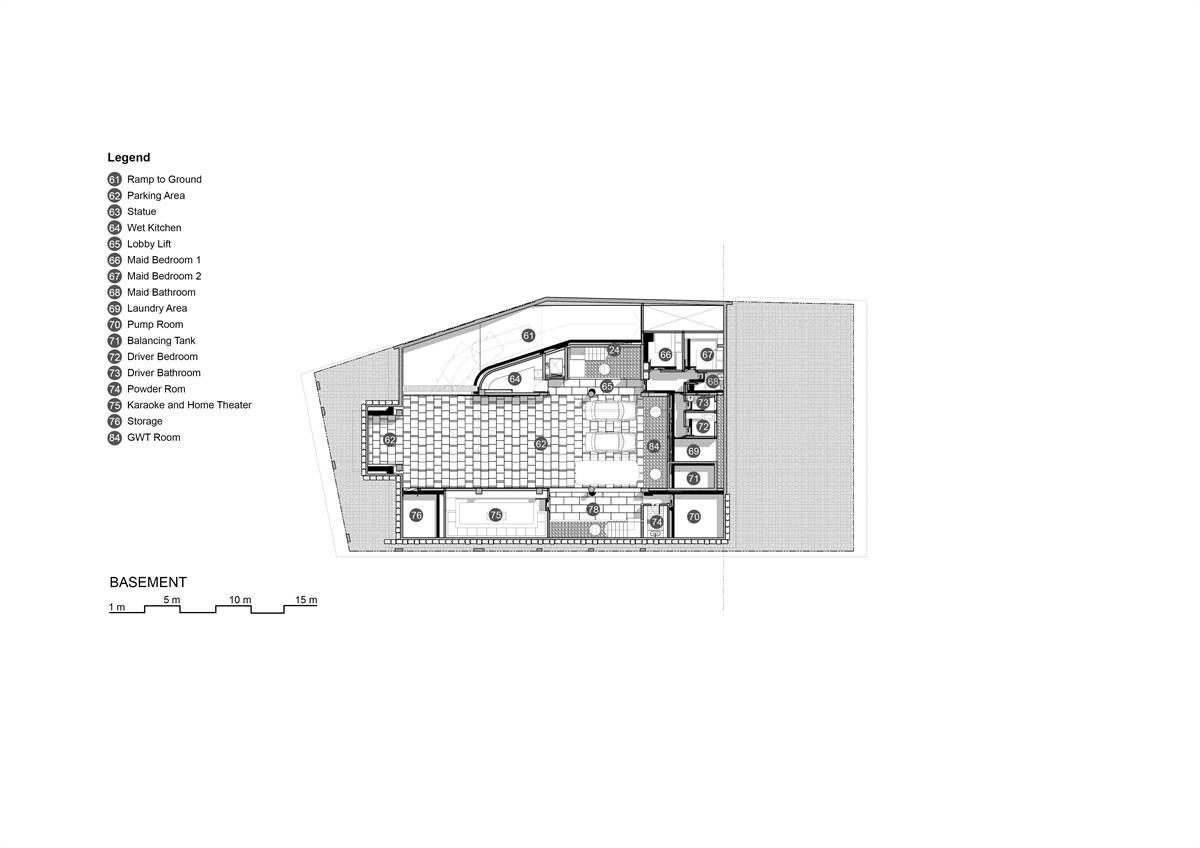
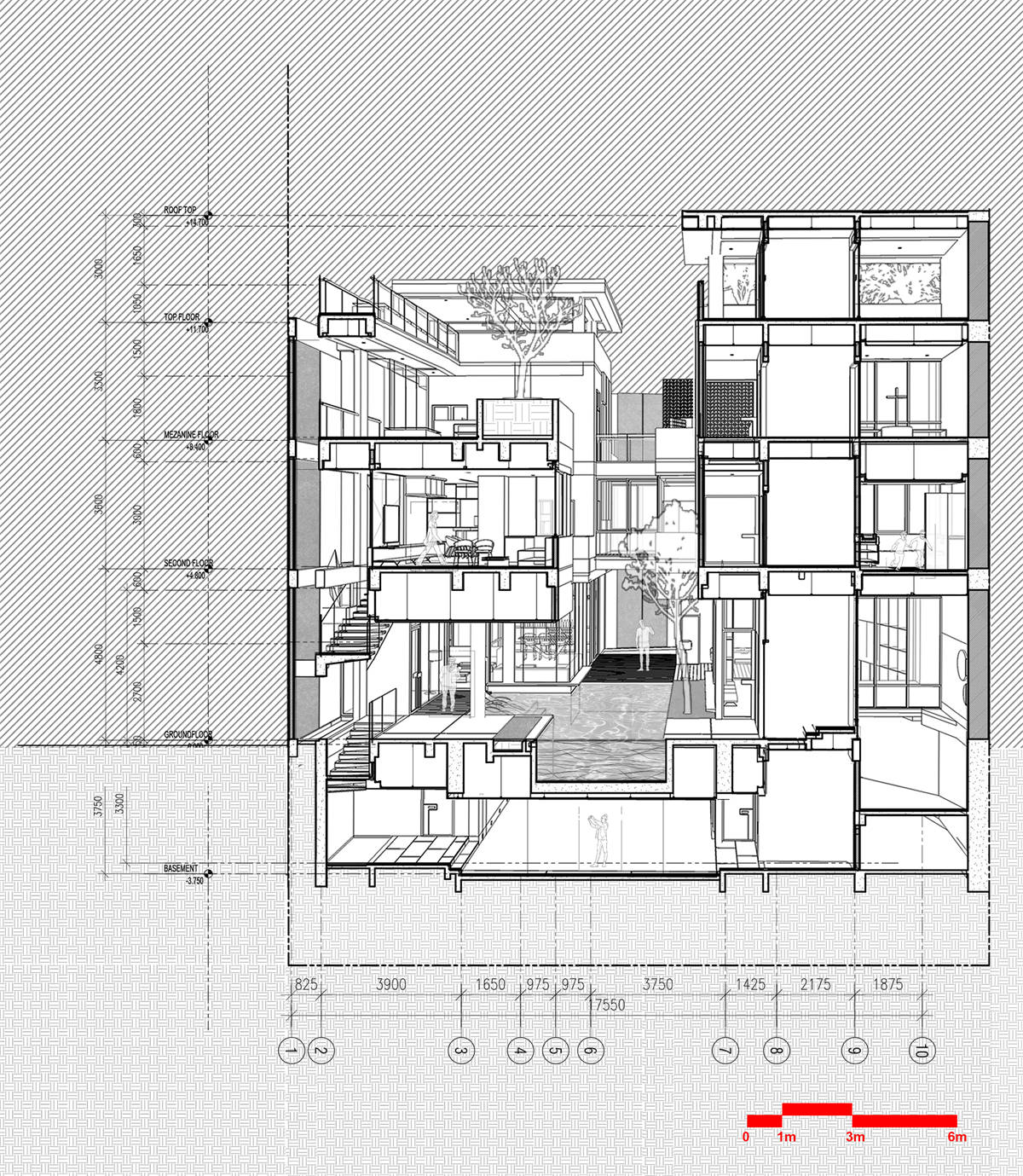
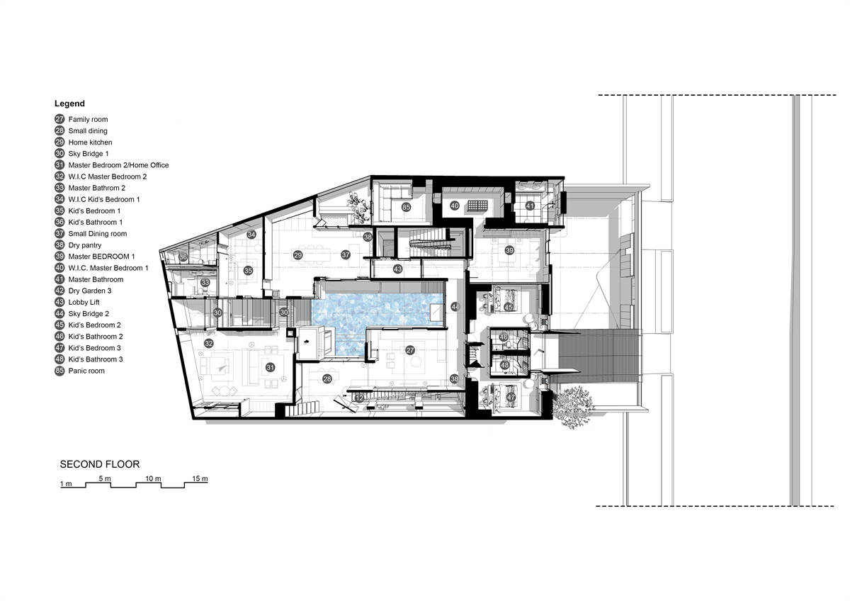
  • Hidden Garden House The house is located in Menteng area, the most prestigious heritage residential area surrounded by 360 dense mix used business district. The challenge was to rethinking the status quo and needs for a typical stereotyping - glamorous and arrogant Menteng houses. On the process of responding to this quest, architect breaks the scale of internal massing and the composition of empty spaces in between, the roof is divided into parallel bands of open sky garden in an alternating sequence overlapped mezzanine to create a diagonal loop of sky circulations. This 1500sqm house is one of the latest variations of the serial house from RAD+ar project for ‘urban tropical house experimental’. “We decided to exercises the right to create multiple garden and multiple neighborhoods’ experiences in a single home. It should acted more like an infrastructure or a pocket park open to the surrounding ultra-dense neighbors.” – Antonius Richard. The ground floor is open and completely transparent, without any dividing wall, giving a visual connection across the whole house. Swimming pool is acted as a visual light reflective line while at the same time acted as skylight for the basement under. From each passing of storey, residents can have multiple different views of the multilevel stacking gardens above and underneath them, giving the space its openness and elegance. Gently sloped, roof-landscape is visually connected to the surrounded Jakarta Cityscape of hi rise buildings. Amongst nature, the residents can enjoy multiple chances of interactions in their daily activities while enjoying cityscape views. This modern tropical house was never aiming to be beautiful, but instead to be humble whilst also incredibly energy efficient, with the application of 5 basic passive building approaches and also active building features such as highefficiency HVAC systems that minimize energy, solar panels on the rooftop and many smart house systems. It was to answer the quest from a humble young fam
  • 图片
  • 图片
  • 图片
  • 图片
  • 图片
  • 图片
  • 图片
  • 图片
  • 图片
  • 图片
  • 图片
  • 图片
  • 图片
  • 图片
  • 图片
  • 图片
  • 图片
  • 图片
  • 图片
  • 图片
  • 图片
  • 图片
  • 图片
  • 图片
  • 图片
  • 图片
  • 图片
  • 图片
  • 图片
  • 图片
  • 图片
  • 图片
  • 图片
  • 图片
  • 图片
  • 图片
  • 图片
  • 图片
  • 图片
  • 上一个 下一个
    2024第八届金腾奖 私宅(独居)丨私宅(多人居)丨餐饮丨酒店丨办公丨商业丨公共丨公益丨人物丨NEW100 jintengAWARD(小金_金腾奖组委会) 广州市海珠区琶洲大道68号华新中心21楼
    金腾奖视频号 金腾奖小红书号 监制:刘译遥
    统筹:张俊媚
    运营:赖钰炼 曹凯月 刘芳棋 小金
    新媒体:王贝贝 严洁 张文一
    技术:黄天佑 丁德昌
    最终解释权归金腾奖主办方所有