Passive Lab House
作品详情
  • Details of the work 标题横线
    头像或者logo
    图片 Antonius Richard RAD+AR
    城市:Indonesia
    公司:Antonius Richard RAD+AR
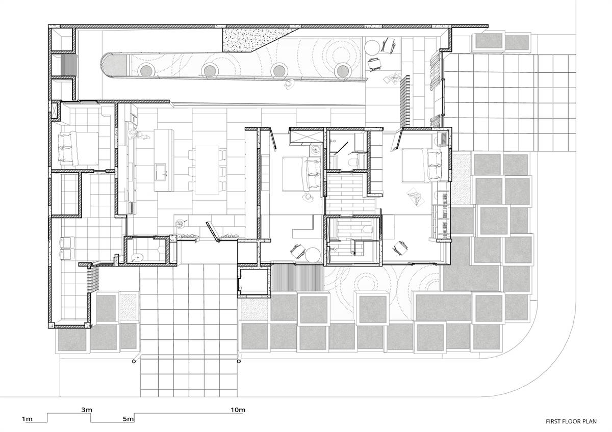
    参赛作品: Passive Lab House
    空间类型:公寓(150㎡以下)
    个人/公司简介:
    RAD+ar (pronounced RADAR) is Indonesian based group of architects, designers, and thinkers operating within the field of architecture, urbanism, research and development – which focus to bring the idea of Architecture as an art of utilizing space in most provocative to utopian-research based approach. Formed from the curiosity of the advancement of Tropical Architecture by Antonius Richard Rusli, RAD+ar believes that in order to shape a better and more sustainable version of today’s challenges, architecture can profitably be one of the most worth-exploring field. RAD+ar explores and experiments to redefine the value of architecture in both globalization and localization. Beyond spaces and building, it connects history, narrative of cultures, expanding beyond limits of what we call architecture. Collaboration of multidisciplinary at each portfolio through systematic integration, allow RAD+ar to always innovate and experiments.
    设计说明 | Design Instruction
  • Passive Lab House Intrigued by the big question on how to adapt tropicality in postmodernism's sprawling urban context, this project was meant to be an empty canvas of experimentation on how we can apply basic tropical passive design in an uncommon manner. The Passive Design Lab is a prototype of how a simple idea can bend and dictate how the space is arranged. The basic premise is to reduce the interior's micro climate by 4 Celsius degrees, while maintaining humidity and air velocity while all the active windows were closed. The project employs multiple overlapped void spaces ensure the natural ventilation works accurately, gentle ramp were chosen as vertical circulation method as it was also served as wind chimney by having reflective pool underneath (low temperature, high air pressure, high humidity) and triple volume with stacked skylight with aluminium airflow opening as frame (high temperature, low air pressure, low humidity), extreme passive airflow ensure the continuation of hot air releasing water and flows vertically toward the opening 24 hours. Extreme approach of exterior vs interior Facade, building was articulated for not only minimize direct sunlight throughout the year, but it also maximizes privacy by controlling the angle of opening from outside while maintaining maximum view from inside. The surrounding façade acted as the first layer of high sun thermal - radiation double volume space buffer, before entering any large glass opening, thus ensuring low thermal entering the habitable rooms, It openly shares material of its making, raw boardcast concrete and steps of raw unorganized garden. A functional Structure as façade, brutalism of the structure acted as open canvas for shadow play from the brutalism of surrounding vegetation to create the ever-changing façade experience. Internal share wall structure acts as a buffer for multi-dimensional transition space that is also made from being shared to semi-private to private, alternated by vegetation. Balconies and
  • 图片
  • 图片
  • 图片
  • 图片
  • 图片
  • 图片
  • 图片
  • 图片
  • 图片
  • 图片
  • 图片
  • 图片
  • 图片
  • 图片
  • 图片
  • 上一个 下一个
    2024第八届金腾奖 私宅(独居)丨私宅(多人居)丨餐饮丨酒店丨办公丨商业丨公共丨公益丨人物丨NEW100 jintengAWARD(小金_金腾奖组委会) 广州市海珠区琶洲大道68号华新中心21楼
    金腾奖视频号 金腾奖小红书号 监制:刘译遥
    统筹:张俊媚
    运营:赖钰炼 曹凯月 刘芳棋 小金
    新媒体:王贝贝 严洁 张文一
    技术:黄天佑 丁德昌
    最终解释权归金腾奖主办方所有