the Peach Garden
作品详情
  • Details of the work 标题横线
    头像或者logo
    图片 李昱卓
    城市:长治
    公司:
    参赛作品: 桃花源
    空间类型:公寓(150㎡以下)
    个人/公司简介:
    2007年毕业于山西建筑学院建筑装饰系 国际建筑室内装饰协会注册高级室内配饰设计师 2012年入选交换空间,设计作品《遇见》 2014山西十大新锐设计师称号 2014山西顶层设计大赛年度优秀住宅空间设计奖 2018居然设计杯室内设计大赛住宅空间优秀奖 2020年金住奖-中国(长治)十大居住空间设计师 2020年度躺平设计家设计人物奖 2021年金住奖-中国(长治)十大居住空间设计师 2021年4040长治设计师杰出青年 2021年百度馨居奖全国TOP300 金堂奖2022年度杰出设计作品 2022中国室内设计金英邀请赛2022中国大宅设计TOP100
    设计说明 | Design Instruction
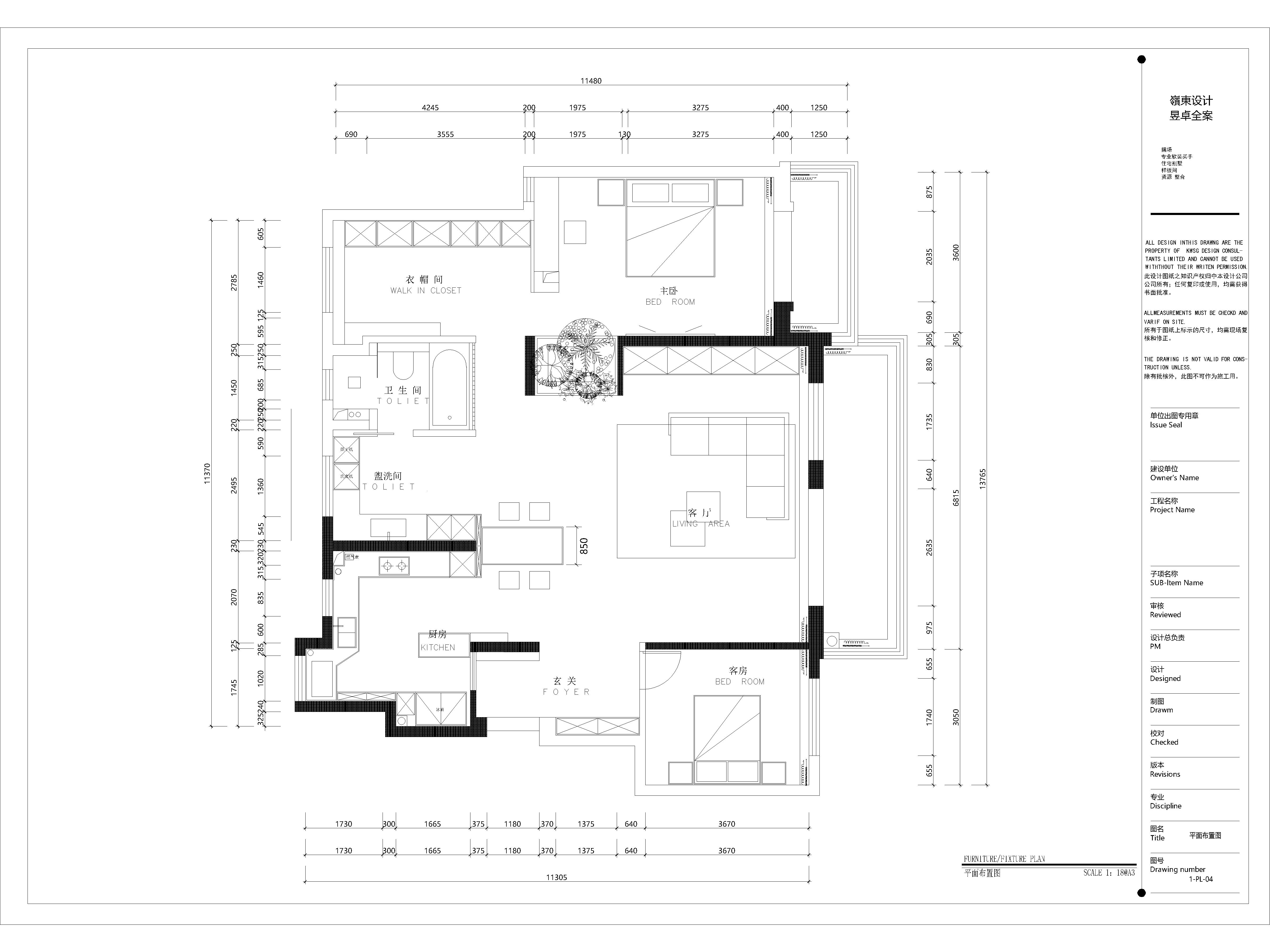
  • 设计说明: 本次的方案业主是一位年轻有为的青年企业家,空间整体设计思路为简介大气,放松且无风格化的空间气质。 在平面的改造中,我们大胆的去掉了卧室门,把卧室书房衣帽间融为一体,通过一个景观陈设,是空间有了区分,同时虚实结合,动静有序,整个空间氛围,安静又舒适,活泼又大气。 客户是做餐饮行业,我们在厨房空间做了整体的扩大,加了岛台,在橱柜以及厨具的选择,也非常用心。餐桌选用了是一张原木大板木桌,让整个空间在简约高级的感受中,同时出现了自然放松的材质,这种精致与粗犷的结合,也增加了设计的趣味性。 在整体的软装搭配上,我们也考虑了很多,包括色调的选择,以及色彩比例的分配。色调上我们考虑整体清雅安静,由于业主的工作非常的辛苦忙碌,每天在工作中都有大量耗能的状态,家里的感觉我希望是一个加油站,让业主回到家的瞬间,感受到全然的放松和自在,休息一天后,能回归满满的能量。
  • 图片
  • 图片
  • 图片
  • 图片
  • 图片
  • 图片
  • 图片
  • 图片
  • 图片
  • 图片
  • 图片
  • 图片
  • 图片
  • 图片
  • 图片
  • 图片
  • 图片
  • 图片
  • 图片
  • 图片
  • 图片
  • 图片
  • 上一个 下一个
    2024第八届金腾奖 私宅(独居)丨私宅(多人居)丨餐饮丨酒店丨办公丨商业丨公共丨公益丨人物丨NEW100 jintengAWARD(小金_金腾奖组委会) 广州市海珠区琶洲大道68号华新中心21楼
    金腾奖视频号 金腾奖小红书号 监制:刘译遥
    统筹:张俊媚
    运营:赖钰炼 曹凯月 刘芳棋 小金
    新媒体:王贝贝 严洁 张文一
    技术:黄天佑 丁德昌
    最终解释权归金腾奖主办方所有