Central Sea Unity Lake
作品详情
  • Details of the work 标题横线
    头像或者logo
    图片 天卓 東北隔路设计师运营服务平台特约推荐
    城市:长春
    公司: 方物全案设计机构
    参赛作品: 中海同心湖
    空间类型:别墅
    个人/公司简介:
    方物全案设计机构联合创始人 老宅新生(长春)十大改造设计师
    设计说明 | Design Instruction
  • 设计理念:“中海同心湖”旨在打造一个融合自然之美与人文关怀的宜居空间,通过湖泊和水域的设计,营造出一个和谐、宁静的居住环境。这个设计作品将自然景观与现代居住需求相结合,创造出一个既能满足日常生活功能,又能提供心灵放松的理想场所。在设计中,我们以湖泊为核心元素,通过精心规划的水域景观,带来宁静和美感。湖边的步道、景观平台和休闲区,均设计为与自然环境融为一体,让居民可以随时享受湖泊的平静与美丽。自然植被和水域的结合,增强了空间的生机和层次感,使每个角落都充满了自然的气息。空间布局上,我们注重人与自然的和谐共处,设计了多个功能区,包括休闲娱乐区、亲水平台和社区活动中心,以满足居民的各种需求。开放的视野和优雅的建筑线条,使空间既现代又充满自然的温馨感。材料选择上,我们使用了环保且耐用的材料,确保空间的可持续性和舒适性。自然石材、木质元素和柔和的色彩,都是为了让空间更加贴近自然,同时也增加了居住的舒适度和美观度。
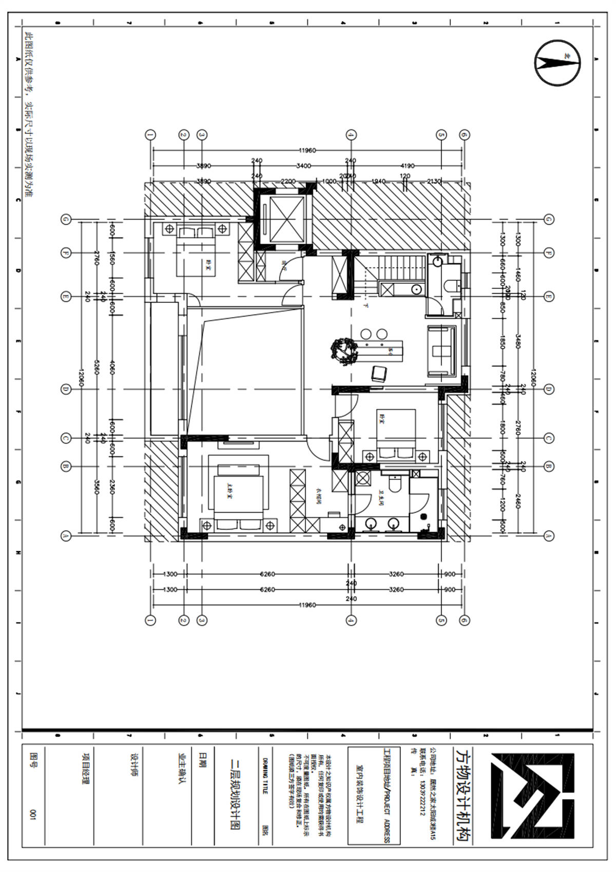
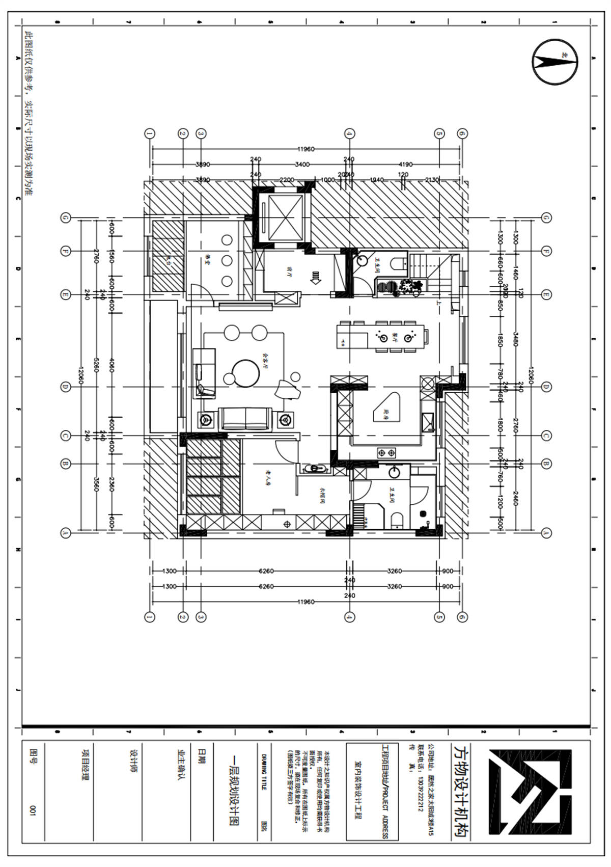
  • 图片
  • 图片
  • 图片
  • 图片
  • 图片
  • 图片
  • 图片
  • 图片
  • 图片
  • 图片
  • 图片
  • 图片
  • 图片
  • 图片
  • 图片
  • 图片
  • 图片
  • 上一个 下一个
    2024第八届金腾奖 私宅(独居)丨私宅(多人居)丨餐饮丨酒店丨办公丨商业丨公共丨公益丨人物丨NEW100 jintengAWARD(小金_金腾奖组委会) 广州市海珠区琶洲大道68号华新中心21楼
    金腾奖视频号 金腾奖小红书号 监制:刘译遥
    统筹:张俊媚
    运营:赖钰炼 曹凯月 刘芳棋 小金
    新媒体:王贝贝 严洁 张文一
    技术:黄天佑 丁德昌
    最终解释权归金腾奖主办方所有