Oriental Yazhu
作品详情
  • Details of the work 标题横线
    头像或者logo
    图片 吕岩 麟居设计师社区特约推荐
    城市:长治
    公司:
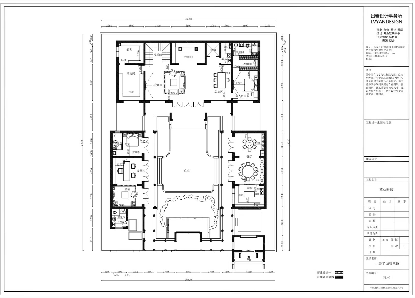
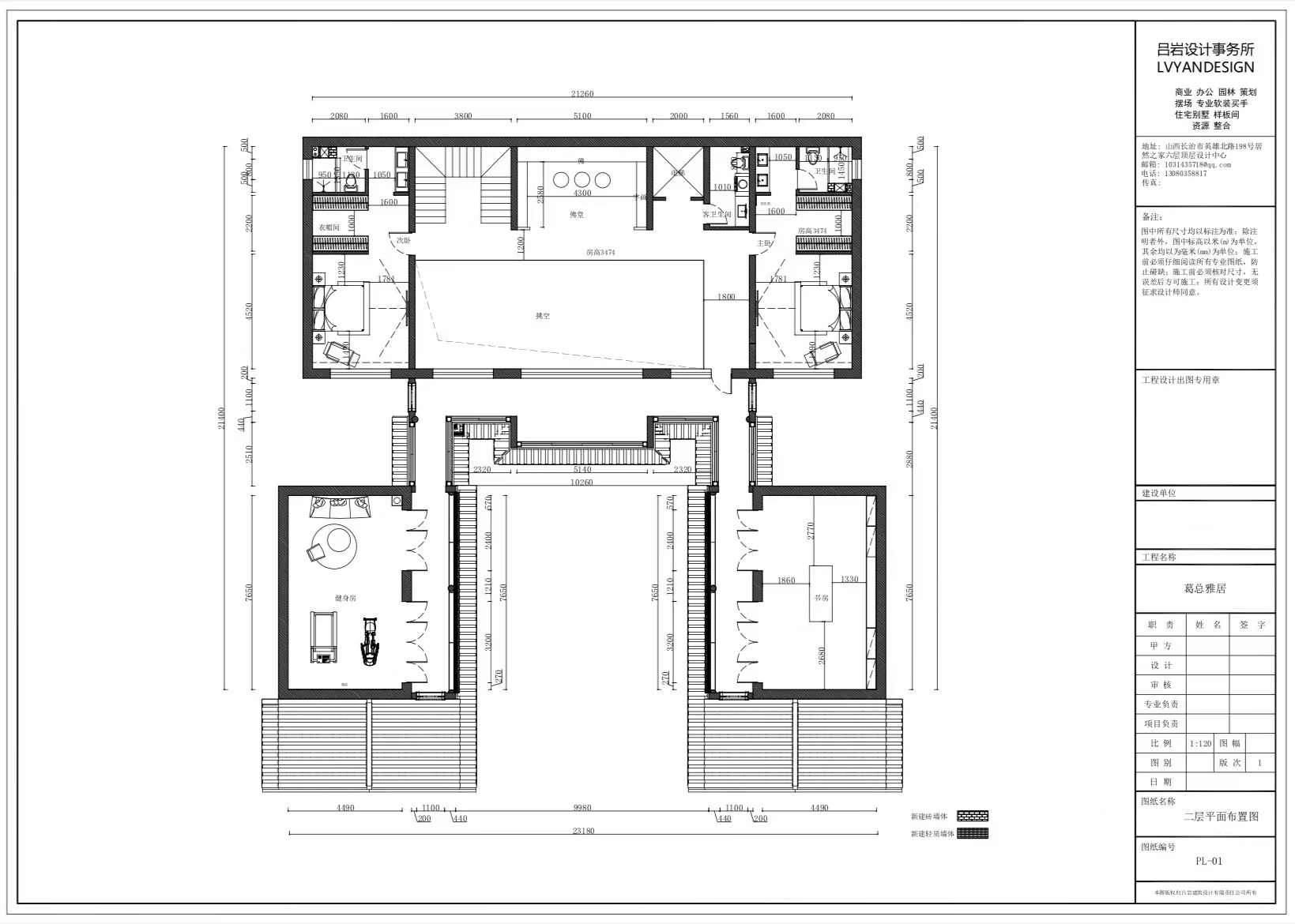
    参赛作品: 东方雅筑
    空间类型:别墅
    个人/公司简介:
    山西吕岩建筑装饰设计有限公司创始人 2013——2014年于北京清华大学进修 2014年米兰理工大学进修 20年+设计经验 2019金堂奖全国联盟(长治)执委会常务理事 金住奖2020十大居住空间设计师
    设计说明 | Design Instruction
  • 意境营造: 1. 留白之美 运用留白手法,在空间中留下适当的空白,给人以想象的空间。留白并非简单的空白,而是一种艺术的表达,它可以突出主体,营造出简洁、空灵的意境。比如在一幅中式水墨画中,大量的留白与简洁的笔触相结合,传达出深远的意境。在室内设计中,墙面的留白、家具之间的空间留白等,都能让空间更加宁静、优雅。 2. 光影运用 设计注重光影的运用,通过自然光和人造光的巧妙结合,营造出丰富的层次感和立体感。自然光可以透过窗户、天井等进入室内,带来温暖和生机;人造光则可以通过灯具的选择和布置,营造出不同的氛围。例如,在中式书房中,一盏古朴的台灯可以为阅读营造出宁静的氛围;在客厅中,柔和的灯光可以突出中式家具的质感和纹理。 3. 情景交融 设计强调情景交融,将自然景观引入室内,或者通过装饰元素营造出自然的氛围。比如在室内摆放一些盆景、花卉,或者在墙上悬挂一幅山水画卷,让人仿佛置身于大自然。 4. 环保材料 设计倡导使用环保材料,注重材料的可持续性和生态性。在选择材料时,优先考虑天然材料、可再生材料和低污染材料,如木材、竹材、石材、棉麻等。这些材料不仅环保健康,还能为空间带来自然 气息和独特的质感。同时,中式设计也注重材料的回收和再利用,减少浪费和对环境的影响。 总之,中式设计理念是一种融合了传统文化、艺术审美、工艺传承和可持续发展的设计理念。它不仅注重空间的美观和舒适,更注重文化的传承和创新,以及人与自然的和谐共生。
  • 图片
  • 图片
  • 图片
  • 图片
  • 图片
  • 图片
  • 图片
  • 图片
  • 图片
  • 图片
  • 图片
  • 图片
  • 图片
  • 图片
  • 图片
  • 图片
  • 上一个 下一个
    2024第八届金腾奖 私宅(独居)丨私宅(多人居)丨餐饮丨酒店丨办公丨商业丨公共丨公益丨人物丨NEW100 jintengAWARD(小金_金腾奖组委会) 广州市海珠区琶洲大道68号华新中心21楼
    金腾奖视频号 金腾奖小红书号 监制:刘译遥
    统筹:张俊媚
    运营:赖钰炼 曹凯月 刘芳棋 小金
    新媒体:王贝贝 严洁 张文一
    技术:黄天佑 丁德昌
    最终解释权归金腾奖主办方所有