Romantic Haven of the Heart
作品详情
  • Details of the work 标题横线
    头像或者logo
    图片 栾健阳 東北隔路设计师运营服务平台特约推荐
    城市:长春
    公司: 清联设计
    参赛作品: 浪漫的归心之居
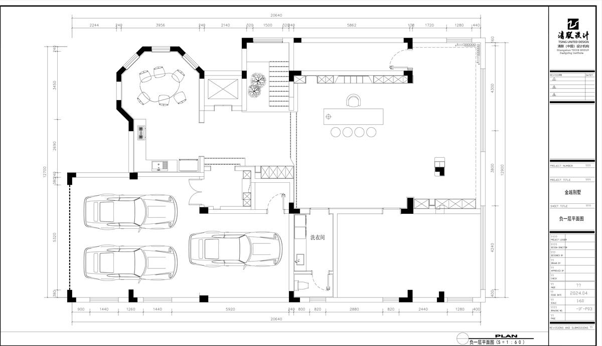
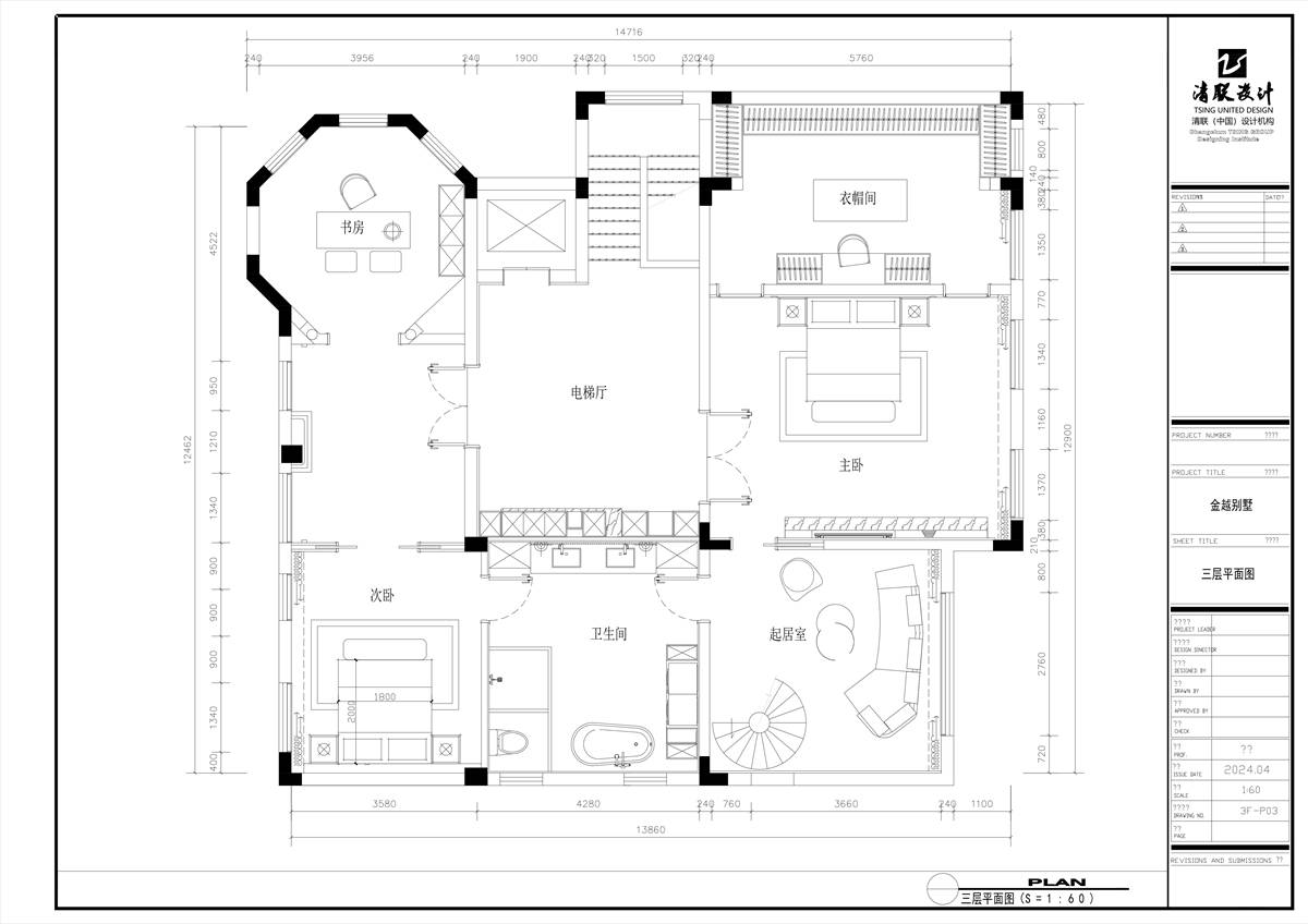
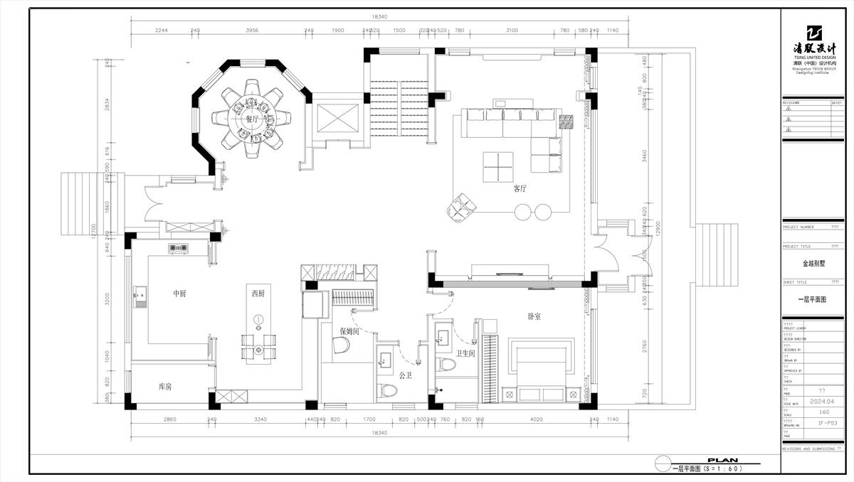
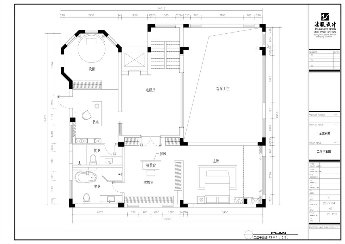
    空间类型:别墅
    个人/公司简介:
    清联设计 设计总监 老宅新生(长春)十大改造设计师
    设计说明 | Design Instruction
  • 设计理念:“浪漫的归心之居”旨在创造一个既充满浪漫气息又具备深厚归属感的居住空间,成为每个居住者心灵的温馨避风港。这个设计作品结合了浪漫的美学与实用的舒适,旨在提供一个让人感到放松与愉悦的理想家园。在设计中,我们融合了浪漫的元素和柔和的色彩,运用了优雅的装饰和细致的艺术品,营造出一种温馨而迷人的氛围。设计中采用了柔软的织物、精致的家具和轻盈的灯光,所有细节都经过精心打磨,以提升空间的浪漫氛围。空间布局方面,我们注重创造出舒适而富有情调的生活环境。宽敞的开放式布局与私密的休息区域巧妙结合,确保居住者既能享受社交的欢乐时光,也能在安静的角落找到放松的宁静。特别设计的阳台、阅读角落和舒适的卧室,都是为了提供一个温馨的休憩空间,让人们在忙碌的生活中找到片刻的平静和愉悦。材料选择上,我们选用了高质量的天然材料和柔软的织物,以增加空间的舒适感和温暖感。色彩方面,运用了温暖的中性色调,如米色、淡粉和柔和的蓝色,营造出一种浪漫与宁静相结合的生活氛围。“浪漫的归心之居”不仅是一个居住的空间,更是一个能够让每位居住者感受到浪漫与归属的理想之地。它邀请每位居住者在这里体验浪漫的美好,享受一个温馨而愉悦的生活环境,让家成为心灵的真正归宿。
  • 图片
  • 图片
  • 图片
  • 图片
  • 图片
  • 图片
  • 图片
  • 图片
  • 图片
  • 图片
  • 图片
  • 图片
  • 图片
  • 图片
  • 图片
  • 图片
  • 图片
  • 图片
  • 上一个 下一个
    2024第八届金腾奖 私宅(独居)丨私宅(多人居)丨餐饮丨酒店丨办公丨商业丨公共丨公益丨人物丨NEW100 jintengAWARD(小金_金腾奖组委会) 广州市海珠区琶洲大道68号华新中心21楼
    金腾奖视频号 金腾奖小红书号 监制:刘译遥
    统筹:张俊媚
    运营:赖钰炼 曹凯月 刘芳棋 小金
    新媒体:王贝贝 严洁 张文一
    技术:黄天佑 丁德昌
    最终解释权归金腾奖主办方所有