周巷杨府
作品详情
  • Details of the work 标题横线
    头像或者logo
    图片 周小浓
    城市:慈溪市
    公司:
    参赛作品: 周巷杨府
    空间类型:别墅
    个人/公司简介:
    从事室内设计工作13年 慈溪佳琦装饰设计创始人 慈溪室内设计师协会常务理事 2021-2022年度中国·慈溪室内设计杰出青年设计师 2014年度国际空间设计大奖 艾特奖 最佳陈设艺术入围奖
    设计说明 | Design Instruction
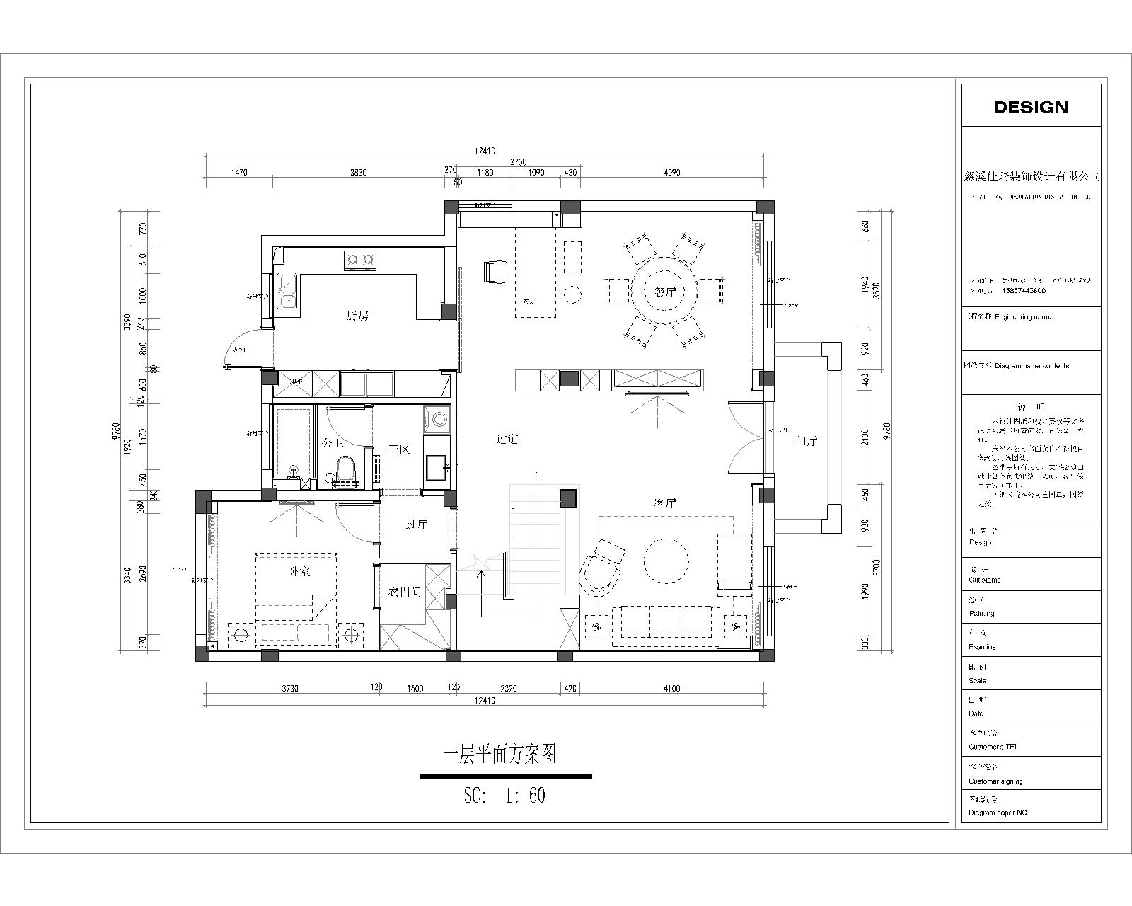
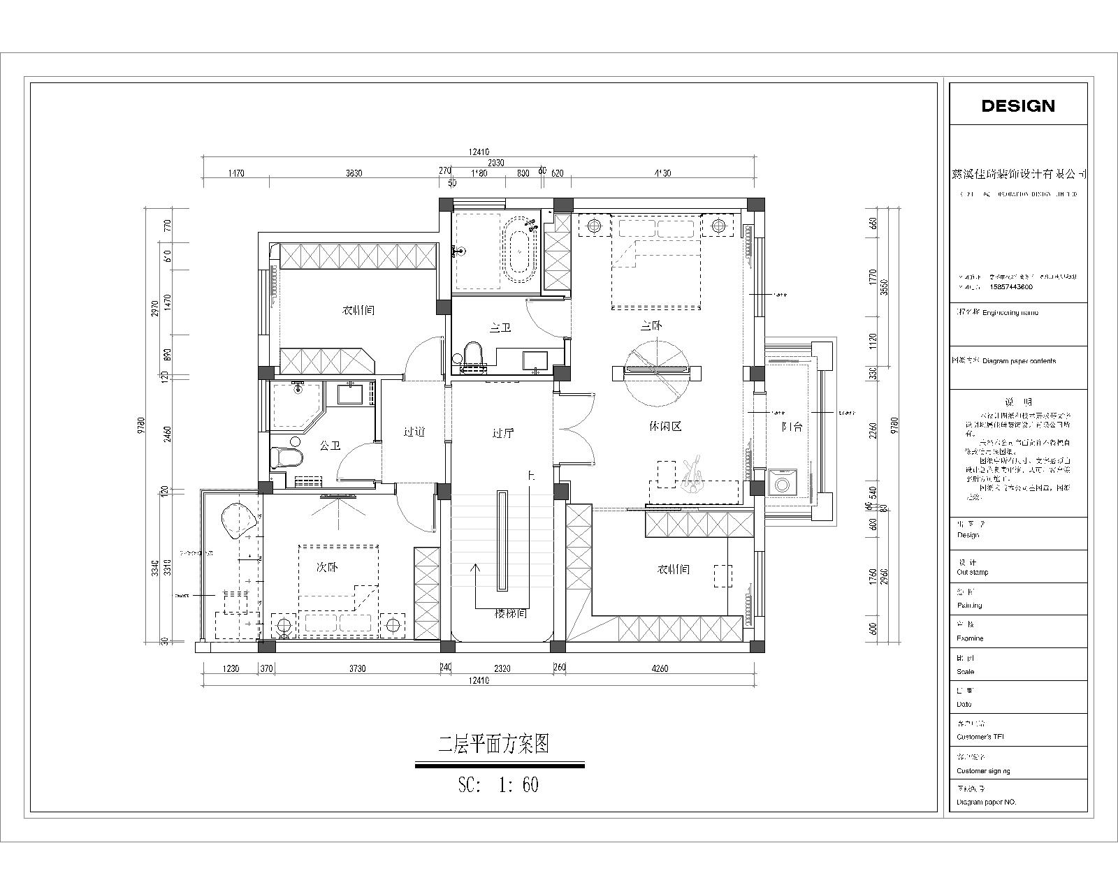
  • 设计—让家变成您喜欢的样子!不同的人,有不同的喜好和习惯,设计因人而改变,让空间去理解人,而非让人去适应空间。能够让人身心愉悦的设计,我觉得就是好的设计。 设计空间主要为一家三口居住,偶尔会有家中老人来住,因装修成本考虑,没有设计室内电梯,因此,一楼设计老人房,方便家中老人偶尔来住。平时男主人的朋友比较多,一楼设计茶室,方便朋友喝茶,聊天。餐厅原建筑窗户扩大改建,室外造景,使茶室和餐厅空间采光更好,空间更舒适。客厅空间和餐厅空间设计悬空背景墙,使空间有穿透力,又有空间感。一楼公共空间,二楼私人空间,空间分明。二楼主卧旋转电视架,满足双重空间的使用。配套空间设计完善,满足居住人员后期使用。设计让家变得舒适,设计让家变成喜欢的样子!
  • 图片
  • 图片
  • 图片
  • 图片
  • 图片
  • 图片
  • 图片
  • 图片
  • 图片
  • 图片
  • 图片
  • 图片
  • 图片
  • 图片
  • 图片
  • 图片
  • 图片
  • 上一个 下一个
    2024第八届金腾奖 私宅(独居)丨私宅(多人居)丨餐饮丨酒店丨办公丨商业丨公共丨公益丨人物丨NEW100 jintengAWARD(小金_金腾奖组委会) 广州市海珠区琶洲大道68号华新中心21楼
    金腾奖视频号 金腾奖小红书号 监制:刘译遥
    统筹:张俊媚
    运营:赖钰炼 曹凯月 刘芳棋 小金
    新媒体:王贝贝 严洁 张文一
    技术:黄天佑 丁德昌
    最终解释权归金腾奖主办方所有