暗香疏影
作品详情
  • Details of the work 标题横线
    头像或者logo
    图片 金志坚 江南设特约推荐
    城市:无锡
    公司: 拾贰月空间设计高端工作室
    参赛作品: 暗香疏影
    空间类型:别墅
    个人/公司简介:
    设计理念:空间的丰富性产生多样的场景交流,使之提升人与人之间的空间感和幸福感。 工作年限:14年 国家注册高级室内设计师 CIID设计联盟会员 江南社设计联盟荣誉会员 2013年获太湖杯最佳户型改造奖 2013年获99设计联盟最佳新锐奖 2018年获无锡4040杰出设计师奖 2019年获无锡4040杰出设计师奖 2019年获全国类芒果奖(室内)二等奖 2020年获无锡4040杰出设计师奖 2020年获得金住奖-2020中国(无锡)十大居住空间设计师 2020年获得无锡WIID年度住宅空间设计奖 2020年获得红棉中国设计奖-室内设计奖 2021年获得无锡4040杰出设计师奖 2022网易城市设计精英上榜TOP50-无锡 2023年获得无锡4040杰出设计师奖
    设计说明 | Design Instruction
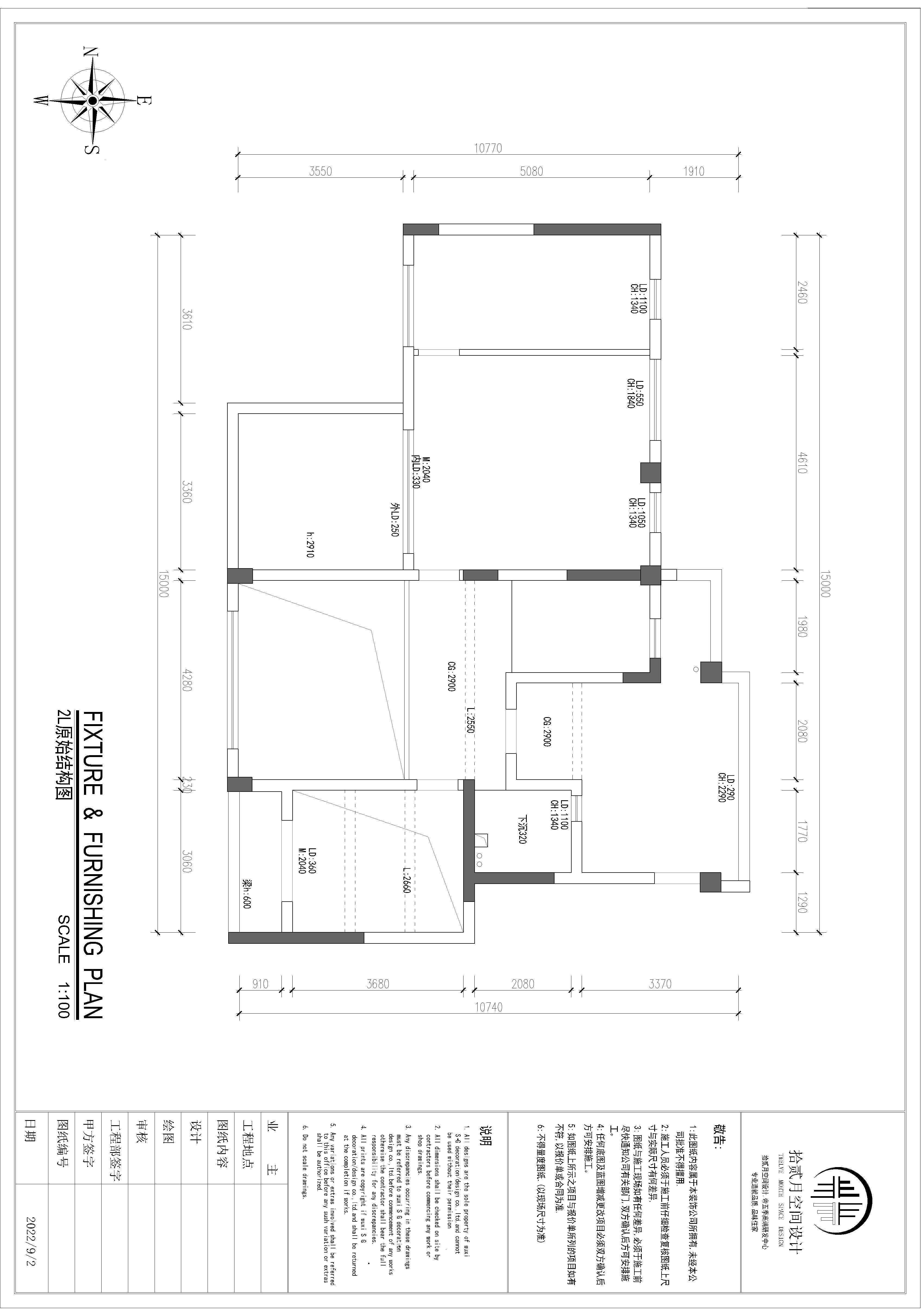
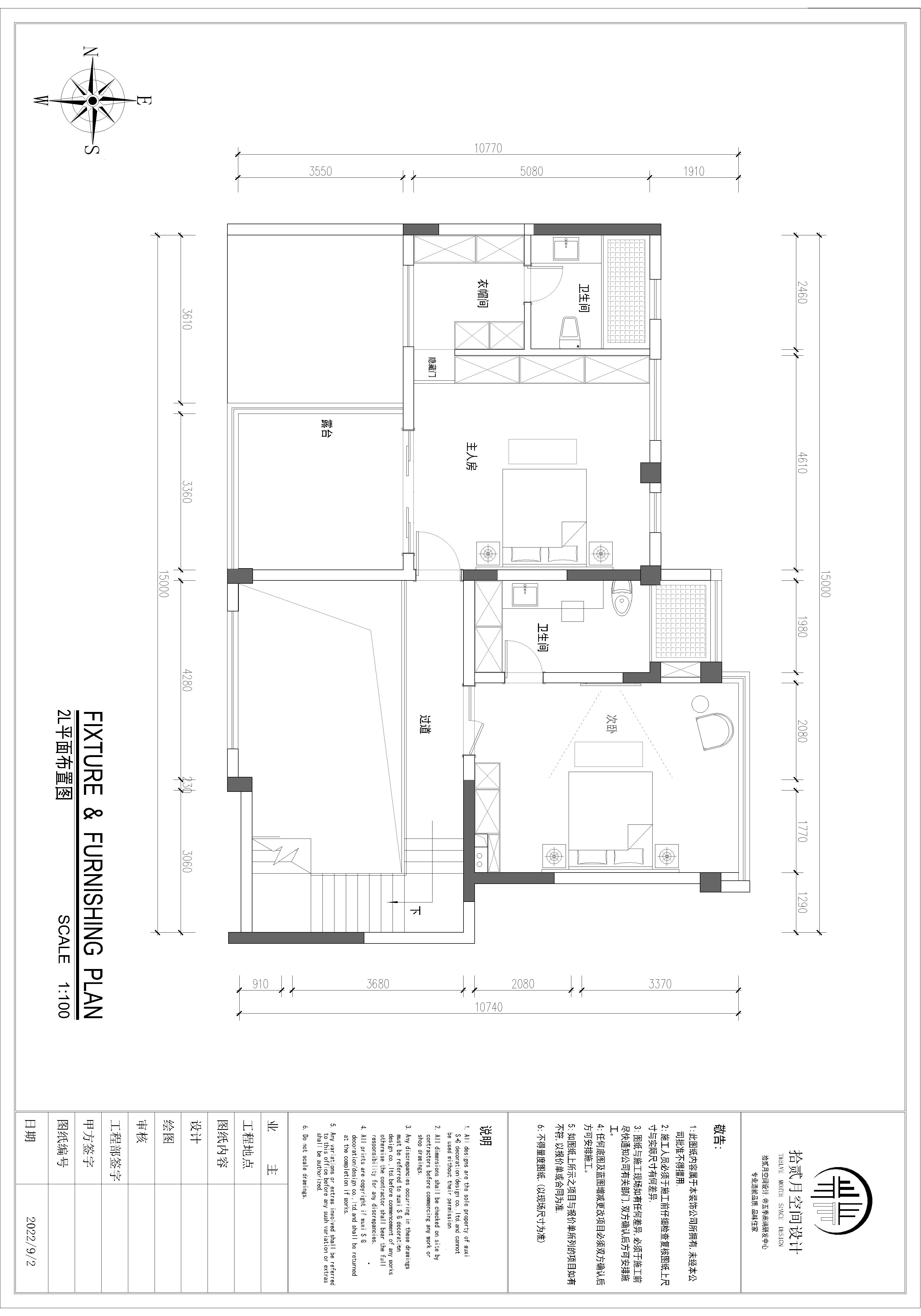
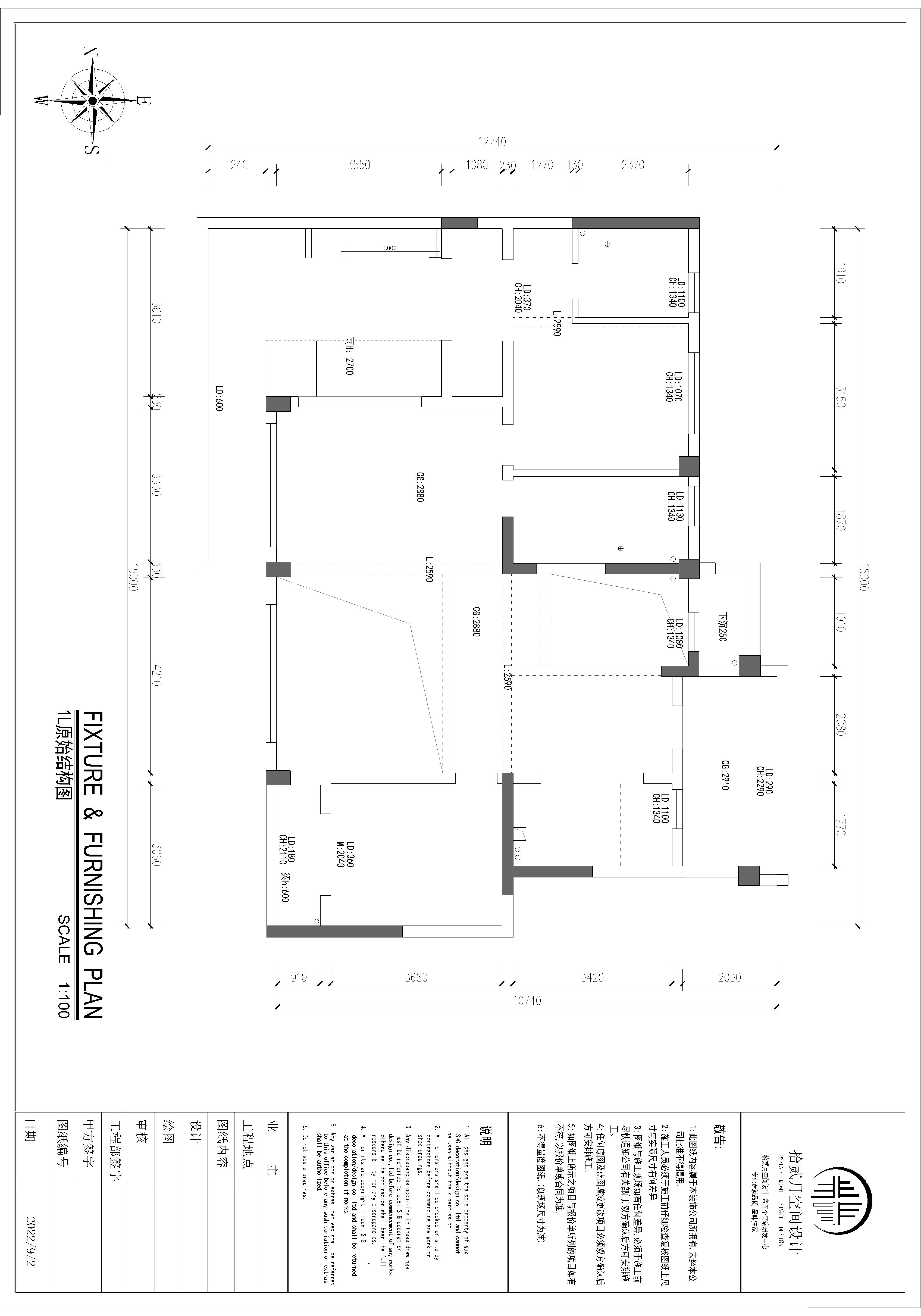
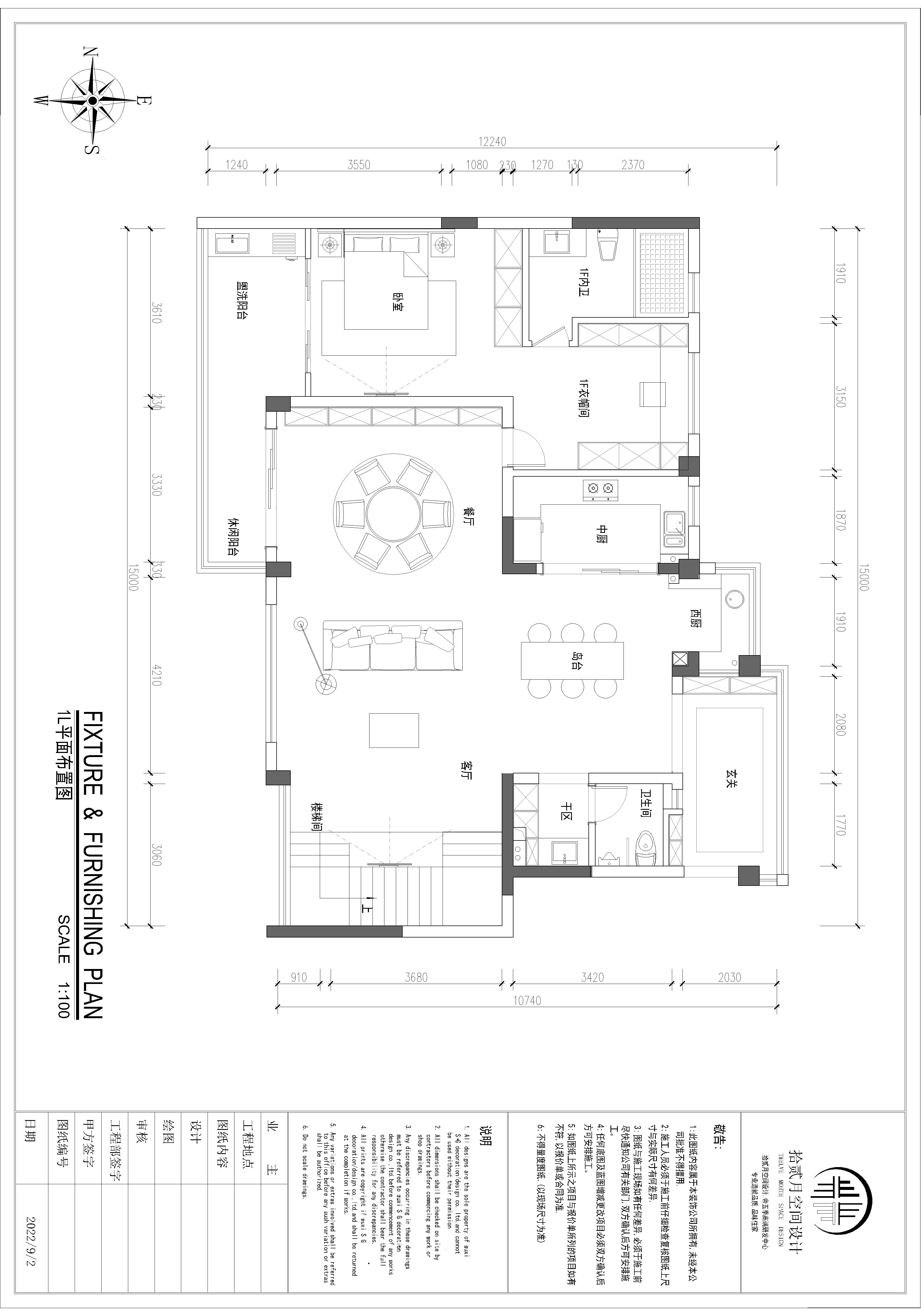
  • 设计点:如何将客餐厅动线做舒适,将挑空做大气,把空间整体性做出来。 经过我们初步对原户型的解析,首先我们觉得楼梯位置极其小气压抑,一栋复式的设计理念,首先要从楼梯贯彻进行,业主需求的房间不多,这样给我们规划空间布局带来了更高的自由度,我们更改了楼梯位置,增强了它与上下层挑空空间感,客餐厅的采光通风,达到了极致的效果。 大面积的饰面板,流畅细腻的线条,灯光,色彩和材质,给房子里的每个空间都带来了连续性与整体性。本案巧妙的结合了奢华与高级,与众不同的细节与质感融合,有种又酷又温暖的高级感。 随玄关步入客餐厅,映入眼帘的是极简的岩板岛台,长方形岛台的设计,既增加了台面操作空间,又有了更多的收纳功能。 客餐厅整体空间主要以咖色调为主,利用灯光的色调,地砖的质感,木饰面的纹路,软装家居的搭配,空间层次丰富,给空间带来内敛的高级感格调。客餐厅一体化,空间贯穿动线清晰,餐厅贴墙打造整面收纳柜,亮面大理石纹路地砖通铺,客厅部分挑空设计更显户内大气宽敞。 客厅区域将暗色的厚重时尚与白色的明朗大气融入生活空间,营造时尚轻奢的优雅居住氛围。 家的仪式感于时光的缓流里浸润在每一份生活碎片上,构画着日常生活里的惊喜与浪漫。如浮云般的挑空吊灯与布艺沙发,在这时尚轻奢的空间里添入一抹仪式的浪漫,带来视觉与情绪的双重潋滟。 电视墙的设计巧妙利用空间,将电视墙与楼梯相组合,连接地台后,显得更加沉稳,注入温情;胡桃木色与黑色的搭配,展现层次感,层层递进,视觉感很是丰富! 通过餐厅右侧的隐形门可来到一楼的男孩房,同时餐厅阳台也与该房间阳台的洗衣房相连接。整个卧室采用了胡桃木,清晰可见的木质纹理,给人一种非常自然的舒适感。胡桃木背景墙不仅起到了漂亮的装饰作用,而且在一定程度上也可以保护墙面。皮质床搭配胡桃木色衣柜和木质地板,构建出沉稳幽静的睡眠环境。 主卧采用白色护墙板,搭配胡桃木色格栅,素雅大气又内敛,质感十足的科技布床头,清爽的色调散发简约的美感,给人舒适的归家体验。 顶楼露台面积大视野开阔,全方位采光,晒晒太阳,和朋友喝喝下午茶,足不出户就能享受蓝天白云的美景。 次卧里简素的空间格调,一整面落地窗延伸精神的畅想,辅以简约的卧床,一种未加繁饰的舒缓,让身心在静谧的空间里得以放松。
  • 图片
  • 图片
  • 图片
  • 图片
  • 图片
  • 图片
  • 图片
  • 图片
  • 图片
  • 图片
  • 图片
  • 图片
  • 图片
  • 图片
  • 图片
  • 图片
  • 图片
  • 图片
  • 图片
  • 上一个 下一个
    2024第八届金腾奖 私宅(独居)丨私宅(多人居)丨餐饮丨酒店丨办公丨商业丨公共丨公益丨人物丨NEW100 jintengAWARD(小金_金腾奖组委会) 广州市海珠区琶洲大道68号华新中心21楼
    金腾奖视频号 金腾奖小红书号 监制:刘译遥
    统筹:张俊媚
    运营:赖钰炼 曹凯月 刘芳棋 小金
    新媒体:王贝贝 严洁 张文一
    技术:黄天佑 丁德昌
    最终解释权归金腾奖主办方所有