叙・暮
作品详情
  • Details of the work 标题横线
    头像或者logo
    图片 任科
    城市:宁波
    公司:
    参赛作品: 叙・暮
    空间类型:公寓(150㎡以下)
    个人/公司简介:
    2011年7月——2012年1月在点廓美筑机构公司设计部。2012年-2014年在宁波博洋家纺空间品牌研发执行设计师兼软装设计师。2014年-2017年在宁波创艺空间设计公司担任全案设计师, 2017年尚层装饰公司担任全案设计师。2018年6月宁波品筑全案软装设计公司担任全案设计师。2020-2022墨禾全案设计公司设计总监,2023年至今在御景汇全案设计
    设计说明 | Design Instruction
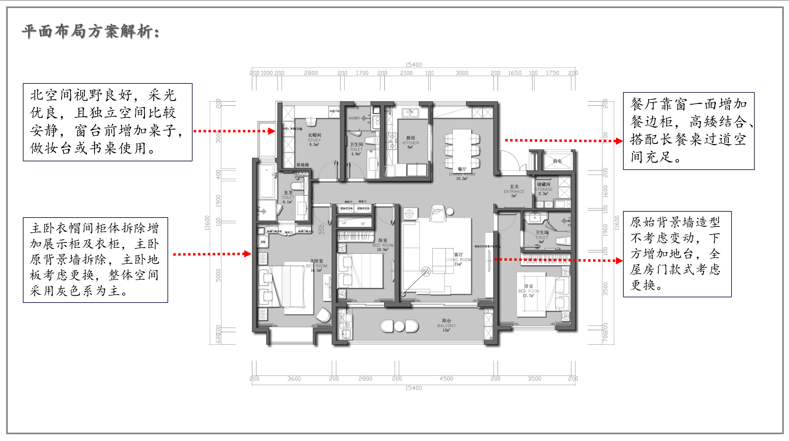
  • 本案位于海曙金茂府,180户型,整体户型方正,南北通透,三房朝南,采光和通风都非常好,户型动线也很舒适。 客餐厅南北连通,整体性很好,一进门刚好对面一面墙,做玄关区域划分明确,各个区域利用率高,设计点也居多。 主卧和两个次卧朝南,采光充足。主卧自带衣帽间空间,储物量不是很多且主卧空间较小,可以考虑拆除主卧衣帽间柜体拓宽面积,主卧背景交付做好,后期做设计调整。其余两个卧室都做卧室功能,可添加适当的储物功能,朝北房间转角窗户采光较好,可作为衣帽间兼书房使用。 软装色彩方面没有喧闹色彩 ,仅有一抹橙黄调色。时间的流逝,我们对家的依恋越发强烈轻松、自由是我们不变的追求,简约不简单是我们内心的向往。于是意式简约风格成为我们家居设计的风尚,越来越多的人摒弃奢华繁琐的装修,力求自然简约的居室空间。 设计背景:业主水先生喜欢简洁、自然的生活方式,作为年轻人婚房的准备。设计师为他提供了多种选择方案,最终确定了现意式简约风。客厅贯穿于餐厅,墙面采用艺术涂料过度,打造温馨自然的感觉。真皮沙发配上朴素自然的大理石茶几,打造高级感。餐桌位于窗户的旁边,采光 极好,纯色岩板餐桌搭配高级灰餐椅,透着清晰、自然感。主卧衣帽间是户型改造的亮点,扩大了主卧的空间,衣柜结合巴士移门的设计提升了生活品质和空间的整体性。
  • 图片
  • 图片
  • 图片
  • 图片
  • 图片
  • 图片
  • 图片
  • 图片
  • 图片
  • 图片
  • 图片
  • 图片
  • 图片
  • 图片
  • 图片
  • 上一个 下一个
    2024第八届金腾奖 私宅(独居)丨私宅(多人居)丨餐饮丨酒店丨办公丨商业丨公共丨公益丨人物丨NEW100 jintengAWARD(小金_金腾奖组委会) 广州市海珠区琶洲大道68号华新中心21楼
    金腾奖视频号 金腾奖小红书号 监制:刘译遥
    统筹:张俊媚
    运营:赖钰炼 曹凯月 刘芳棋 小金
    新媒体:王贝贝 严洁 张文一
    技术:黄天佑 丁德昌
    最终解释权归金腾奖主办方所有