以欢喜之心,慢度日常
作品详情
  • Details of the work 标题横线
    头像或者logo
    图片 张国泉 贰拾柒设计经纪特约推荐
    城市:重庆
    公司: 重庆橙子设计
    参赛作品: 以欢喜之心,慢度日常
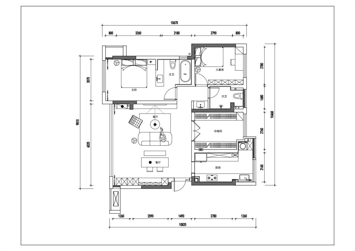
    空间类型:公寓(150㎡以下)
    个人/公司简介:
    设计理念:设计源于生活,用于生活,它以人为本,有需求便有设计。
    设计说明 | Design Instruction
  • 现代法式设计主要通过柔美的线条、精致的雕花和细腻的色彩搭配,营造出浪漫与优雅的氛围,以及高贵典雅的居住空间。满足当下人们“少即是多”的心态和追求,去除华丽的矫饰,以简洁的线条和装饰元素展现空间的纯粹与自然。能够与现代风、奶油风、极简风等多种风格相融合,展现出独特的格调和韵味。 整体色调采用奶油色、浅咖色等低饱和度的颜色作为背景色,赋予空间以浪漫和柔美。在局部空间点缀高饱和度的颜色,丰富空间色彩层次,呈现出法式的典雅与精致。
  • 图片
  • 图片
  • 图片
  • 图片
  • 图片
  • 图片
  • 图片
  • 图片
  • 图片
  • 图片
  • 图片
  • 图片
  • 图片
  • 图片
  • 图片
  • 图片
  • 图片
  • 图片
  • 图片
  • 上一个 下一个
    2024第八届金腾奖 私宅(独居)丨私宅(多人居)丨餐饮丨酒店丨办公丨商业丨公共丨公益丨人物丨NEW100 jintengAWARD(小金_金腾奖组委会) 广州市海珠区琶洲大道68号华新中心21楼
    金腾奖视频号 金腾奖小红书号 监制:刘译遥
    统筹:张俊媚
    运营:赖钰炼 曹凯月 刘芳棋 小金
    新媒体:王贝贝 严洁 张文一
    技术:黄天佑 丁德昌
    最终解释权归金腾奖主办方所有