怡然栖居
作品详情
  • Details of the work 标题横线
    头像或者logo
    图片 钱跃 贰拾柒设计经纪特约推荐
    城市:台州
    公司: 广东华浔品味装饰集团路桥分公司
    参赛作品: 怡然栖居
    空间类型:公寓(150㎡以下)
    个人/公司简介:
    金蝴蝶,红棉奖,金马克CBDA奖
    设计说明 | Design Instruction
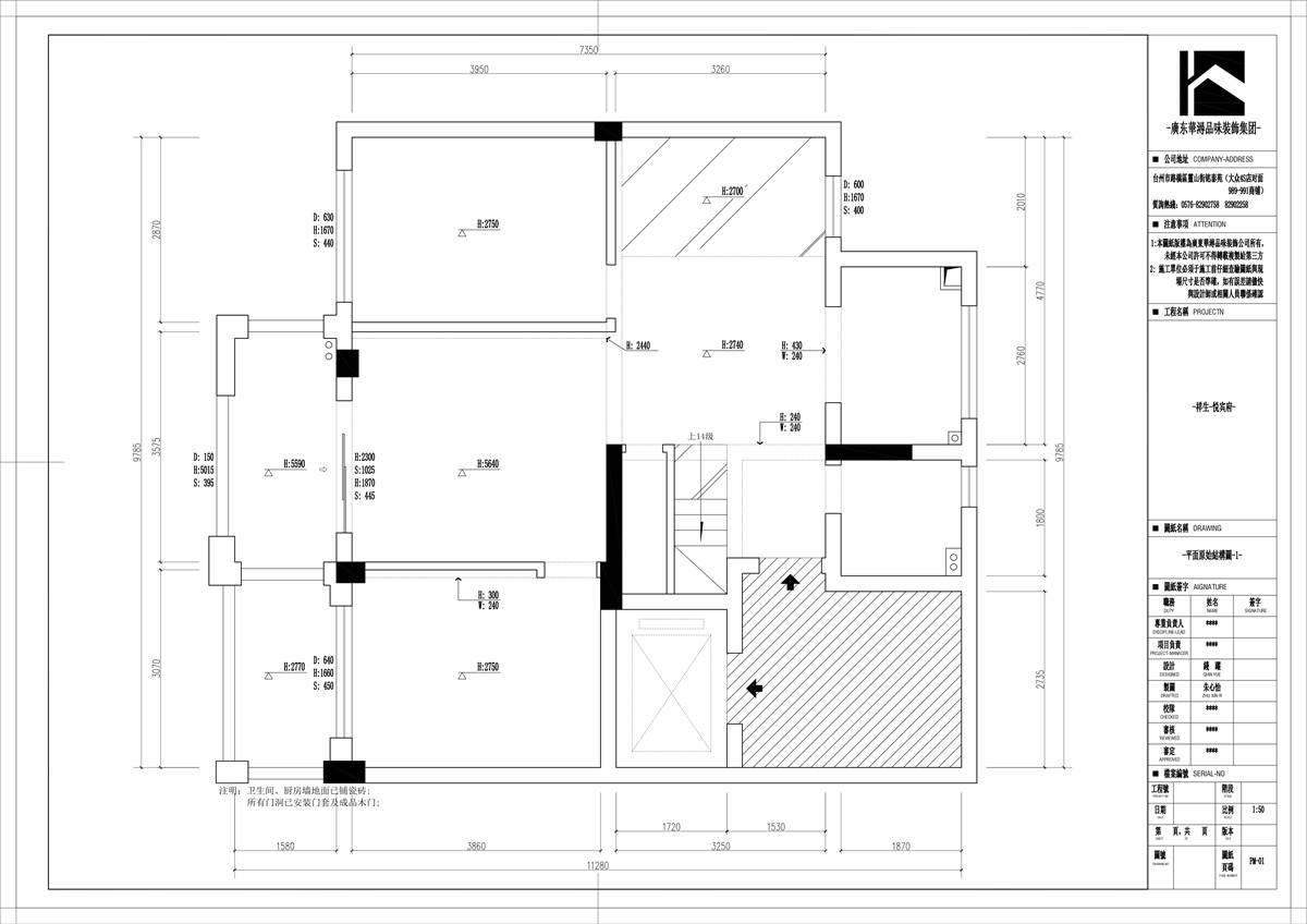
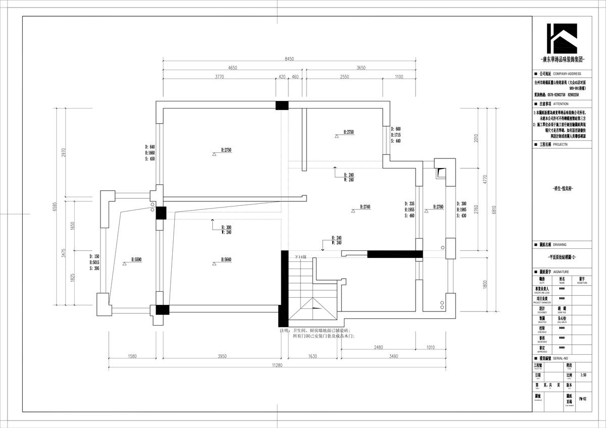
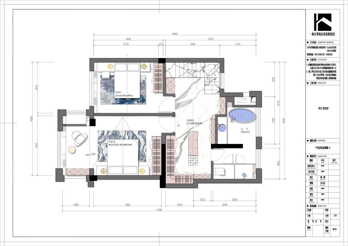
  • 本项目位于浙江台州祥生悦宾府案子,业主是一位非常时尚的女性,对于设计要求有很独立的想法和标准,对于新鲜事物接受能力也是非常强。 设计师首先在空间布局上找出几个问题:楼梯在门口近处阻挡了一部分进光且楼梯的占用面积需要合理规划避免浪费;卫生间也在门口处,隐私性和美观性都受到一定影响,整体空间里厨房和客厅还有主卧的面积都比较小,造成一定的局促感。好在户型南北通透,还有两个阳台,空间的可塑造性比较强。 同时,业主也给到设计师要求:男业主需要一个空间用来办公或者做家庭书房,男业主有抽烟的习惯所以此空间避免是开放式的空间,业主希望楼梯的空间能被合理利用的同时也要美观大气。一楼的房间不需要太多,留一个即可,因为家里有儿子和女儿,所以储物空间的需求就比较大,而且需要有一定的私密性。 设计师通过实地的考察和规划将原有的楼梯位置从门口改动到餐厅的位置,入户的第一眼就是个性化的悬叠式楼梯加上定制的木地板搭配,使得楼梯的整体性更强,空间的通透性增加并且入户的空间也变得更宽敞,屋内大多采用原木色护墙与白色护墙搭配,不仅让空间的活力性得到提升也更加体现空间的舒适性和温馨。 客厅沙发背景采用悬空式岩板,悬挂于天花板中,使客厅与书房连接在一起,增强家庭互动。电视背景采用整体原木色加格栅分段式设计。客厅空调单独放置在沙发上方,以原木色护墙进行修饰,使其与整体更为融合。这样的天花板设计能够完美融入整体空间。一楼次卧的设计将天花和床头背景融为一体,再加上一根磁吸轨道灯,呈现出简洁而不简单的效果。 厨房的使用时间较少,在满足生活所需要的基础下设计师将厨房做成半开放式空间,一体式餐岛餐桌使得空间更高级感,口袋门和酒柜空间的设计也让储物空间得到改善。一楼的客厅空间较小,男主人要求的书房空间设计师做成了半开放式,和厨房一样的半开放式空间让整个一楼的布局更加通透宽敞,更有层次感,也解决了男主人需要的吸烟区。 在二楼空间里,楼梯处就有一个开放式的衣帽间,原有的书房和卫生间也合并为了一个干湿分离的卫生间,四式分离的设计手法,岩板背景正好把浴缸衬托起来。
  • 图片
  • 图片
  • 图片
  • 图片
  • 图片
  • 图片
  • 图片
  • 图片
  • 图片
  • 图片
  • 图片
  • 图片
  • 图片
  • 图片
  • 图片
  • 图片
  • 图片
  • 图片
  • 图片
  • 图片
  • 图片
  • 图片
  • 图片
  • 图片
  • 图片
  • 图片
  • 图片
  • 图片
  • 图片
  • 图片
  • 图片
  • 图片
  • 图片
  • 图片
  • 图片
  • 图片
  • 图片
  • 图片
  • 图片
  • 图片
  • 图片
  • 图片
  • 图片
  • 图片
  • 图片
  • 图片
  • 图片
  • 图片
  • 图片
  • 图片
  • 图片
  • 图片
  • 图片
  • 图片
  • 图片
  • 图片
  • 图片
  • 图片
  • 图片
  • 图片
  • 图片
  • 图片
  • 图片
  • 图片
  • 图片
  • 图片
  • 图片
  • 图片
  • 图片
  • 图片
  • 图片
  • 图片
  • 图片
  • 图片
  • 图片
  • 图片
  • 图片
  • 图片
  • 图片
  • 图片
  • 图片
  • 图片
  • 图片
  • 上一个 下一个
    2024第八届金腾奖 私宅(独居)丨私宅(多人居)丨餐饮丨酒店丨办公丨商业丨公共丨公益丨人物丨NEW100 jintengAWARD(小金_金腾奖组委会) 广州市海珠区琶洲大道68号华新中心21楼
    金腾奖视频号 金腾奖小红书号 监制:刘译遥
    统筹:张俊媚
    运营:赖钰炼 曹凯月 刘芳棋 小金
    新媒体:王贝贝 严洁 张文一
    技术:黄天佑 丁德昌
    最终解释权归金腾奖主办方所有