随野
作品详情
  • Details of the work 标题横线
    头像或者logo
    图片 秦珊珊 贰拾柒设计经纪特约推荐
    城市:重庆
    公司: 十二分空间设计
    参赛作品: 随野
    空间类型:公寓(150㎡以下)
    个人/公司简介:
    2023 4040当代设计杰出青年(重庆) 2023 老宅新生十大改造设计师 2022 上海国际设计周新锐设计奖 2020 她设计年度优秀空间设计 2019 德国高仪中国住宅设计精英榜优秀奖 2019 芒果奖 2018 ids国际设计先锋榜 2018 芒果奖 2017-2018年度中国建筑装饰行业最具原创设计师 设计理念:设计始于生活,止于灵感,以专业设计视角提升空间价值,做有爱的设计,追求简约、自然、让人放松的空间氛围。
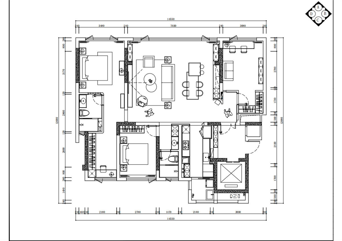
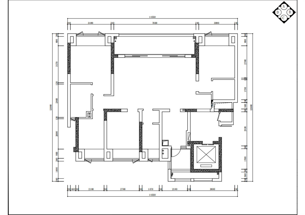
    设计说明 | Design Instruction
  • 温暖素雅的现代自然风,给人一种极度舒适的氛围,低调的配色外加线条简洁的家具,既有大自然的原生感,又有都市的简约感。 以米色和原木色的家具为主,打造温馨舒适的整体氛围;少许的黑色家具,增加视觉反差;绿色植物增加空间的自然气息;局部点缀棕色系家具,增添复古的感觉。 平面分析: 在保证功能前提下合理规划空间,充分考虑互动性、光线和使用场景,力求做到差异化与实际使用的结合。 1、一梯一户的户型,将电梯间作为鞋柜、快递接收中转处,避免破坏室内整洁; 2、四房改三房,入户处墙体内推,改变书房门位置,增大餐边柜的同时,又让玄关更有趣味性;洞石做壁龛,增加空间自然气息; 3、将阳台区域划入客厅空间,进一步扩大客厅面积,增大进光量。主卧做隐框门,与电视墙融为一体。厨房与外盥洗拆半墙,让外盥洗的储物柜跟厨房橱柜与木饰面形成一体,结合斯卡帕经典叠级造型,让进入两个区域的门洞显得有意思而不单调; 4、厨房外扩,增大厨房使用空间,因为有烘干机,所以适当减小生活阳台面积; 5、主卧跟相连的卧室形成套间,做独立衣帽间,释放卧室跟卫生间的共墙 ,增大卧室空间,将共墙做部分玻璃砖墙体设计,增大卫生间进光量。
  • 图片
  • 图片
  • 图片
  • 图片
  • 图片
  • 图片
  • 图片
  • 图片
  • 图片
  • 图片
  • 图片
  • 图片
  • 图片
  • 图片
  • 图片
  • 图片
  • 图片
  • 图片
  • 图片
  • 图片
  • 图片
  • 图片
  • 图片
  • 图片
  • 图片
  • 上一个 下一个
    2024第八届金腾奖 私宅(独居)丨私宅(多人居)丨餐饮丨酒店丨办公丨商业丨公共丨公益丨人物丨NEW100 jintengAWARD(小金_金腾奖组委会) 广州市海珠区琶洲大道68号华新中心21楼
    金腾奖视频号 金腾奖小红书号 监制:刘译遥
    统筹:张俊媚
    运营:赖钰炼 曹凯月 刘芳棋 小金
    新媒体:王贝贝 严洁 张文一
    技术:黄天佑 丁德昌
    最终解释权归金腾奖主办方所有