Warm Home
作品详情
  • Details of the work 标题横线
    头像或者logo
    图片 白菜适家 设计引力特约推荐
    城市:珠海
    公司:白菜适家
    参赛作品: 暖合
    空间类型:别墅
    个人/公司简介:
    白菜适家十五年来坚持以实景案例宣传,专注于理想生活模式的研究和设计工作,帮助粤港澳大湾区品质生活需求的客户,完成从理想生活创想到理想生活实现的美好愿景,同时坚持高品质感、高创新性、高美学性的设计工作。旗下有“亦安设计”“礼屋家居定制”,涵盖全案、精装及旧房改造、木作、主材/软装代购。承接珠海中山设计施工一体化服务,及异地纯设计服务。 曾荣获: 筑梦家人居空间设计大赛厨房命题年度杰出设计奖 Rayli瑞丽无界·轻奢生活优秀设计奖 ICS国际色彩空间设计奖 中国家装设计百强品牌 金案奖全国优胜奖 40UNDER40 中国(珠海)设计杰出青年 亚洲青年设计之光(中国内地)TOP 100 法国INNODESIGN国际创新设计大奖 意大利IIDA AWARD国际设计大奖 中国私宅设计年度评选全国TOP100杰出设计师 一兜糖最有温度设计师华南地区TOP100 好好住营造家奖年度设计TOP500 好好住年度推荐TOP100设计机构 TINTA 台湾金邸奖复层空间提名奖 上海设计周金梁设计奖 网易城市设计精英榜 TOP 50 上海国际设计周艺术指导 金堂奖-中国年度杰出住宅公寓设计 法国双面神“GPDP AWARD”国际室内设计银奖 金住奖-中国(珠海)十大居住空间设计师 中国建筑装饰协会学术与教育专家(设计类) 亚太设计精英邀请赛佳作奖 筑巢奖-普通户型优秀奖
    设计说明 | Design Instruction
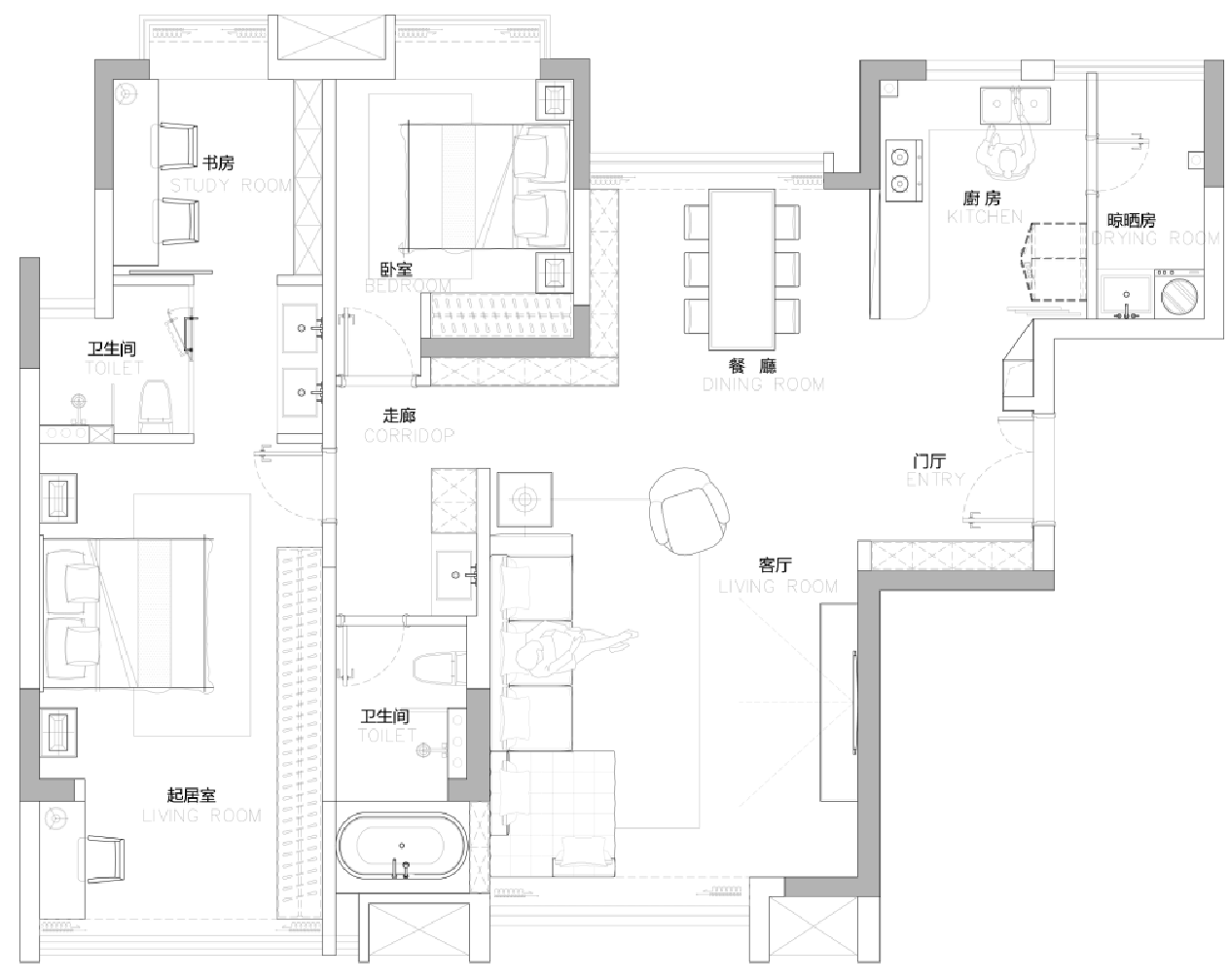
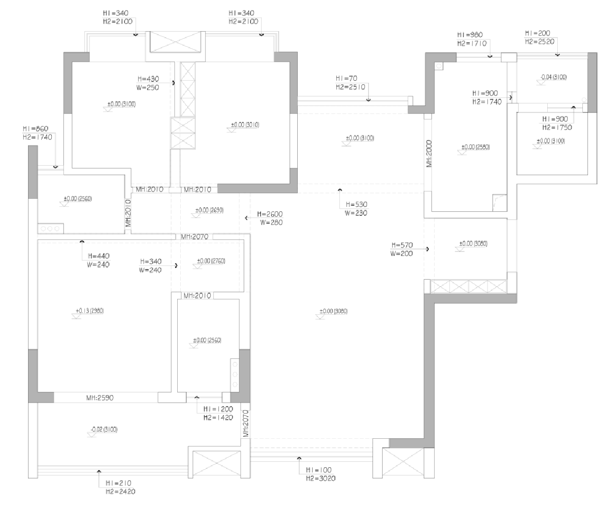
  • 项目名称 :暖合 全案设计:白菜适家 户型结构:平层 建筑面积:112㎡ 本案:原木奶油风格 这是一项旧房改造项目,本案的常住人口为一对小夫妻,应工作需求,双方工作日不在这边居住,只有周末过来居住,112㎡房子对于一家二口来说具有富余的空间。设计师在满足居住者空间实用性+美观性的同时,利用富余的空间打造宽敞明亮的半开放式布局,全屋采用低饱和度的奶色系为空间主色,柔光落在原木家居上,肌理流动着生命力,整体家自带温柔滤镜,以自然质朴的原木元素,打造一个浪漫奶油感的家 主要元素:选用木纹砖、颜色漆 整体基调:松弛感,氛围感。 1.(玄关区域)从入户开始,前方做了圆弧造景,地下放置绿植,即可充当入户 背景,造景中间镂空又可以连接电视柜和客厅形成互动关系、自大门左边是嵌入式鞋柜满足收纳功能需求时下面镂空打造光线,一侧还有业主喜欢摆放模型的位置。 2、(客厅区域)客厅放置男主人喜爱的大屏电视机,休闲时和女主人一起互动游戏。弧形的背景墙,与弧形电视地柜相呼应,3米的层高,放置超大型沙发使空间丰富饱满而不压抑,营造远离尘嚣、悠然自由的静谧慢下生活方式,自然光线透过窗帘将光影过滤的曼妙倾泻至室内。 3、(厨房区域)以半开放式中西厨结合放大空间,符合主人喜爱烹饪做饭生活方式、开放式空间下不再是孤军奋战的下厨,厨房和餐厅之间墙体半高,做宽20公分,形成吧台形式,使餐厅和厨房之间了互动交流更加便利。关上门来也可以制作爆炒之类美食,两者之间兼得。 4、(过道区域)过道不想太过于单一无味,半拱形圆弧廊道打破了横平竖直的约束,为空间给予灵动+趣味性。 5、(主卧区域)主卧结合了休息,卫生及游戏的一个套件形式。一个包容性极强的休憩睡眠空间,足以治愈一天的疲惫。主卧进门右边,是我们干湿分离的卫生间,这样业主早上起床,两者可以互不打扰,往里走,就是业主心心念念的电竞房,放置两台电脑,满足业主他们游戏需求,里面还放置沙发床,这样男主人游戏晚了,可以在这里小憩一下。
  • 图片
  • 图片
  • 图片
  • 图片
  • 图片
  • 图片
  • 图片
  • 图片
  • 图片
  • 图片
  • 图片
  • 图片
  • 图片
  • 图片
  • 图片
  • 图片
  • 上一个 下一个
    2024第八届金腾奖 私宅(独居)丨私宅(多人居)丨餐饮丨酒店丨办公丨商业丨公共丨公益丨人物丨NEW100 jintengAWARD(小金_金腾奖组委会) 广州市海珠区琶洲大道68号华新中心21楼
    金腾奖视频号 金腾奖小红书号 监制:刘译遥
    统筹:张俊媚
    运营:赖钰炼 曹凯月 刘芳棋 小金
    新媒体:王贝贝 严洁 张文一
    技术:黄天佑 丁德昌
    最终解释权归金腾奖主办方所有