An elegant time to encounter life, the beauty of the fusion of minimalism and antiquity
作品详情
  • Details of the work 标题横线
    头像或者logo
    图片 成都拾光悠然设计 设计引力特约推荐
    城市:成都
    公司:成都拾光悠然设计
    参赛作品: 邂逅生活的优雅时光,极简与中古的融合之美
    空间类型:别墅
    个人/公司简介:
    拾光悠然设计是一家集设计、施工、产品一体化的专业全案设计公司。 多年来,我们坚持“少即是多”的原则,在不追求单量的情况下,用真诚服务于每一位屋主的托付,我们一直坚持真正意义上的全案项目落地。 同时站在专业的设计角度,帮助屋主找到完全属于他们的生活方式。通过空间的设计,去创造属于他们独一无二的居所。
    设计说明 | Design Instruction
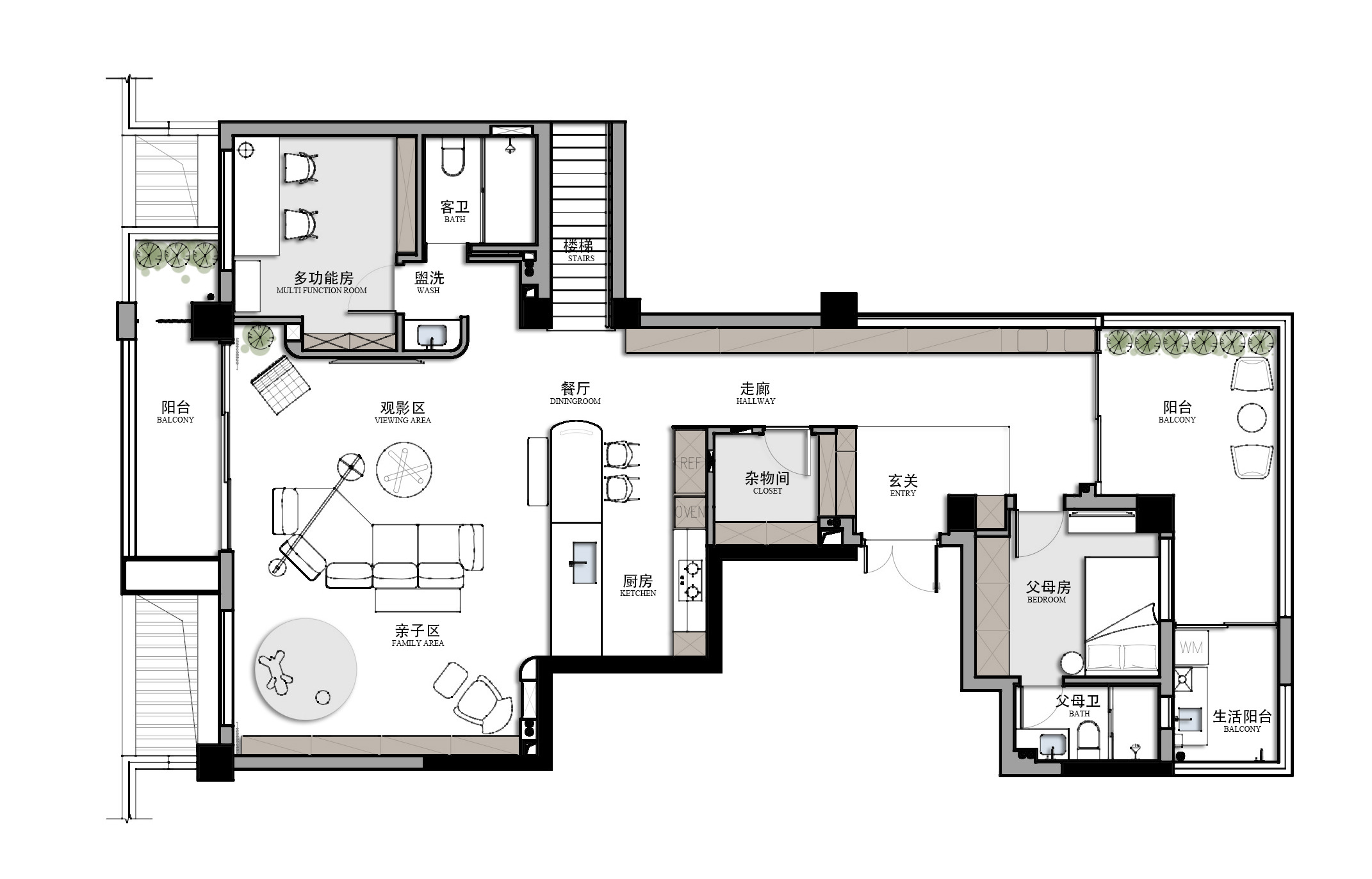
  • 在繁忙的都市生活中,每个人都渴望拥有一个静谧的空间,让心灵得到片刻的安宁。这套位于麓湖的住宅,复古而极简,设计师通过巧妙运用不同的材料与纹理装饰空间,并选用各时期的复古家具,打造出富有独特美感的生活空间。 屋主希望空间既有家的温暖,又展现出个性化的设计。因此,我们通过独特的元素、色彩、纹理和织物,将每个房间进行区分,营造出各具特色的生活场所。完美满足了屋主的审美需求和日常生活需要。坐在家中,屋主可以欣赏到户外的美丽景色,体验到与大自然的亲密接触。 现代简约与复古元素完美融合,创造出一个既具历史韵味又不失现代感的家居空间。在这里,屋主可以享受到穿越时光的优雅与宁静,体验舒适自在的居家生活。
  • 图片
  • 图片
  • 图片
  • 图片
  • 图片
  • 图片
  • 图片
  • 图片
  • 图片
  • 图片
  • 图片
  • 图片
  • 图片
  • 图片
  • 图片
  • 图片
  • 图片
  • 图片
  • 图片
  • 图片
  • 图片
  • 图片
  • 图片
  • 图片
  • 图片
  • 图片
  • 图片
  • 图片
  • 图片
  • 图片
  • 图片
  • 图片
  • 图片
  • 图片
  • 图片
  • 图片
  • 图片
  • 图片
  • 上一个 下一个
    2024第八届金腾奖 私宅(独居)丨私宅(多人居)丨餐饮丨酒店丨办公丨商业丨公共丨公益丨人物丨NEW100 jintengAWARD(小金_金腾奖组委会) 广州市海珠区琶洲大道68号华新中心21楼
    金腾奖视频号 金腾奖小红书号 监制:刘译遥
    统筹:张俊媚
    运营:赖钰炼 曹凯月 刘芳棋 小金
    新媒体:王贝贝 严洁 张文一
    技术:黄天佑 丁德昌
    最终解释权归金腾奖主办方所有