长江铭著
作品详情
  • Details of the work 标题横线
    头像或者logo
    图片 一间“喜物” 贰拾柒设计经纪特约推荐
    城市:重庆
    公司:一间“喜物”
    参赛作品: 长江铭著
    空间类型:别墅
    个人/公司简介:
    一间“喜物”,非广厦千间,却满载情感与故事,它不仅是物质的集合,更是心灵的栖所,承载着主人对生活的独特见解与无尽热爱。在这方寸之间,每一件物品都经过精心挑选,每一处布置都蕴含深意,它们共同编织成一首赞美生活、颂扬热爱的诗篇。
    设计说明 | Design Instruction
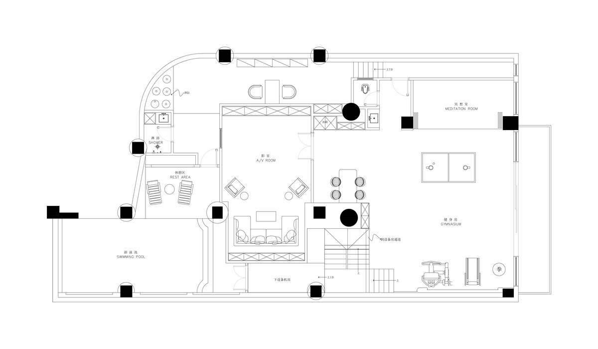
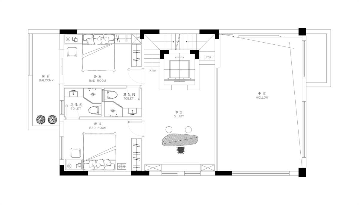
  • 时尚与纯净的邂逅:现代别墅优雅生活范本,纯净·优雅·致享。 在设计之初,我们深入挖掘“优雅”的内涵,将之转化为别墅空间的流动线条与和谐比例。主体建筑借鉴了现代建筑设计精髓,以简洁明快的几何形状勾勒出恢弘气派的外观轮廓,配合大面积落地窗的设计,将户外美景无缝接入室内,实现内外环境的和谐对话,彰显主人优雅不凡的品味。Outdoor landscape of negative second floor | 一楼室外景观 它不仅是一处静谧雅致的居住空间,更是一首赞美生命自由与美的生活颂歌,坐拥一线江景,演绎水岸生活的静谧与尊贵,亲吻江岸线,开启每日与浩渺江水的深情对话。 1st basement leisure hall | 负一楼休闲厅 在繁华都市的喧嚣之外,我们以“蝴蝶”为设计主题,将负一楼打造成了一处静谧雅致的休闲空间,步入室内,更是将蝴蝶元素贯穿始终。大厅顶部的吊灯设计如同蝴蝶破茧而出的瞬间,晶莹剔透,熠熠生辉,寓意着生命的坚韧与重生。墙面装饰则借鉴了蝴蝶翅膀的纹理,通过精致的手工艺术处理,营造出梦幻而浪漫的氛围。家具陈设亦融入蝴蝶元素,线条流畅,形制优雅,细节之处尽显匠心独运。我们的设计师巧妙地将红蓝元素融入别墅的各个角落,既有红色装饰屏风在静谧的空间中跃然而出,形成视觉焦点,又有蓝色的家具带来强烈的视觉冲击力与艺术张力。这种红蓝搭配不仅打破了空间的沉闷,更赋予了别墅与众不同的性格与气质。 First floor dining room | 一楼客餐厅 设计师们以其卓越的艺术眼光,将现代极简主义与古典韵味交织融合,创造出既有文化底蕴又不失时尚气息的独特风格。挑高客厅的格局设计,明亮开阔,流露出大气而不失细腻的气质;定制的高级石材墙面与金属质感的装饰元素相互映衬,低调奢华,展现出现代都市生活的高贵典雅。在色彩搭配上将热烈而激昂,象征着活力与激情的红色和深邃且宁静代表着理智与高远的蓝绿色融入整个设计之中。精巧的水晶吊灯在光影交错中折射出璀璨光芒,每一件家具艺术品都经过精心挑选和定制,力求每一个细节都能传达出细腻入微的质感体验。 Residential space on the second and third floors| 二三楼居住空间 卧室空间布局遵循“以人为本”的设计理念,宽敞而不失温馨,开放而又不失私密。主卧区域与更衣室、独立卫浴间形成流畅的动线,既保证了功能区间的独立性,又实现了空间的连贯与和谐。大开间设计,使得阳光能毫无保留地洒满整个房间,赋予空间明亮而通透的生命力。 Entertainment and leisure space on negative third and fourth floors  | 负三四楼娱乐休闲空间 这座精心设计的一线临江别墅,不仅提供舒适的居住空间,更将高品质生活方式融入其中,通过室内泳池、健身房、影音室及茶室四大特色功能区的打造,构筑了一个全方位、多层次的休闲娱乐王国,让居者在家中即可畅享丰富多彩的生活逸趣。
  • 图片
  • 图片
  • 图片
  • 图片
  • 图片
  • 图片
  • 图片
  • 图片
  • 图片
  • 图片
  • 图片
  • 图片
  • 图片
  • 图片
  • 图片
  • 图片
  • 图片
  • 图片
  • 图片
  • 图片
  • 图片
  • 图片
  • 图片
  • 图片
  • 图片
  • 图片
  • 图片
  • 图片
  • 图片
  • 图片
  • 图片
  • 图片
  • 图片
  • 图片
  • 图片
  • 图片
  • 上一个 下一个
    2024第八届金腾奖 私宅(独居)丨私宅(多人居)丨餐饮丨酒店丨办公丨商业丨公共丨公益丨人物丨NEW100 jintengAWARD(小金_金腾奖组委会) 广州市海珠区琶洲大道68号华新中心21楼
    金腾奖视频号 金腾奖小红书号 监制:刘译遥
    统筹:张俊媚
    运营:赖钰炼 曹凯月 刘芳棋 小金
    新媒体:王贝贝 严洁 张文一
    技术:黄天佑 丁德昌
    最终解释权归金腾奖主办方所有