大洲l龙郡别墅
作品详情
  • Details of the work 标题横线
    头像或者logo
    图片 For eyes design group 贰拾柒设计经纪特约推荐
    城市:重庆
    公司:For eyes design group
    参赛作品: 大洲l龙郡别墅
    空间类型:公寓(150㎡以下)
    个人/公司简介:
    怀着共同目标的设计师联合创立的创意设计机构;在多年行业积累和经验之上,仍保持设计作品的活力与思想的开放性。 在新生事物和价值观不断涌现的今天,秉承着客观与冷静的态度,从更多的角度进行观察与着手,让我们的设计保持鲜活的生命力。
    设计说明 | Design Instruction
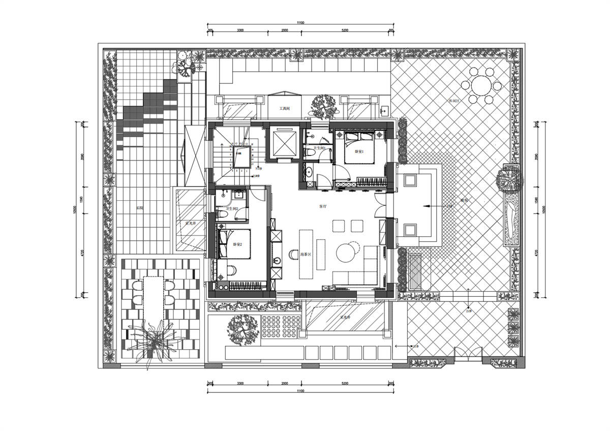
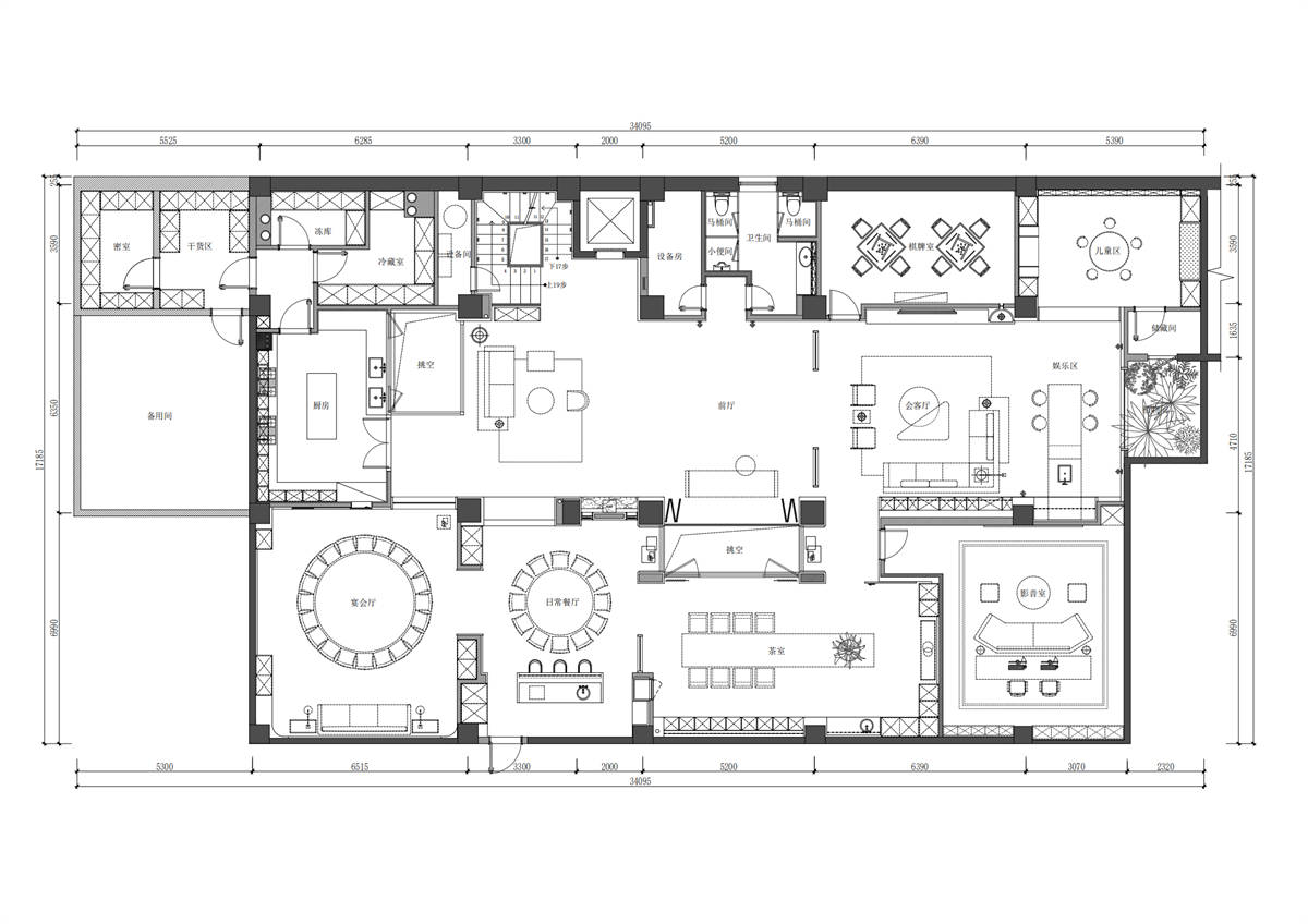
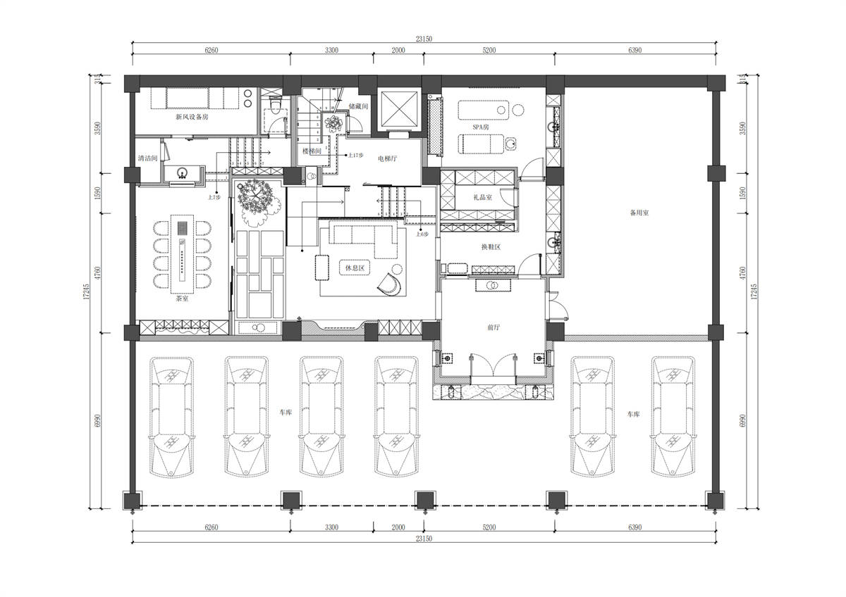
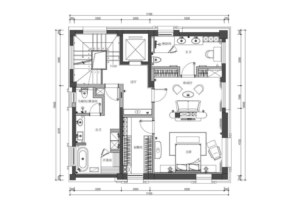
  • 现代风格别墅强调简洁的线条和纯粹的几何形状。建筑外观通常以直线、矩形、圆形等基本几何图形构成,摒弃了繁琐的装饰和多余的细节,给人以简洁明快的视觉感受。大面积的玻璃幕墙和落地窗的运用,不仅增加了室内的采光,还使别墅与自然环境融为一体,营造出通透、开阔的空间感。 色彩方面,现代风格别墅多采用中性色调,如白色、灰色、黑色等,这些颜色简洁大气,易于搭配,同时也能营造出宁静、优雅的氛围。
  • 图片
  • 图片
  • 图片
  • 图片
  • 图片
  • 图片
  • 图片
  • 图片
  • 图片
  • 图片
  • 图片
  • 图片
  • 图片
  • 图片
  • 图片
  • 图片
  • 图片
  • 图片
  • 图片
  • 图片
  • 图片
  • 图片
  • 图片
  • 图片
  • 图片
  • 图片
  • 图片
  • 图片
  • 图片
  • 图片
  • 图片
  • 图片
  • 图片
  • 图片
  • 图片
  • 图片
  • 图片
  • 上一个 下一个
    2024第八届金腾奖 私宅(独居)丨私宅(多人居)丨餐饮丨酒店丨办公丨商业丨公共丨公益丨人物丨NEW100 jintengAWARD(小金_金腾奖组委会) 广州市海珠区琶洲大道68号华新中心21楼
    金腾奖视频号 金腾奖小红书号 监制:刘译遥
    统筹:张俊媚
    运营:赖钰炼 曹凯月 刘芳棋 小金
    新媒体:王贝贝 严洁 张文一
    技术:黄天佑 丁德昌
    最终解释权归金腾奖主办方所有