Unruly Mountain Stream
作品详情
  • Details of the work 标题横线
    头像或者logo
    图片 张靖 丽水几支传媒特约推荐
    城市:丽水
    公司: 独立设计师
    参赛作品: 不羁·山涧
    空间类型:别墅
    个人/公司简介:
    张靖来自浙江丽水的一名95后主创全案设计师 注重设计的合理性与人性化细节设计材料的质感与温馨的灯光氛围。提倡“设计落地的重要性”以客户满意的结果为最终导向拒绝搬运式设计,每一个设计都应该有故事有温度的,以每一位不同的客户需求为基础的私人定制服务。
    设计说明 | Design Instruction
  • 丽湾半岛别墅区坐落于浙江丽水好溪湖畔,周围山水相依,置身园中,听山闻水。中式院落规制与不羁美式相碰撞。美式自然的松弛感犹如画卷细展开。 一层以木色引领光的流动,以温和的手法巧妙“重构”空间纵横与高下的合宜尺度,低饱和度的微水泥上墙搭配老横梁,自带的肌理感古朴又自然。 悠然中找寻自我的状态,空间被赋予了开放、优雅、宁静的特质,隐约的百叶窗将自然光线引入室内,内与外的色调相协调,营造出一种和谐统一的整体感。石头是自然界中常见的元素,用来装饰别具一格,把自然带回家中,让生活多几分自然清新。 我们将地下室进行拆分,形成一个服务空间:负一层。将储藏,洗衣等功能置于这一层 ,负二层则作为会客区和品茗空间。美式黄铜吊灯造型复古拉伸调高,当铁艺灯照亮回形楼梯,延伸出无限空间遐想。 通过抬高和顶面材质来限定出茶室空间.一茶一世界,光线、气味、材质交织围合一隅静心之境与禅意人生,室内外的界限被模糊,是庸碌日常外的一场微妙温润的叙事。 会客区红色沙发与大卫人像碰撞出别样美调,沙发置于整个空间中,色彩搭配更大胆,弧形元素弱化了直线的尖锐,整体视觉让空间更加柔和与浪漫。 穿插的装饰墙与光影相辅相成,在有限的场域中延续着开放的设计构思,明暗交迭铺陈空间里的光影节奏。 书房以质感厚实的原木为主,强调书桌书柜的历史感,色调以暗沉色为主,看起来严肃且庄重,静谧中散发出淡淡书卷香。 主卧四根脚柱支撑起复古穹顶,房间以奶茶色为基调,充满温柔浪漫的气息。PU线条,全铜蜡烛吊灯元素,点缀着空间的古朴与精致。美式中古风的实木床,梦幻优雅,搭配上素色雅致的床品,温柔的复古感扑面而来。
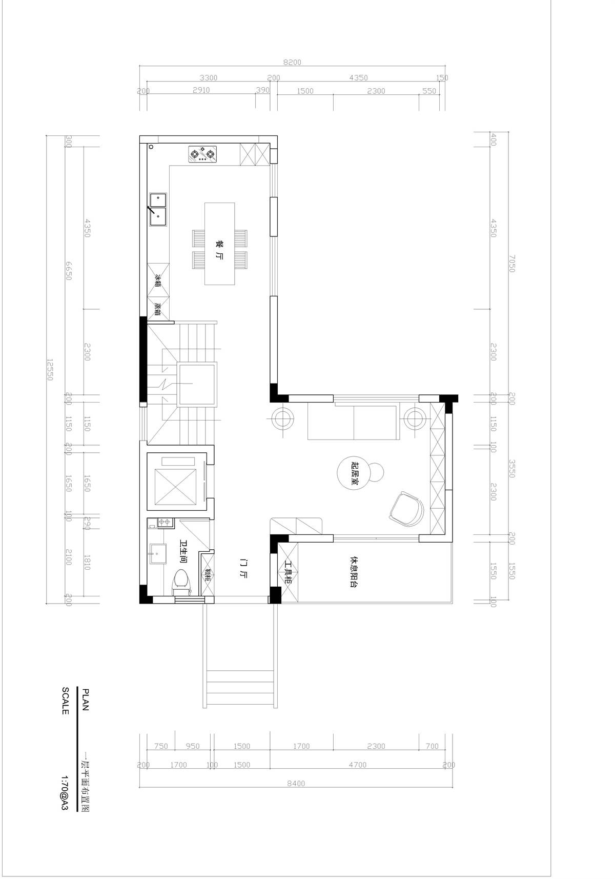
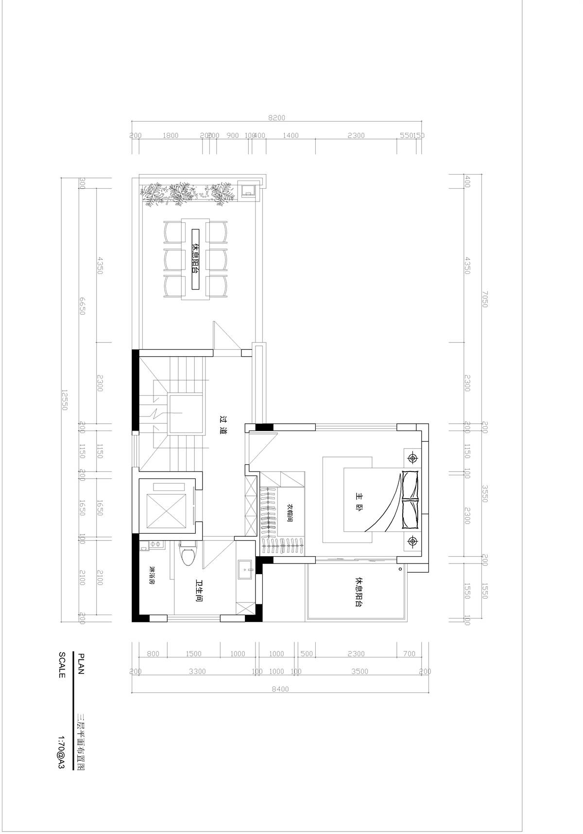
  • 图片
  • 图片
  • 图片
  • 图片
  • 图片
  • 图片
  • 图片
  • 图片
  • 图片
  • 图片
  • 图片
  • 图片
  • 图片
  • 图片
  • 图片
  • 图片
  • 图片
  • 图片
  • 图片
  • 图片
  • 图片
  • 图片
  • 图片
  • 图片
  • 图片
  • 图片
  • 图片
  • 图片
  • 图片
  • 图片
  • 图片
  • 图片
  • 图片
  • 图片
  • 图片
  • 图片
  • 图片
  • 图片
  • 图片
  • 图片
  • 图片
  • 图片
  • 图片
  • 图片
  • 上一个 下一个
    2024第八届金腾奖 私宅(独居)丨私宅(多人居)丨餐饮丨酒店丨办公丨商业丨公共丨公益丨人物丨NEW100 jintengAWARD(小金_金腾奖组委会) 广州市海珠区琶洲大道68号华新中心21楼
    金腾奖视频号 金腾奖小红书号 监制:刘译遥
    统筹:张俊媚
    运营:赖钰炼 曹凯月 刘芳棋 小金
    新媒体:王贝贝 严洁 张文一
    技术:黄天佑 丁德昌
    最终解释权归金腾奖主办方所有