Warm Sunshine And Autumn
作品详情
  • Details of the work 标题横线
    头像或者logo
    图片 西安异构空间设计装饰工程有限公司 设计引力特约推荐
    城市:西安
    公司:西安异构空间设计装饰工程有限公司
    参赛作品: 晚秋暖阳
    空间类型:公寓(150㎡以下)
    个人/公司简介:
    “西安异构设计”创建于2017年。是一家集室内设计、工程施工、软装定制一体的全案设计公司,在西安家装产业已形成专业化的领先优势。品牌诞生的初衷,是为了让西安年轻人有更个性化、多元化的设计选择,从而打造年轻人的第一个家。7年来我们始终坚持原创设计和落地还原,在为业主提供定制化设计服务的同时,坚持做到效果还原,从而收获了市场的认可和粉丝业主的信任。公司始终以“不止设计,更为还原”的品牌理念,注重原创设计与施工、定制、软装的全案配合,并坚持老板直管工地,做到业主省心放心的服务体系。
    设计说明 | Design Instruction
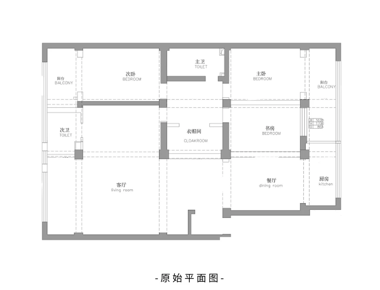
  • 本案业主是一家三口,也是一个旧房改造项目。业主希望在家里是能治愈心灵的栖息地,不仅要有格调,还要能彰显出业主的性格和爱好。在本案设计中设计师重新规划空间布局,打造出超有氛围感的梦中情房。客厅整体采用无主灯设计,大横厅的设计搭配哑光灰砖通铺,让空间在视觉上更显大,阳光透过百叶帘照进屋内,在秋日里暖阳的烘托下显得格外舒适惬意。木百叶搭配藤编收纳柜,原本次卫拆除空间更大更宽敞,改为小巧又实用的水吧区,一家人会在这里阅读、工作和学习,在这里感觉时间仿佛都变慢了。本案亮点客餐厅由一道洄游动线连通的,将原始空间衣帽间改为收纳设计,并起到连通空间的过渡作用,一些小细节装饰和设计体现了业主的喜好和个性。本案以原木风为主,打造出秋意美拉德的氛围,低调、稳重、质感十足,简约明亮的同时又有层次感,让住宅在平淡中多了一份温暖的感觉。
  • 图片
  • 图片
  • 图片
  • 图片
  • 图片
  • 图片
  • 图片
  • 图片
  • 图片
  • 图片
  • 图片
  • 图片
  • 图片
  • 图片
  • 图片
  • 图片
  • 图片
  • 图片
  • 图片
  • 图片
  • 图片
  • 图片
  • 上一个 下一个
    2024第八届金腾奖 私宅(独居)丨私宅(多人居)丨餐饮丨酒店丨办公丨商业丨公共丨公益丨人物丨NEW100 jintengAWARD(小金_金腾奖组委会) 广州市海珠区琶洲大道68号华新中心21楼
    金腾奖视频号 金腾奖小红书号 监制:刘译遥
    统筹:张俊媚
    运营:赖钰炼 曹凯月 刘芳棋 小金
    新媒体:王贝贝 严洁 张文一
    技术:黄天佑 丁德昌
    最终解释权归金腾奖主办方所有