Tolerant Demeanor
作品详情
  • Details of the work 标题横线
    头像或者logo
    图片 西安异构空间设计装饰工程有限公司 设计引力特约推荐
    城市:西安
    公司:西安异构空间设计装饰工程有限公司
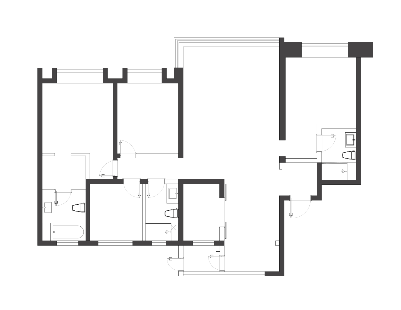
    参赛作品: 休休有容
    空间类型:公寓(150㎡以下)
    个人/公司简介:
    “西安异构设计”创建于2017年。是一家集室内设计、工程施工、软装定制一体的全案设计公司,在西安家装产业已形成专业化的领先优势。品牌诞生的初衷,是为了让西安年轻人有更个性化、多元化的设计选择,从而打造年轻人的第一个家。7年来我们始终坚持原创设计和落地还原,在为业主提供定制化设计服务的同时,坚持做到效果还原,从而收获了市场的认可和粉丝业主的信任。公司始终以“不止设计,更为还原”的品牌理念,注重原创设计与施工、定制、软装的全案配合,并坚持老板直管工地,做到业主省心放心的服务体系。
    设计说明 | Design Instruction
  • 简洁明快是本案的主要特点之一,设计师更加注重对室内空间的充分利用,家居装饰上采取精致主义,摒弃所有与生活习惯不契合的元素。本案拆除原厨房部分墙体,增强餐厨之间的功能联动;对主卧空间进行整合,优化套间功能,提升居住体验感。客厅墙面注重线条感,用石膏线让整体居室更具设计感且不单调。开阔的沙发单品让休闲区得以延伸。开放式的客餐结构,精简的设计理念,一体化的居住概念更具空间感,也大大增加了生活上的便捷。餐厅利用原厨房一面墙体延伸做石材岛台,“双口字形”墙体结构,一方面可以是餐桌功能的延伸,另一方面则辅助阳台洗烘区的完整。主卧整体色调采用灰色和木色的结合,同色系的靠背和背景墙配合得天衣无缝,使整个空间更加和谐统一。特别的是次卧承载着老人的睡眠功能,双床的设计避免互相打扰,行动更加自由。
  • 图片
  • 图片
  • 图片
  • 图片
  • 图片
  • 图片
  • 图片
  • 图片
  • 图片
  • 图片
  • 图片
  • 图片
  • 图片
  • 图片
  • 图片
  • 图片
  • 图片
  • 图片
  • 图片
  • 图片
  • 图片
  • 图片
  • 上一个 下一个
    2024第八届金腾奖 私宅(独居)丨私宅(多人居)丨餐饮丨酒店丨办公丨商业丨公共丨公益丨人物丨NEW100 jintengAWARD(小金_金腾奖组委会) 广州市海珠区琶洲大道68号华新中心21楼
    金腾奖视频号 金腾奖小红书号 监制:刘译遥
    统筹:张俊媚
    运营:赖钰炼 曹凯月 刘芳棋 小金
    新媒体:王贝贝 严洁 张文一
    技术:黄天佑 丁德昌
    最终解释权归金腾奖主办方所有