Unité d'habitation
作品详情
  • Details of the work 标题横线
    头像或者logo
    图片 杭州向右设计
    城市:杭州
    公司:杭州向右设计
    参赛作品: 马赛公寓
    空间类型:公寓(150㎡以下)
    个人/公司简介:
    向右设计是一个小众的设计团队,由90后成员组成,致力于居住类私宅空间与商业类空间设计,不被风格与空间束缚,专注追求创造美学和功能并存的设计团队。
    设计说明 | Design Instruction
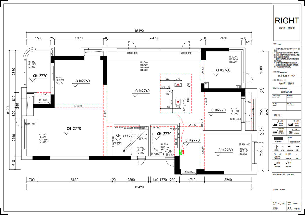
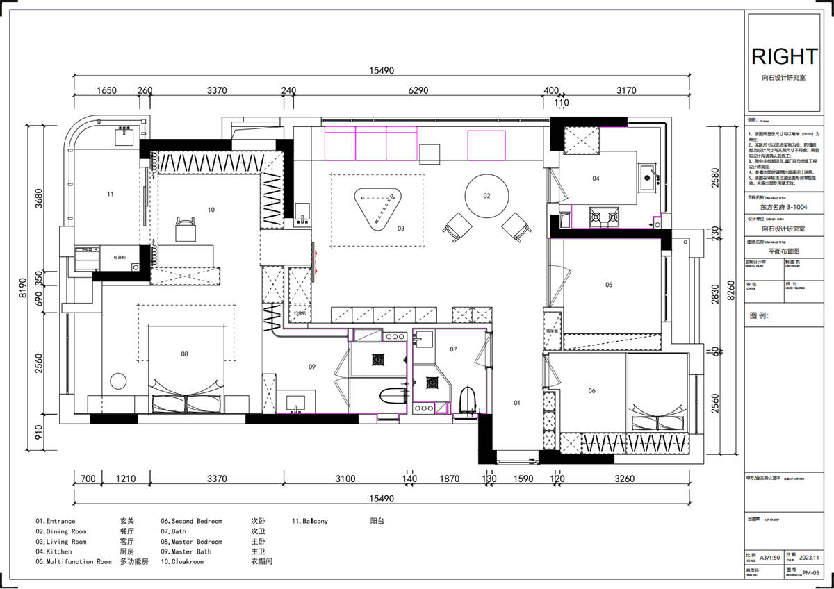
  • Marc(95后男屋主),法国留学 酒店管理专业 现酒店工作,因为工作属性的原因,喜欢有设计感的酒店,也是一位黑胶爱好者,喜欢手磨咖啡。 大懒(95后银行职业),现银行职员 美国留学,留学期间去了一趟墨西哥瓜纳华托(飞屋环球记的取景)家里一些彩色的元素灵感来源。 房子面积130平,改造前原户型四室两厅一厨两卫的结构,改造后我们三室两厅一厨两卫的结构,屋主对于这个房子的初衷,近几年是以两个人住为主,房子主要还是围绕两个人。 户型是国内比较常见的边套的户型,原本客餐厅陈设方式直观的感受客厅比较拥挤,但是原本飘窗高度刚好可以拿来做沙发去,我们设计中也引用了一些酒店沙发卡座的设计理念,将原本的客厅餐厅打破重组,也能将客餐厅的空间最大化释放出来,在客厅中增加了屋主需要的水吧台的功能,客厅效果呈现表达中,我们也用了男业主喜欢的木色跟女屋主喜欢的彩色结合,原本南面两个卧室我们打通做了南面的卧室套房,原本卫生间也是封闭的形式,我们将卫生间做了三分离,将卧室跟卫生间做了联动,主卧衣柜,床头这些我们也做了色彩的组合,关于风格定位中,我们希望空间是有趣,年轻化的,更加希望能展现出国外公寓的一些质感,我们定位一些当代的马赛公寓的大方向
  • 图片
  • 图片
  • 图片
  • 图片
  • 图片
  • 图片
  • 图片
  • 图片
  • 图片
  • 图片
  • 图片
  • 图片
  • 图片
  • 图片
  • 图片
  • 图片
  • 图片
  • 图片
  • 图片
  • 图片
  • 图片
  • 图片
  • 图片
  • 图片
  • 图片
  • 图片
  • 图片
  • 图片
  • 图片
  • 图片
  • 图片
  • 上一个 下一个
    2024第八届金腾奖 私宅(独居)丨私宅(多人居)丨餐饮丨酒店丨办公丨商业丨公共丨公益丨人物丨NEW100 jintengAWARD(小金_金腾奖组委会) 广州市海珠区琶洲大道68号华新中心21楼
    金腾奖视频号 金腾奖小红书号 监制:刘译遥
    统筹:张俊媚
    运营:赖钰炼 曹凯月 刘芳棋 小金
    新媒体:王贝贝 严洁 张文一
    技术:黄天佑 丁德昌
    最终解释权归金腾奖主办方所有