明秀庄园别墅
作品详情
  • Details of the work 标题横线
    头像或者logo
    图片 罗海滨 菁英學設特约推荐
    城市:大连
    公司: 添曜设计
    参赛作品: 明秀庄园别墅
    空间类型:公寓(150㎡以下)
    个人/公司简介:
    职称:(中国高级室内设计师/建筑师) 介绍:(罗海滨,曾就读广州工业大学,兼修建筑设计和室内设计,1998年开始以“共鸣和成长”的设计理念,专注于:私人住宅,别墅空间,地产样板间设计服务。参与并设计众多项目,包括广州南沙国际会议中心和蒲州广场,大连明秀庄园别墅、伊顿山庄别墅、橡树庄园别墅、华侨别墅、万科观贤别墅、龙湖地产样板间等。2018年入围IIDA室内设计竞赛美国旧金山总决赛。 从古典奢华,到现代前卫,从地产样板设计,到私人会所,主张做成长和被需求的空间设计,多个原创作品被行业媒体和行业机构收录,并多次受邀出席参加广州设计周、意大利米兰家居展等国际活动。) 奖项身份# —————————————— 1998- 广州工业大学 建筑设计系 毕业 2006-今 大连瀛德地产 设计总监 2013-今 大连添曜设计 创始人/设计主理人 2018年 IIDA室内设计竞赛美国旧金山总决赛 2022 M.I.De.C米兰国际设计师俱乐部 入围认证成员
    设计说明 | Design Instruction
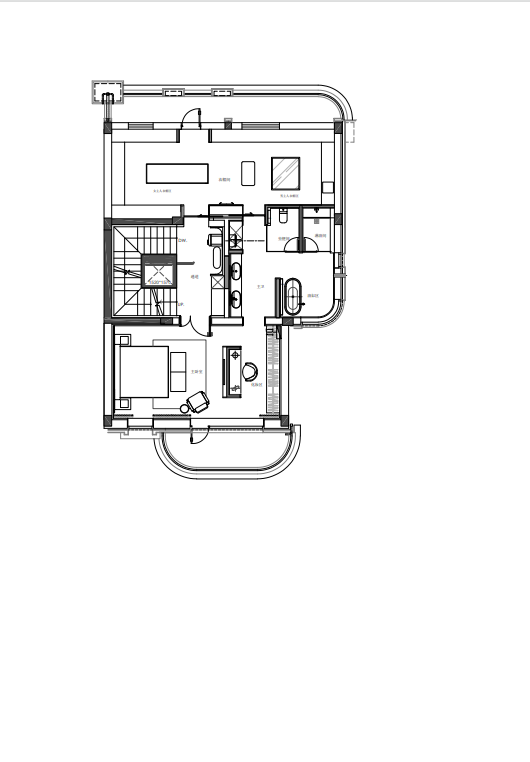
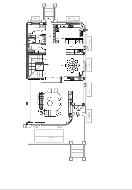
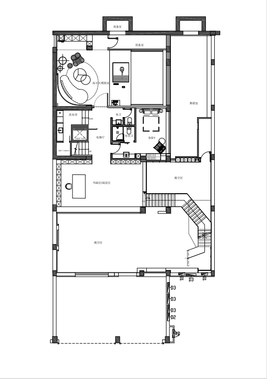
  • 项目地处大连最宜居的东南部沿海版块,坐拥市中心中山区百年核心的贵胄城脉。项目面积1000平,在空间里运用了大量的色彩与木质材料结合。营造出舒适的居住氛围。
  • 图片
  • 图片
  • 图片
  • 图片
  • 图片
  • 图片
  • 图片
  • 图片
  • 图片
  • 图片
  • 图片
  • 图片
  • 图片
  • 图片
  • 图片
  • 图片
  • 图片
  • 图片
  • 图片
  • 图片
  • 图片
  • 图片
  • 图片
  • 图片
  • 图片
  • 图片
  • 图片
  • 图片
  • 图片
  • 图片
  • 图片
  • 图片
  • 图片
  • 图片
  • 图片
  • 图片
  • 图片
  • 图片
  • 图片
  • 图片
  • 图片
  • 上一个 下一个
    2024第八届金腾奖 私宅(独居)丨私宅(多人居)丨餐饮丨酒店丨办公丨商业丨公共丨公益丨人物丨NEW100 jintengAWARD(小金_金腾奖组委会) 广州市海珠区琶洲大道68号华新中心21楼
    金腾奖视频号 金腾奖小红书号 监制:刘译遥
    统筹:张俊媚
    运营:赖钰炼 曹凯月 刘芳棋 小金
    新媒体:王贝贝 严洁 张文一
    技术:黄天佑 丁德昌
    最终解释权归金腾奖主办方所有