逐光之居
作品详情
  • Details of the work 标题横线
    头像或者logo
    图片 王瀚悦 贰拾柒设计经纪特约推荐
    城市:重庆
    公司: 独立设计师
    参赛作品: 逐光之居
    空间类型:公寓(150㎡以下)
    个人/公司简介:
    2023年筑巢普通户型优秀奖。2019M+中国高端室内设计大赛“全国城市赛区TOP奖”
    设计说明 | Design Instruction
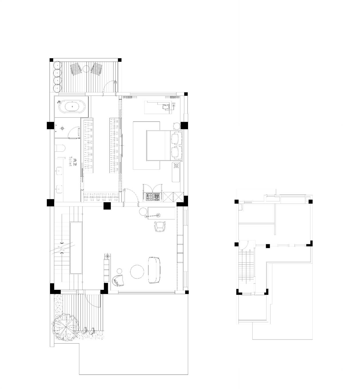
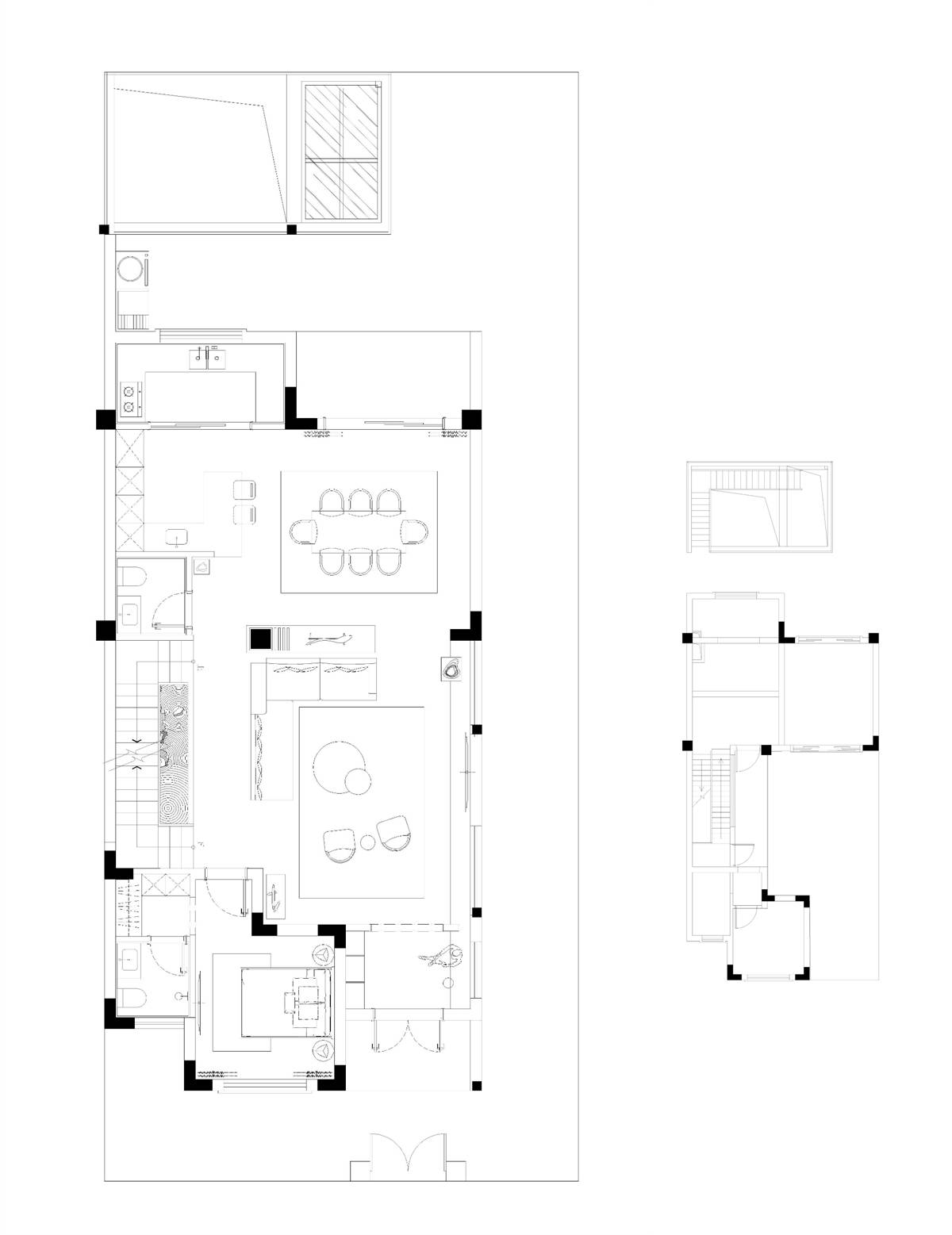
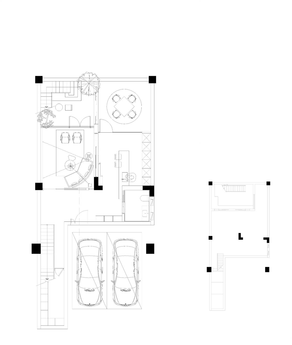
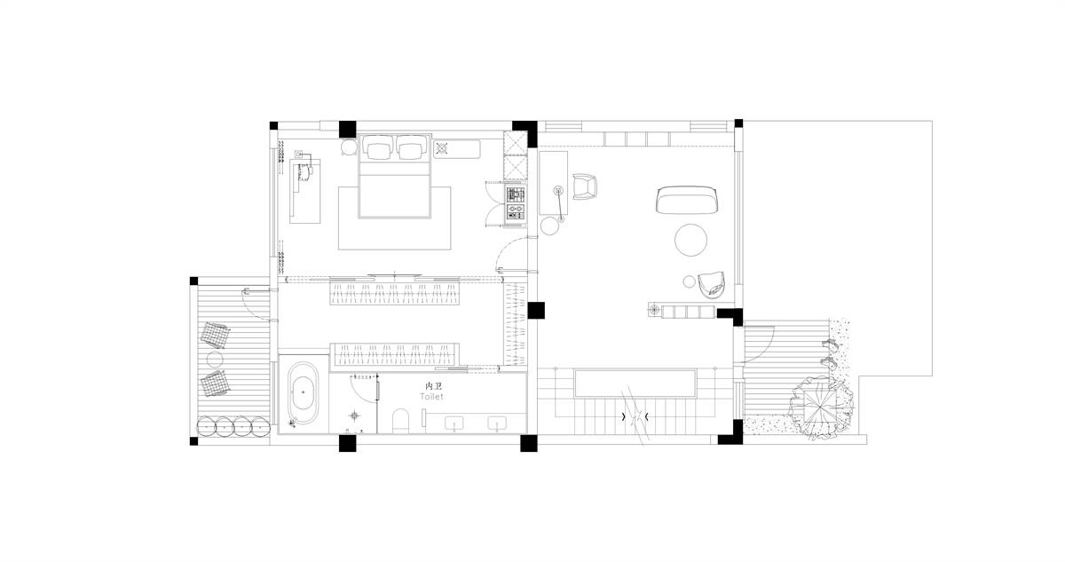
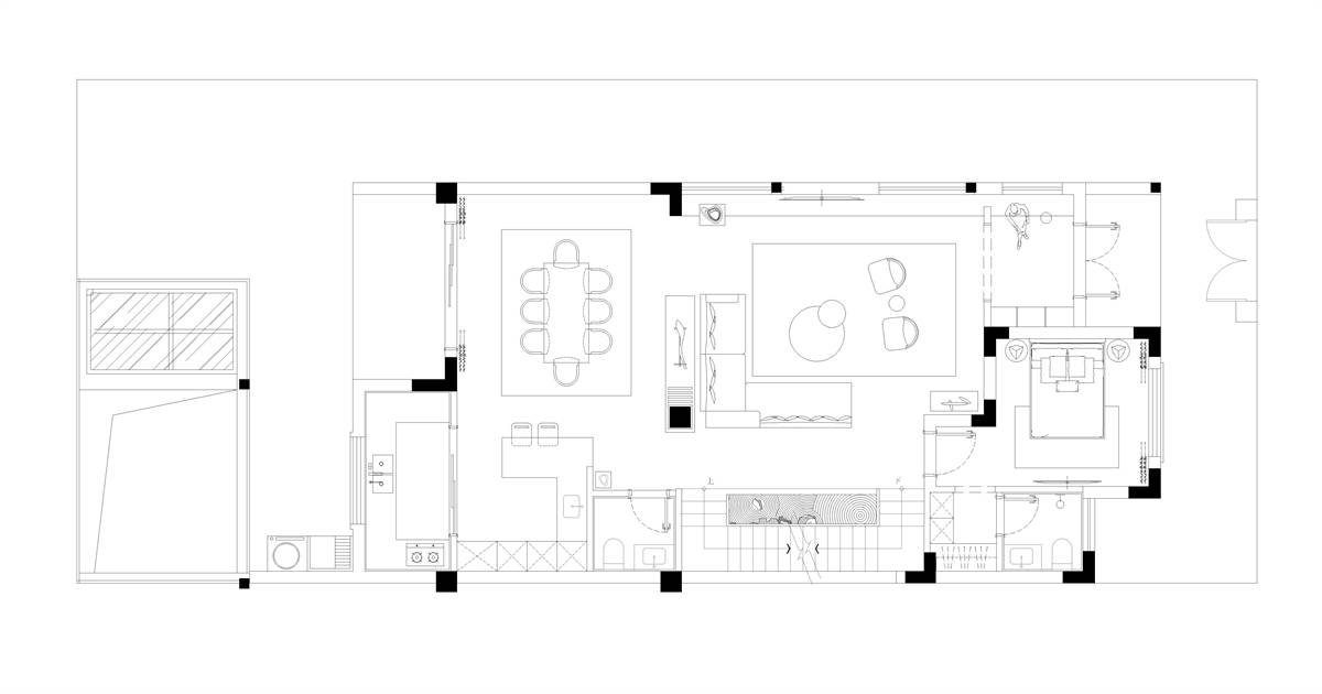
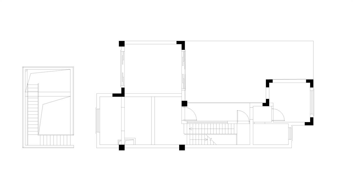
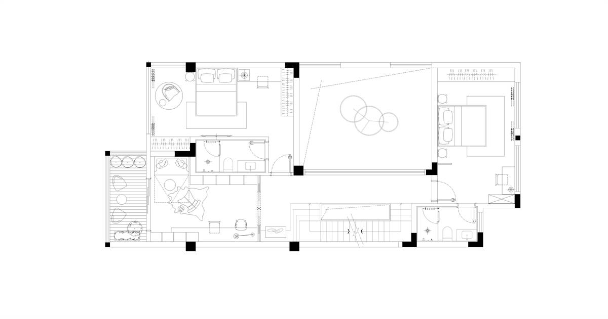
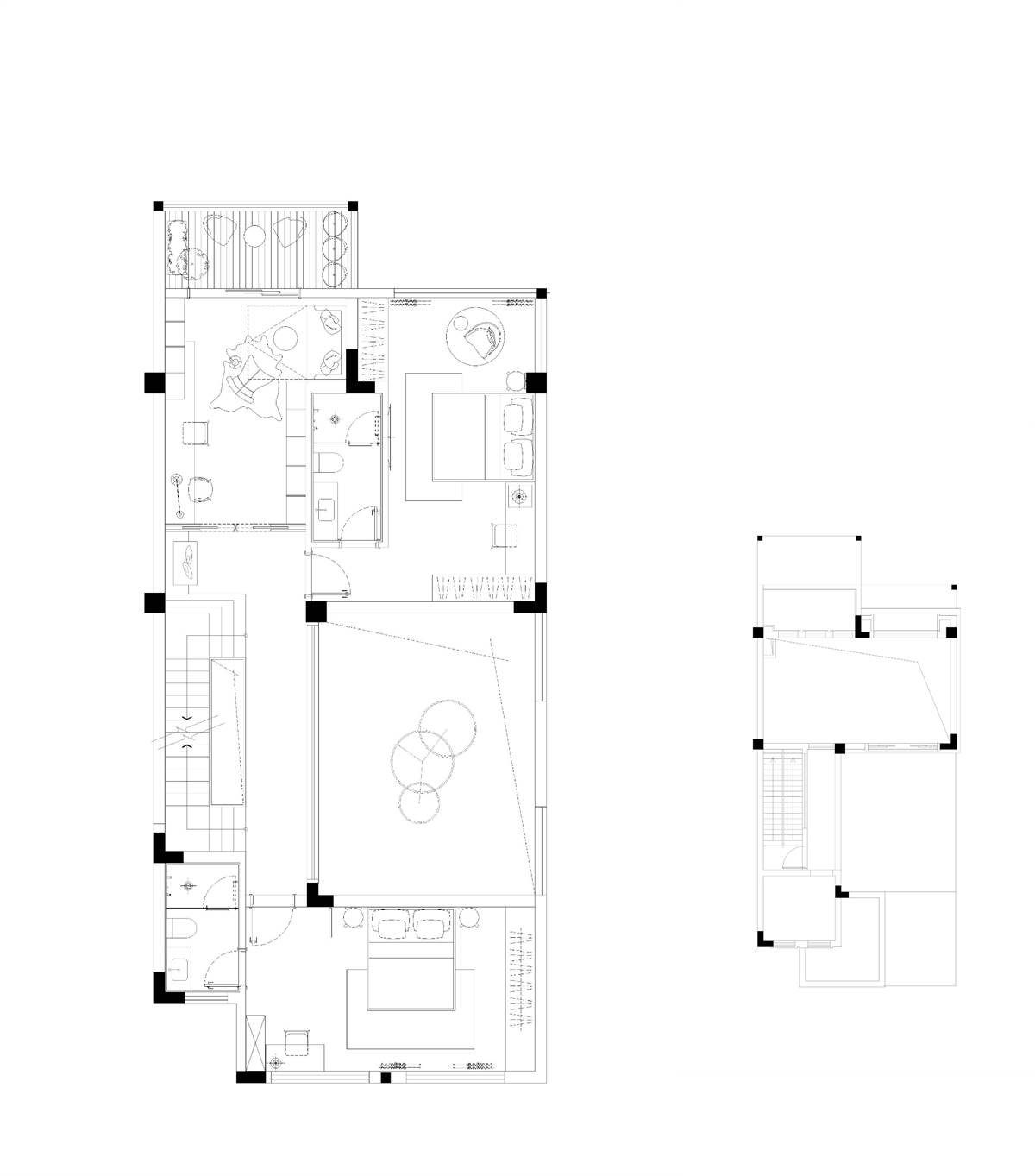
  • 家居设计,是在编写一个个家的故事。别墅客厅,将都市优雅格调精炼为流畅简洁的空间线条,木饰面,丝绒 皮革,自然承载现代朦胧气韵。 根据客户需求负一楼需要接待吧台+密闭影音室。成都人的大家庭当然少不了麻将室,结合了下沉式花园,家里打牌也打的惬意。一楼的好处是有花园但是就是采光不足,为了引入室内阳光,几乎打掉了原有的所有能打的墙体。厨房密闭式中厨和开放式西厨吧台结合,加上步入式通透大横厅,让原本比较阴暗的室内瞬间阳光了起来。二楼为两个孩子的房间还加了一个共享书房空间。三楼起居室,主卧室,超大衣帽间满足女主人的衣橱梦,加上落地开放式浴缸和半通透式格局保证了私密性又让空间显示的很开阔。 客厅内开阔的空间布局纳入自然的光线,令空间通透而明亮。浅米色与橙色交织的布艺软饰品,圆形二合一茶几,与现代感十足的线条灯相得益彰。当阳光漫入空间,斑驳的光影游走于其间,产生不同明暗冷暖的微妙变化,予人舒适愉快的视觉感受。 精致的格调,轻奢的质感,在餐厅空间中交汇。米色的皮革餐椅和装置画呼应,爵士白的岩板餐桌,线条感灯具组合.壁挂直饮机除了一楼西厨有,考虑到业主需要接水时上下楼不方便,在三楼和负一楼都同样有直饮。 哥哥的房间比较素雅,整个色调都与窗外自然的景色和谐默契,窗外四季都有花可赏,最美是夏末,一楼有棵开紫色花朵的树,今年夏天装修时,少年驻足窗前许久,便喜欢上了这个房间。弟弟的房间就更加童真些,为了引入更多自然光,我们在面向客厅的那面墙上开了一扇窗,两边对流,就更加通透。书房专属小天地,采用了米白加木纹色及条形灯带营造氛围,希望他们童年甜甜蜜蜜快乐成长。二楼儿童房和书房没有完全隔开,空间的递增,灯带的光感,让书房与玩耍区域更有层次。 主卧的格调在柔和的设色中铺叙开来,舒适亲肤的床品,在日然光的映照下,营造出一派岁月静好的惬意。步入式衣帽间,两边长排的落地柜体,满足业主对衣物收纳的各种需求。镜面柜门拉伸视觉感也可以当做镜面或瑜伽等需求,旁侧摆放一个休闲墨绿软榻,则可以看书休憩。 三楼顶配。花园露台+起居室+主卧室+超大衣帽间+双台盆三分离落地开放式浴缸。起居室也打造了水吧台。男主人说这个是他最爱的地方,全落地式折叠玻璃门。在假日,在阳光充足的午后,可以一个人看书打游戏。如有知己相聚,一壶咖啡或茶,伴随着轻柔的音乐,彼此闲聊家常,诗或者远方,完美的下午就该这样度过。
  • 图片
  • 图片
  • 图片
  • 图片
  • 图片
  • 图片
  • 图片
  • 图片
  • 图片
  • 图片
  • 图片
  • 图片
  • 图片
  • 图片
  • 图片
  • 图片
  • 图片
  • 图片
  • 图片
  • 图片
  • 图片
  • 图片
  • 图片
  • 图片
  • 图片
  • 图片
  • 图片
  • 图片
  • 图片
  • 图片
  • 图片
  • 图片
  • 图片
  • 图片
  • 图片
  • 图片
  • 图片
  • 图片
  • 图片
  • 图片
  • 图片
  • 图片
  • 图片
  • 图片
  • 图片
  • 上一个 下一个
    2024第八届金腾奖 私宅(独居)丨私宅(多人居)丨餐饮丨酒店丨办公丨商业丨公共丨公益丨人物丨NEW100 jintengAWARD(小金_金腾奖组委会) 广州市海珠区琶洲大道68号华新中心21楼
    金腾奖视频号 金腾奖小红书号 监制:刘译遥
    统筹:张俊媚
    运营:赖钰炼 曹凯月 刘芳棋 小金
    新媒体:王贝贝 严洁 张文一
    技术:黄天佑 丁德昌
    最终解释权归金腾奖主办方所有