融创 紫泉枫丹
作品详情
  • Details of the work 标题横线
    头像或者logo
    图片 KD室内设计事务所 贰拾柒设计经纪特约推荐
    城市:重庆
    公司:KD室内设计事务所
    参赛作品: 融创 紫泉枫丹
    空间类型:公寓(150㎡以下)
    个人/公司简介:
    KD室内设计事务所(重庆恺邸装饰设计有限公司) 是一家专注空间统筹规划、硬装设计与施工 陈设设计与落地、主材设备代购于一体的全案设计托管机构 我们为客户提供落地效果更好、预算更可控、效率更高 更省时省心省力省钱的专业设计服务 自2005年成立以来 我们不改初心 潜心于提高设计水平 开发更先进的施工技术 努力为客户创造最满意的空间产品 兢兢业业屡创佳绩 曾连获四届·年度国际空间设计大奖·艾特奖 连获六届·中国国际空间环境艺术设计大奖·筑巢奖 连获四届·中国室内设计年度评选·金堂奖 连获三届·金瓦奖·一个生活家评的奖 连获三届中国·芒果奖最佳商业空间奖 连获二届广州设计州周中国·新商业空间大奖 连获二届IDS·国际设计先锋榜 优秀奖 获IDS·国际设计先锋榜.最具空间表现奖 重庆室内建筑设计企业联合会CIDEA理事单位[重庆市一级行业商会] 重庆互联网装饰设计委员会会理事单位 由六位中国装饰协会颁发认证的高级建筑师领衔设计 企业愿景:以原创设计,敬美好生活,值得信赖并受人尊重 企业使命:让恺邸创造亿万美好生活空间,让众多热爱生活之人,因“恺邸”生活更美好幸福
    设计说明 | Design Instruction
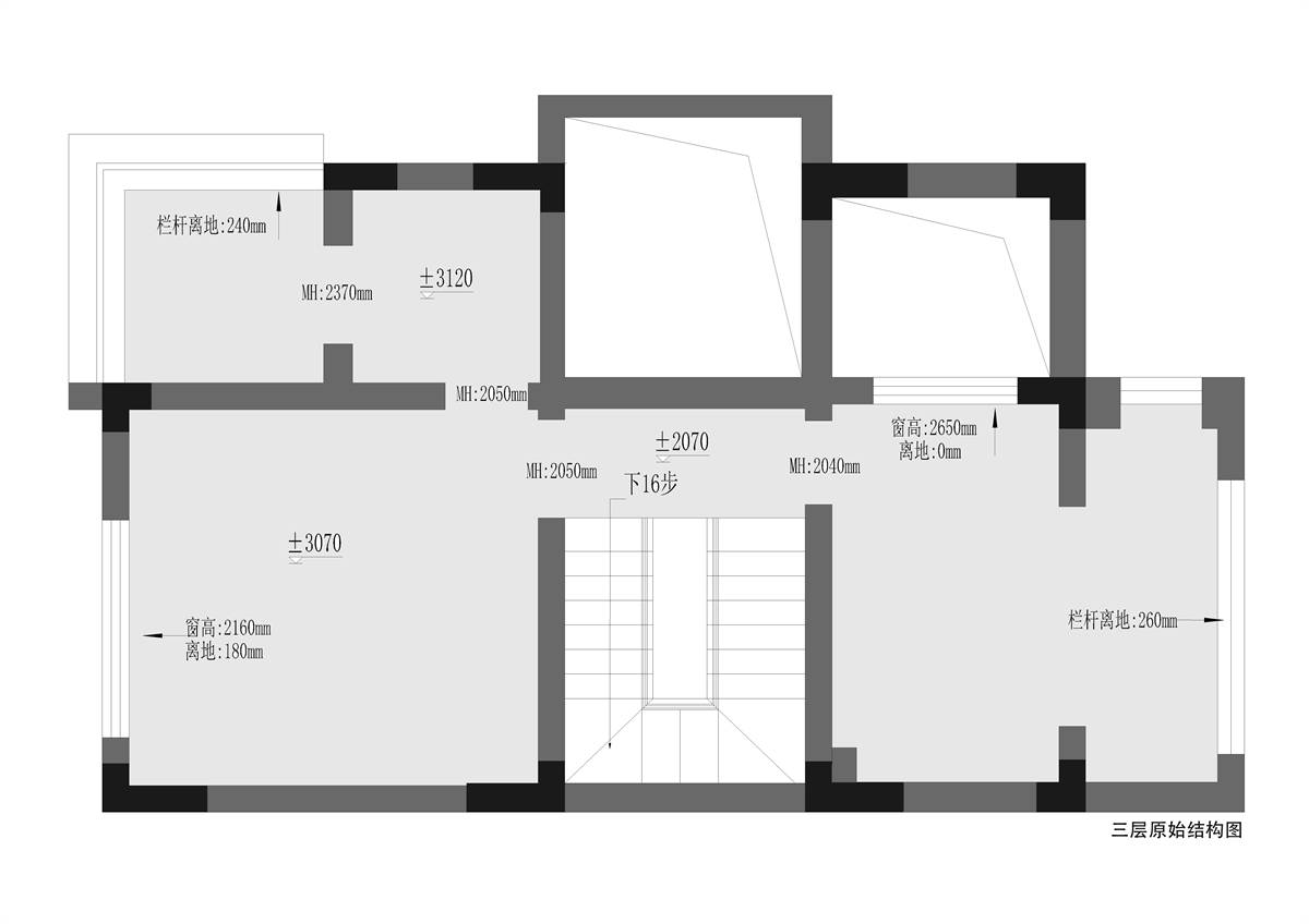
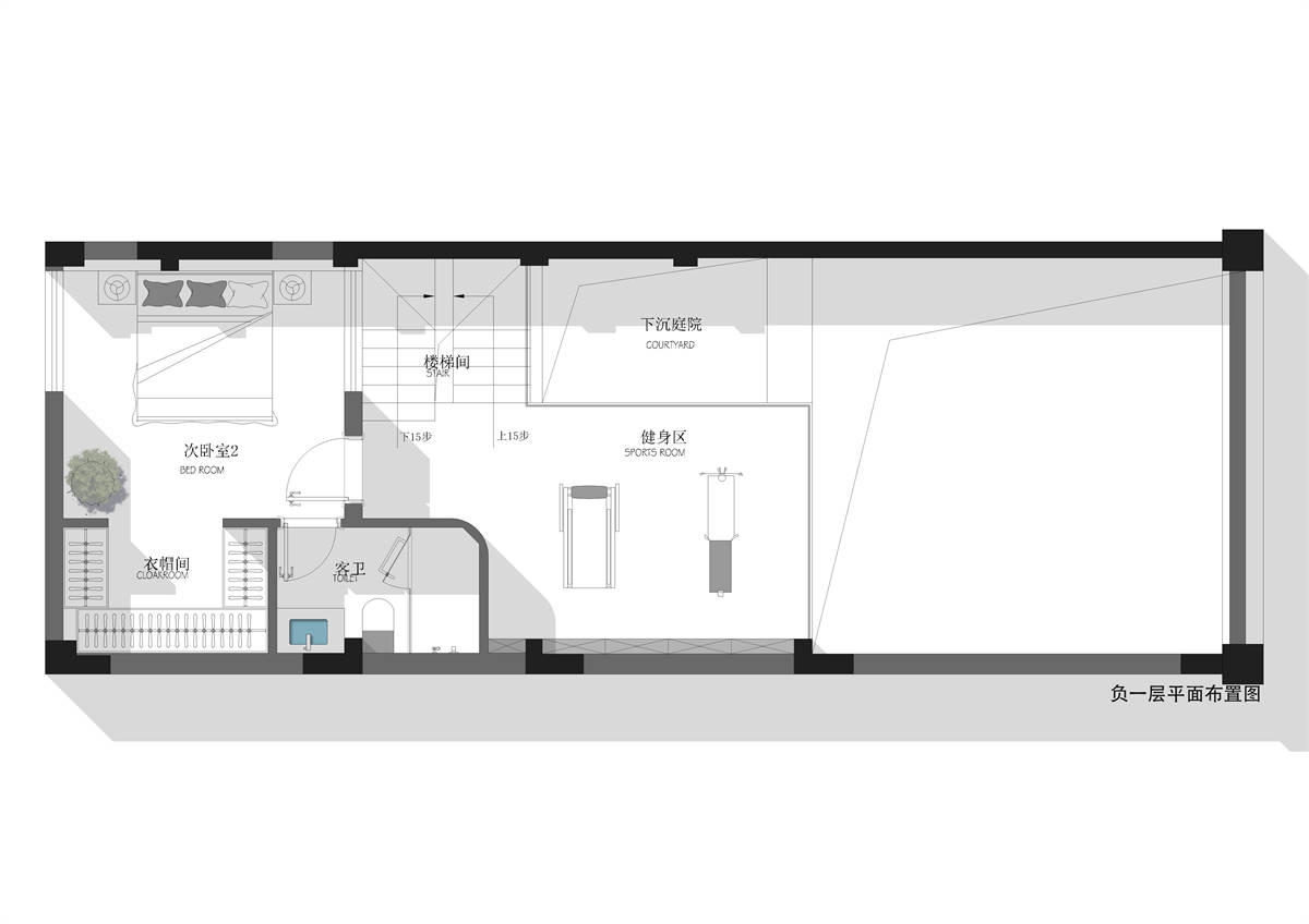
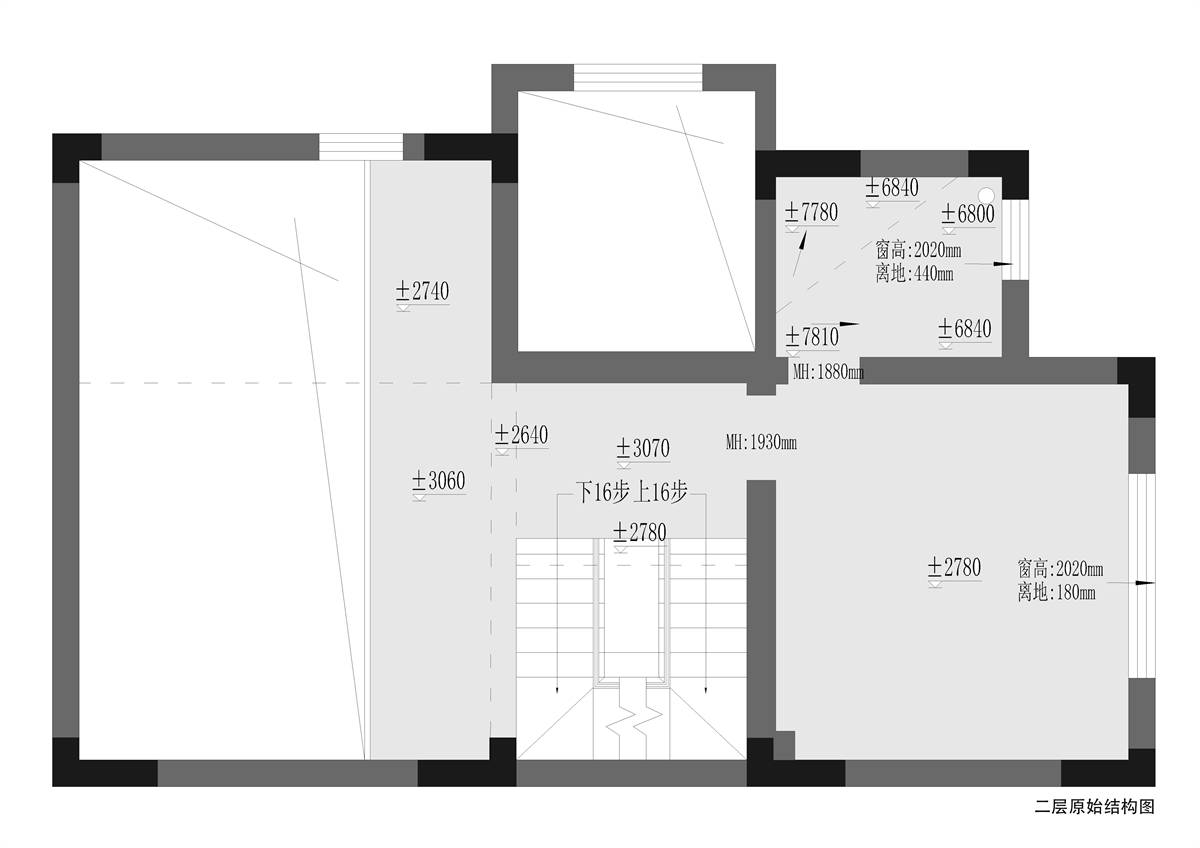
  • 近几年,侘寂风被越来越多的屋主和设计师宠爱,在本期的家里,我们却看到在古朴素净的表皮下,设计师用裸露的肌理还原出最本真的状态,将家的温度和使用者的情感融入其中,在繁华都市中,以光为笔,以形为媒,尊重屋主的需求,关注空间的融合与独立,建构舒适的住宅环境。 本案位于北碚区融创紫泉枫丹别墅区,建筑体为联排别墅,前庭后院格局,因此设计师对原有建筑格局进行改造,将负二层与负一层挑高,在一层设置玻璃采光井,保证负二层采光,这种建筑结构的改造既打造“阳光客厅”,所有的空间围绕中轴打开,形成空间相互对话、交流的开放性格局。 负二层为车库、玄关、鞋帽间、储藏室、室内花园、娱乐区、会客厅等 考虑到负二层的采光通风,将原有建筑挑空,规划为车库、娱乐区、会客厅等。 在楼梯间摆放各种绿植,打造室内花园,弱化空间中的线条穿插感,同时呈现出自然蓬勃的生机。 为满足更好的采光通风,设计师在这个区域设置挑空,打开一个上下贯通的空间,使得空间既通透开放又保证采光,人与空间、自然与空间、空间与空间相互对话和交流。 电视背景墙用质感漆营造凌乱的肌理感,让墙面在无装饰的情况下更好地将空间形态表达出来,给建筑适当的呼吸空间,营造古朴粗糙的至简美感。 负一层为次卧、衣帽间、健身区等。 屋主喜欢健身,设计师充分考虑使用者的习惯,将负一层改造为健身区。 基于建筑中挑空的趋势,设计师从空间内部延伸空间尺度,在楼梯间设置次卧与健身房,让人在空间中实现情绪转换。从天井落下的光,搭配水泥墙体的质感,与房间内韵黄的光形成特有的质感和氛围。 一层为门厅、餐厅、厨房等 一层空间被打开,开放式餐厨空间让空间更加通透大气。 一楼的空间做了开放式布局,规划出餐厅、厨房等功能区,让空间承载更多可能,想要互动了就在餐厅聊天、看窗外的风景,或是走到厨房一起做饭,空间之间互不干扰。 男主人喜欢老木头、老陶罐、亚麻这类天然的有年代感的物件,基于此,设计师在餐厅的颜色上选用黑色作为空间主调,用白色平衡空间,营造整体的质朴与“粗粝感”。 考虑到整个空间的比例,厨房以黑白色为主,辅以木色,搭配超长岛台与中古单椅,材质和色彩的反差可以产生更强的效应,这种穿透感是设计师着意突出的。 二层为次卧室、儿童房、卫生间等。 在延续空间基调的基础上,卧室加入咖色的窗帘、床品,温馨的灯光摇曳,推开门便是舒适的氛围。 儿童房由底及顶的拼色衣柜,是根据现场尺寸定制的,围绕着背景墙一直转向阳台,拱形门恰到好处的衔接,空间因此被牵引着。 干湿分区,用水磨石打造的私密空间在有序中透露出随性和慵懒,又将童趣融入其中。 三层划分为主卧、衣帽间、阅读区等。 倘若弧形的吊顶是点缀,那么隐藏式衣帽间的幽灵门便是侘寂风灵魂的迸发之地,肌理感的质感漆从上而下延展下来,在背景墙处用木格栅一分为二,带来利落的收口,也和空间呼应概括出温馨舒适的休憩氛围。 古朴的陈设里,原木色在隐隐发挥作用,挑空的梳妆台设计师为它开了特殊的造型,空气和光线得以进入,并且给这个收纳充足的卧室更多可以观赏的角度。 最让人惊艳的莫过于主卧这个隐藏式书房,干净低调的柜子有序陈列,窗外的风景映入眼帘,点亮空间和主人的眼,演绎别具一格的古朴浪漫家。 主卫的格局没有做过多的改动,靠墙定制洗漱台,干湿分区,没有多余的装饰,享受阳光散落在生活里的惬意时光。
  • 图片
  • 图片
  • 图片
  • 图片
  • 图片
  • 图片
  • 图片
  • 图片
  • 图片
  • 图片
  • 图片
  • 图片
  • 图片
  • 图片
  • 图片
  • 图片
  • 图片
  • 图片
  • 图片
  • 图片
  • 图片
  • 图片
  • 图片
  • 图片
  • 图片
  • 图片
  • 图片
  • 图片
  • 图片
  • 图片
  • 图片
  • 图片
  • 图片
  • 图片
  • 图片
  • 图片
  • 图片
  • 图片
  • 图片
  • 图片
  • 图片
  • 图片
  • 图片
  • 图片
  • 图片
  • 图片
  • 上一个 下一个
    2024第八届金腾奖 私宅(独居)丨私宅(多人居)丨餐饮丨酒店丨办公丨商业丨公共丨公益丨人物丨NEW100 jintengAWARD(小金_金腾奖组委会) 广州市海珠区琶洲大道68号华新中心21楼
    金腾奖视频号 金腾奖小红书号 监制:刘译遥
    统筹:张俊媚
    运营:赖钰炼 曹凯月 刘芳棋 小金
    新媒体:王贝贝 严洁 张文一
    技术:黄天佑 丁德昌
    最终解释权归金腾奖主办方所有