御海听澜
作品详情
  • Details of the work 标题横线
    头像或者logo
    图片 徐润 菁英學設特约推荐
    城市:大连
    公司: 大连绘锦设计
    参赛作品: 御海听澜
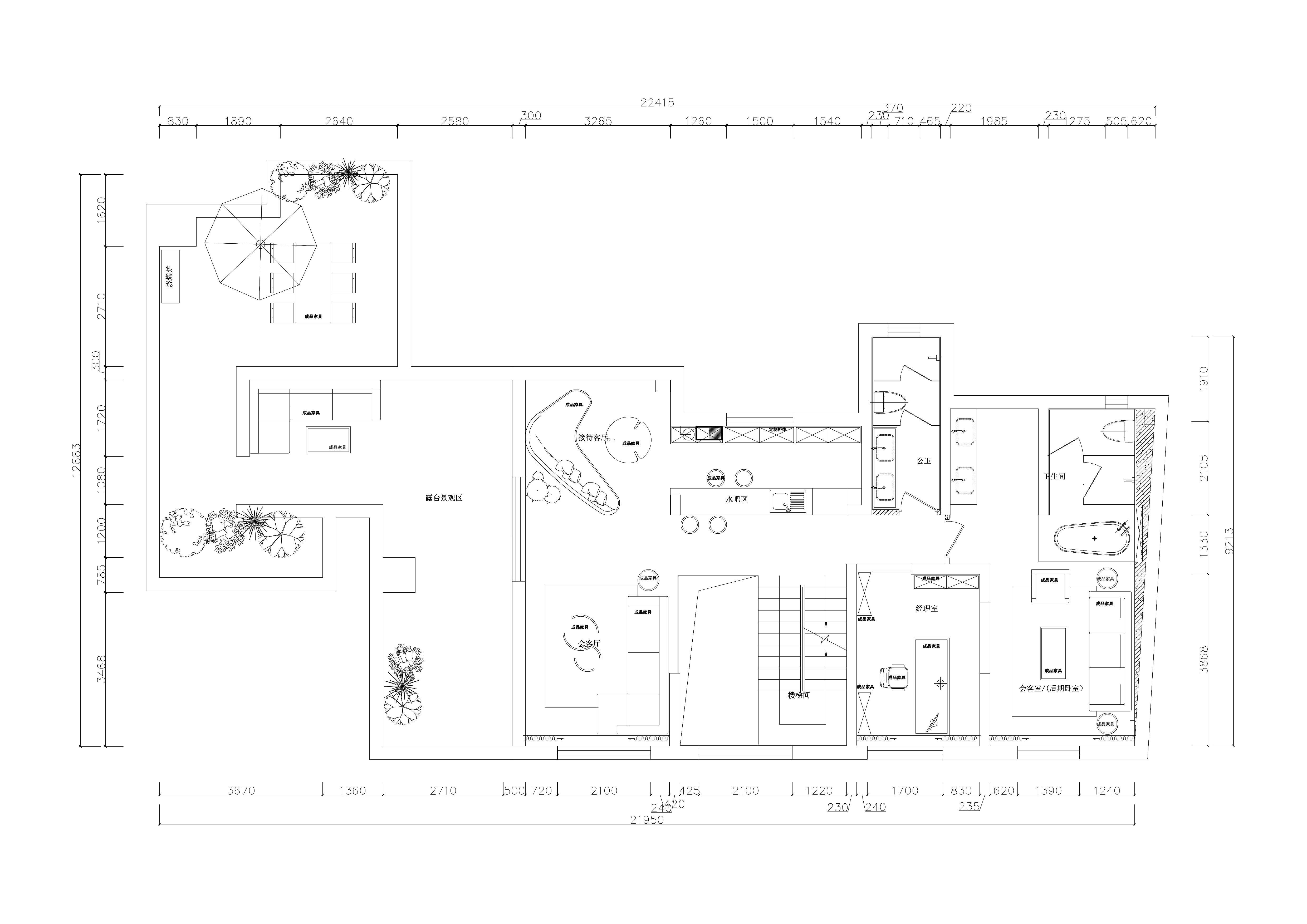
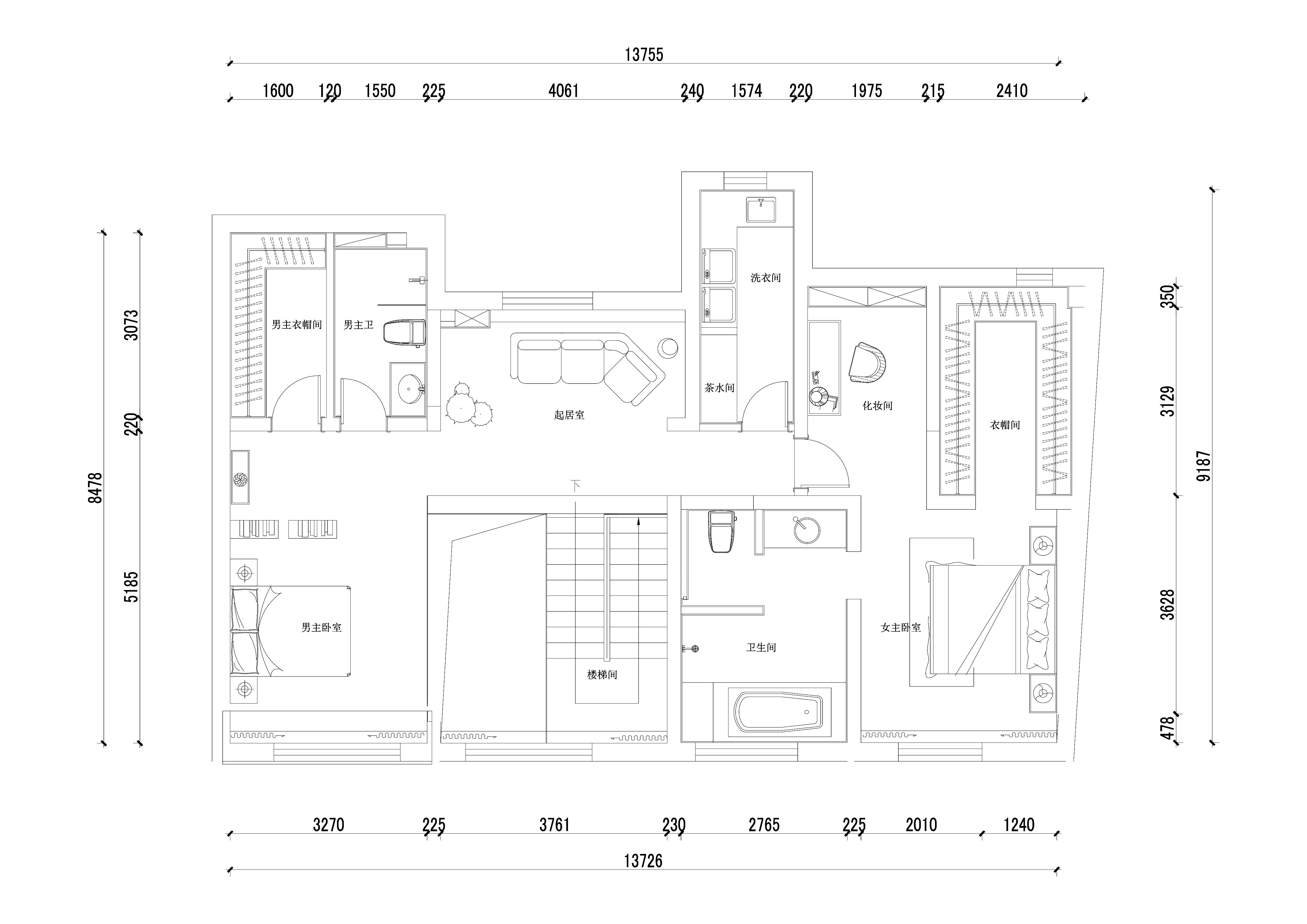
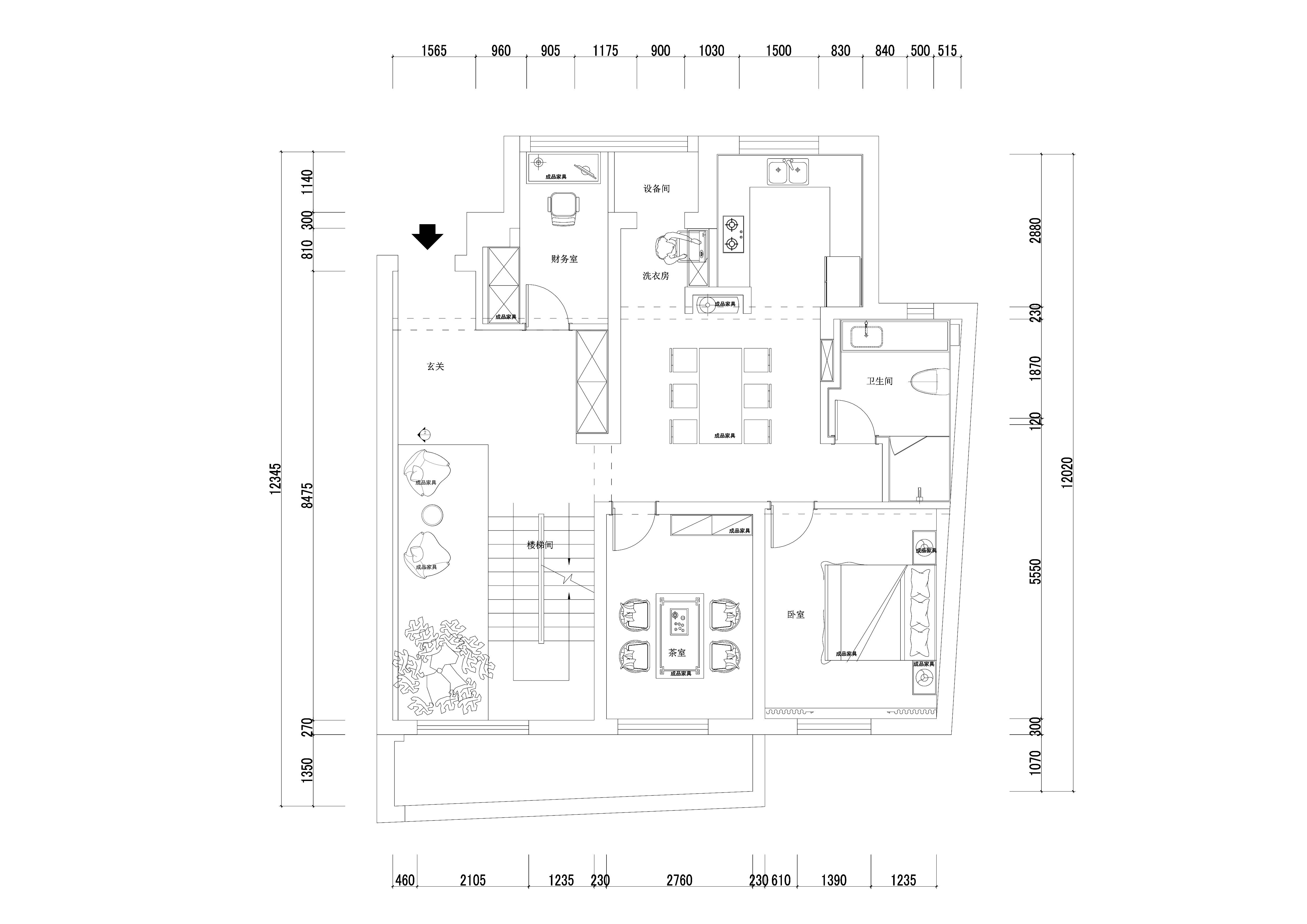
    空间类型:公寓(150㎡以下)
    个人/公司简介:
    中国高级室内设计师 /大连绘锦设计主理人 / 2019“金住奖”大连十大设计师/ 2021年荣获大连市建筑装饰协会杰出室内设计师称号 设计理念:真正的自由并不是设计师的创意自由,而是使用者的实用自由。生活的真谛在于探索,也就是看透外表,理解其本质,满足客户心中那种难以言表的期待,超越预期的愉悦。
    设计说明 | Design Instruction
  • 德国哲学家黑格尔对于美的本质这样定义:"美是理念的感性显现。"就像一座城市之美,不仅在于其街道、建筑所具有的静态美,还包含了数以万千的人行走其中,由一道道婉转流动的风景共同构筑的美丽画卷之动态美。所以说,一个家的美是它呈现出来的生命力!是你在这个空间里能找到自己的归属感,他能像一个怀抱一样给你安全感让你从容优雅的游走在每个角落,带着你的热爱与期待。
  • 图片
  • 图片
  • 图片
  • 图片
  • 图片
  • 图片
  • 图片
  • 图片
  • 图片
  • 图片
  • 图片
  • 图片
  • 图片
  • 图片
  • 图片
  • 图片
  • 图片
  • 图片
  • 图片
  • 图片
  • 图片
  • 图片
  • 图片
  • 上一个 下一个
    2024第八届金腾奖 私宅(独居)丨私宅(多人居)丨餐饮丨酒店丨办公丨商业丨公共丨公益丨人物丨NEW100 jintengAWARD(小金_金腾奖组委会) 广州市海珠区琶洲大道68号华新中心21楼
    金腾奖视频号 金腾奖小红书号 监制:刘译遥
    统筹:张俊媚
    运营:赖钰炼 曹凯月 刘芳棋 小金
    新媒体:王贝贝 严洁 张文一
    技术:黄天佑 丁德昌
    最终解释权归金腾奖主办方所有