To Elegance
作品详情
  • Details of the work 标题横线
    头像或者logo
    图片 程俊杰 丽水几支传媒特约推荐
    城市:丽水
    公司: 浙江知合建筑空间设计
    参赛作品: 致·优雅
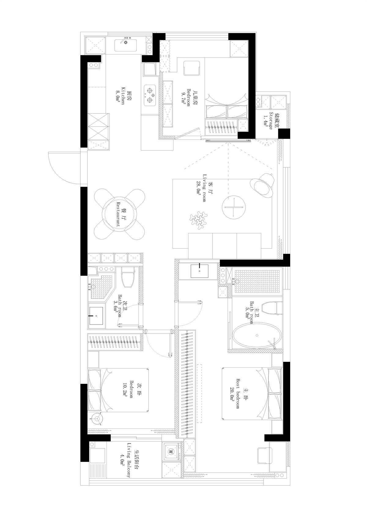
    空间类型:公寓(150㎡以下)
    个人/公司简介:
    高级室内建筑师 知合建筑空间设计 创始人/设计总监 中室学(丽水)室内建筑设计交流中心副秘书长 丽水职业技术学院“建筑室内设计专业”客座讲师 2024最美极简空间设计先锋人物 DESIGN FOCUS城市精英名师榜2023-2024年度先锋设计师 荣获WYD2020年度大中华区100大杰出设计青年 40UNDER40 中国(省区)设计杰出青年 (2019-2020) 新锐中国设计奖省际榜(2019-2020)的优秀设计青年 2018年法国双面神“GPDP AWARD”国际设计大奖年度TOP100国际影响力创新设计师大奖 2018年中国·青田县千峡湖首届民宿设计大奖赛 最佳空间设计奖 曾荣获2018年法国双面神“GPDP AWRD”国际设计大奖年度TOP100国际影响力创新设计师大奖
    设计说明 | Design Instruction
  • 设计不仅仅局限于外观的奢华,而更多地偏执于极致的细节处理,更注重于设计美学、生活态度和品质呈现,打造出独特而优雅的生活美学空间。在设计中,色彩和材质的选择也是关键。客厅设计采用黑白灰的主色,搭配金属、水磨石等元素,营造出温馨而高级的氛围。
  • 图片
  • 图片
  • 图片
  • 图片
  • 图片
  • 图片
  • 图片
  • 图片
  • 图片
  • 图片
  • 图片
  • 图片
  • 图片
  • 图片
  • 图片
  • 上一个 下一个
    2024第八届金腾奖 私宅(独居)丨私宅(多人居)丨餐饮丨酒店丨办公丨商业丨公共丨公益丨人物丨NEW100 jintengAWARD(小金_金腾奖组委会) 广州市海珠区琶洲大道68号华新中心21楼
    金腾奖视频号 金腾奖小红书号 监制:刘译遥
    统筹:张俊媚
    运营:赖钰炼 曹凯月 刘芳棋 小金
    新媒体:王贝贝 严洁 张文一
    技术:黄天佑 丁德昌
    最终解释权归金腾奖主办方所有