Feast
作品详情
  • Details of the work 标题横线
    头像或者logo
    图片 天津陌上装饰设计有限公司 华耐设计基金特约推荐
    城市:天津
    公司:天津陌上装饰设计有限公司
    参赛作品: 盛宴
    空间类型:别墅
    个人/公司简介:
    公司成立至今有6年时间, 有营业执照,施工资质和设计资质。 价格公开透明,报价详细, 列明所有材料的品牌、型号、单价。 有自己的装修队伍和设计团队 会提供正式全套的图纸, 全套图纸需双方签字确认,并且加盖公章。 每一个施工阶段我们都会做好跟踪, 确认和落实到每个细节, 让业主朋友们放心把时间归还给家庭和工作。
    设计说明 | Design Instruction
  • 《东西交融:顶楼的文化盛宴》 其立意,不仅是对东西方文化精髓的致敬与融合,更是对空间、形式与精神的深度探索,尤其是对房屋自身斜顶和斜墙这一独特结构的极致发挥,旨在为居住者营造一个超越物质、触动灵魂的心灵家园。 一、东西方文化的碰撞与融合 在空间布局上,借鉴东方庭院的迂回曲折,营造出曲径通幽的意境;同时融入西方开放式的空间理念,打造宽敞明亮的起居区域,让居住者在移步换景中感受东西方文化的交融与对话。让居住者于每一次的穿梭往返中,都能深刻体悟到东西方文化在精神层面的激烈碰撞与和谐交融。将东方的含蓄优雅与西方的开放浪漫相结合,形成一种独特的美学张力。 二、建筑元素的交融 提取东西方建筑的经典元素加以简化,如东方的飞檐斗拱、雕花窗棂,与西方的罗马柱、拱券等相互呼应。设计中,木质的中式梁柱与西式的铁艺栏杆相得益彰,共同勾勒出丰富多元的空间轮廓。利用斜墙的角度创造出视觉上的层次感,使空间更具动感和艺术感。 三、斜顶与斜墙的创新利用 充分利用房子本身的斜顶和斜墙,打造富有个性的空间。利用房屋本身的结构优点,增加更多有特点的展示区域,斜墙用于打造嵌入式的展示架,增加收纳和展示功能。在客厅或餐厅等公共区域,利用斜墙的角度创造出视觉上的层次感,使空间更具动感和艺术感。 四、材质与色彩的传承与创新 故宫红的运用,不仅传承了东方文化的核心精髓,还在与西方文化的交融中绽放出创新的迷人魅力,进而成为空间内最具情感张力与文化深度的关键元素。它展现出浓郁的传统韵味,同时又为空间增添热情与活力,红色元素的融入犹如点睛之笔,为整个空间注入了蓬勃的生机与激昂的激情。材质选用具有东西方特色的材质,如东方的丝绸、木材、玉石,与西方的大理石、皮革、金属等。色彩方面,将东方的淡雅色调如米白、淡青、朱红,与西方的浓郁色彩如宝蓝、金黄、深棕相互搭配,营造出既富有层次感又和谐统一的视觉效果。 五、功能与哲学的统一 在功能规划上,结合东西方生活方式的优点。例如,设置一个融合东方茶室静谧氛围与西方酒窖奢华气质的休闲角落;西厨和厨房空间既具备东方烹饪的烟火气息,又配备西方先进的厨具设备。同时,在空间设计中体现东西方哲学的内涵,东方的“阴阳调和”与西方的“对称美学”相互映衬,营造出平衡和谐的居住环境。
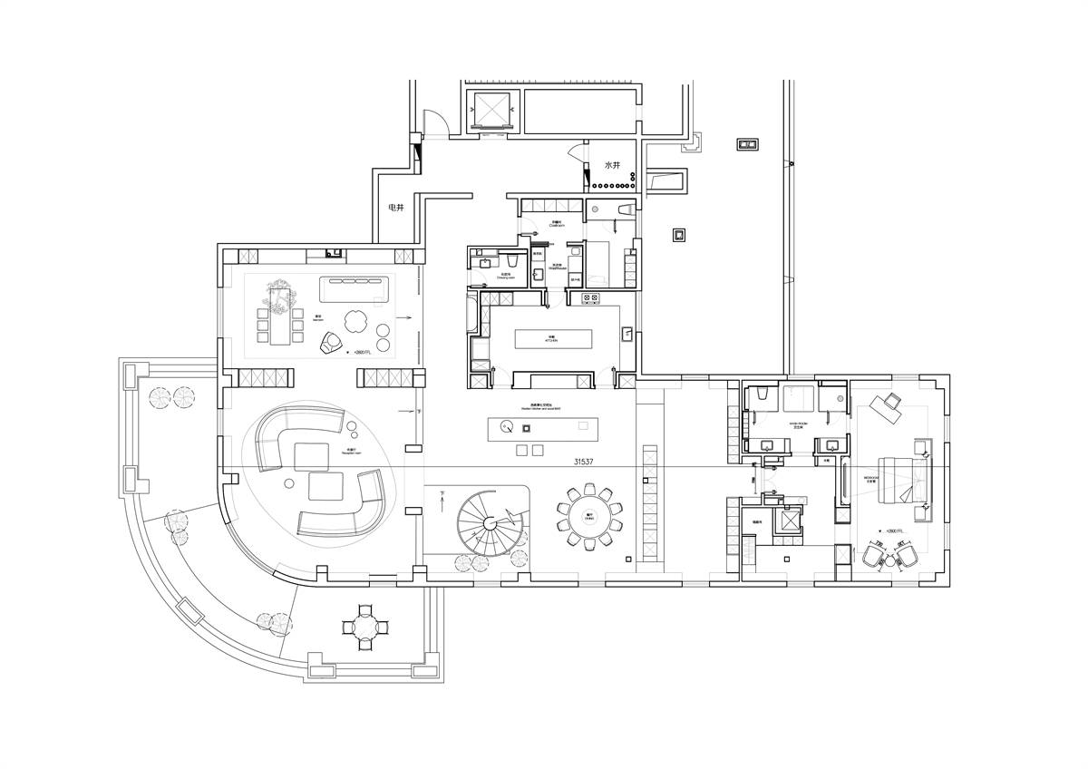
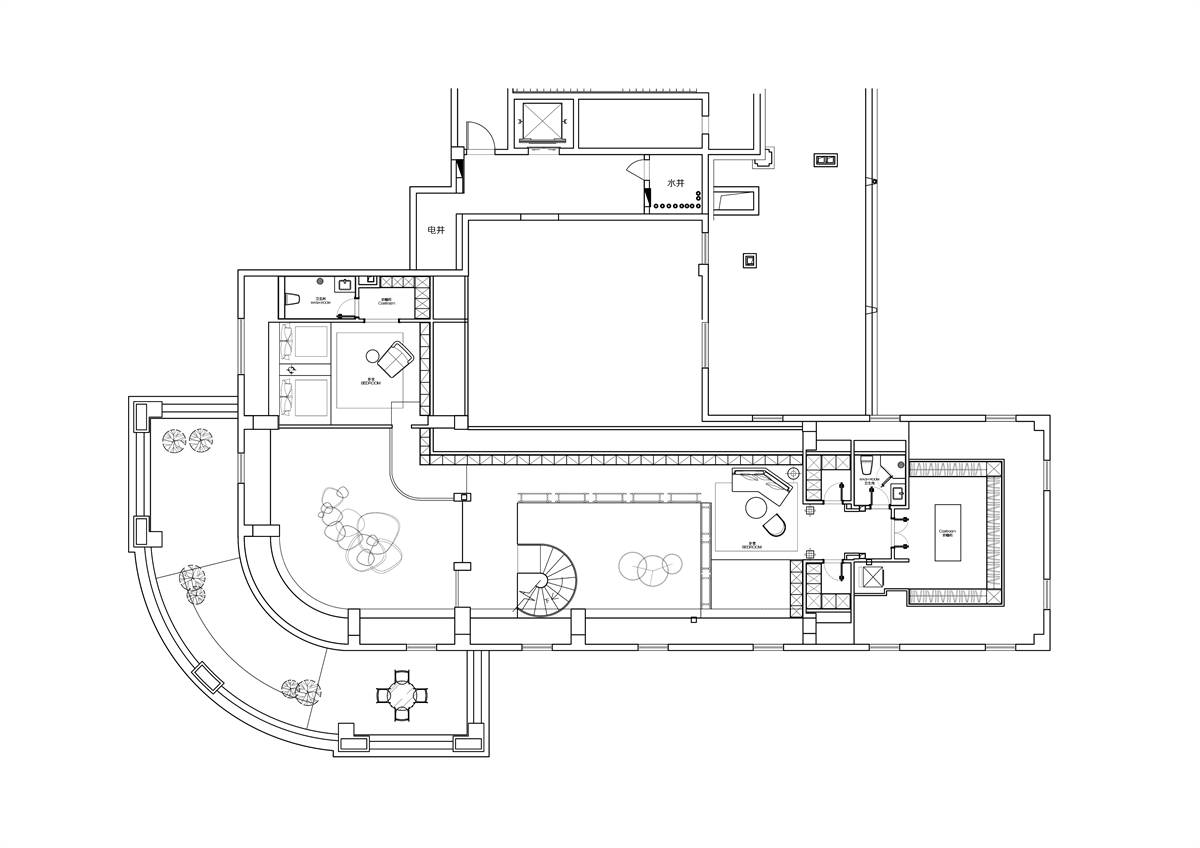
  • 图片
  • 图片
  • 图片
  • 图片
  • 图片
  • 图片
  • 图片
  • 图片
  • 图片
  • 图片
  • 图片
  • 图片
  • 图片
  • 图片
  • 图片
  • 图片
  • 图片
  • 图片
  • 图片
  • 图片
  • 上一个 下一个
    2024第八届金腾奖 私宅(独居)丨私宅(多人居)丨餐饮丨酒店丨办公丨商业丨公共丨公益丨人物丨NEW100 jintengAWARD(小金_金腾奖组委会) 广州市海珠区琶洲大道68号华新中心21楼
    金腾奖视频号 金腾奖小红书号 监制:刘译遥
    统筹:张俊媚
    运营:赖钰炼 曹凯月 刘芳棋 小金
    新媒体:王贝贝 严洁 张文一
    技术:黄天佑 丁德昌
    最终解释权归金腾奖主办方所有