Smart living
作品详情
  • Details of the work 标题横线
    头像或者logo
    图片 任凤翔 华耐设计基金特约推荐
    城市:太原
    公司: 独立设计师
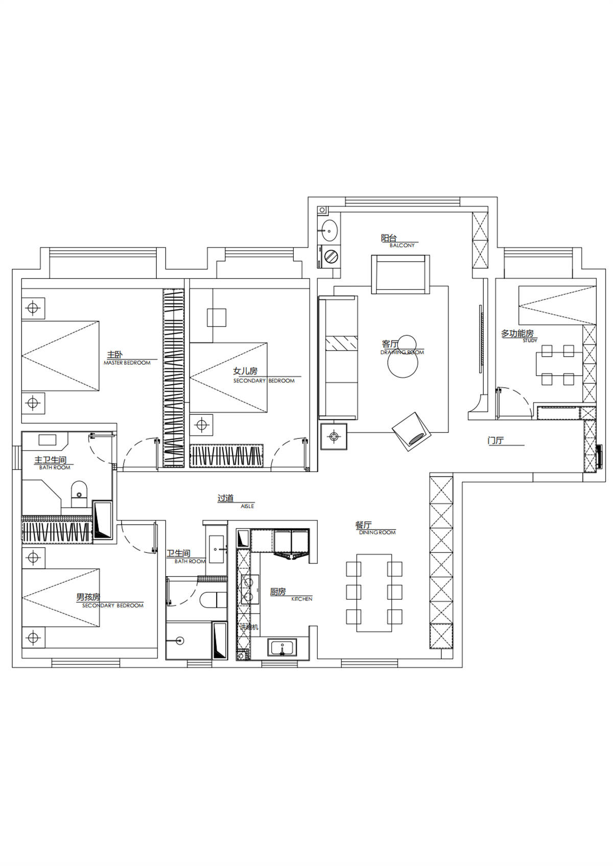
    参赛作品: 智能生活
    空间类型:别墅
    个人/公司简介:
    .亚太空间2010年度最具影响力设计师 .2012年年度中国室内设计大奖赛优秀作品奖 .CDC国际室内设计师认 .APDF亚太室内设计师认证 .CIDA中国室内设计师瑞丽杂志中国室内设计明星大赛最高人 .2012荣获山西新浪家居十大优秀设计师 .2014“华鼎奖”室内设计大赛入围奖; ·2016年中国建筑装饰协会高级室内建筑师 .2020年国际空间环境艺术设计大赛筑巢奖 .2022年第六届成都设计进化X金腾奖 室内设计大赛“风尚奖” .2023年第六届广州住CBDA住宅产业年会(红鼎)创新大赛“TOP前十名” 作品: .孝义盛世华庭 .汾阳碧桂园 .润景园著3号楼,5号楼,9号楼等10户家装设计 .华润昆仑御2号楼,4号楼,6号楼,8号楼,11号楼,等15户家装设计 .华润紫雲府3号楼,4号楼,6号楼,10号楼,13号楼,2号楼 .碧桂园玖玺台 .广电新景 .国信山水间合院 .绿地山鼎庄园合院,颐和天成下叠,复地东山国际上叠,半山国际 .天猫养车店,中医馆 —任凤翔
    设计说明 | Design Instruction
  • 它们像夹在时光里的罅隙 人们随口说的一些话 跌落在墙角 风吹不走 阳光烧不掉 独自沉眠 黑色是隐匿在色彩尽头的颜色,不存在第二世界,光、尘与黑色是水汽都弥漫其中。世界并不是非黑即白,微小的尘埃也有容身之处。 EXPLORE TIME AND SPACE SENSE EMOTIONS 探索时空 感知情绪 线型的沙发座椅、肌理纹手工地毯以及搭配石材茶几,围合出舒适通透的交流场域,也诠释自然与巧工的和谐并存,使叙事空间更加生动。 The linear sofa seats, textured handmade carpets and stone coffee tables enclose a comfortable and transparent communication field, and also interpret the harmonious coexistence of nature and ingenuity, making the narrative space more vivid. 原有卧室做了开放式会客功能厅,可会客,观影,书房,起居,聚会,着力于塑造空间的尺度与包容感,去构建人与空间、人与物、物与物的关系,环形动线,无论人多人少,都会充满欢歌笑语。 The original bedroom has been designed as an open reception function hall, which can receive visitors, watch movies, study, live, and gather. It focuses on shaping the scale and inclusiveness of the space, constructing the relationship between people and space, people and objects, and objects and objects. The circular motion line is full of laughter and joy regardless of the number of people. 初入空间,便被眼前的纯粹所吸引,灰、白、木之间的搭配诗意满满,此时此刻,就好似是乘醉吟诗的李白一般,有万千的诗意的在胸膛。 When I first entered the space, I was attracted by the purity in front of me, and the combination between gray, white and wood was full of poetry, and at this moment, it was like Li Bai who was riding a drunken chant, with thousands of poetry in his chest. DECONSTRUCTION OF BALANCE 平衡的解构 来到入口处,眼前是绿色的玻璃装饰墙面和木质材料拼接而成的墙面,绿色的大气配上木质材料的质朴,就好似是翡翠配上了合适的链条一般整体看起来十分的贵气。大面积的打理石导台似乎铺满了整个入口,让人初次进入这个空间便感觉到了不一般的气场。 我们以灰为底色,配以白为主打色,打造环形动线,摈弃不必要的空间结构,利用回游的动线打破盒子般的界限,在一疏一密、一收一放之间形成了独特的空间节奏,将各种体块,通过切割、穿插、贯通等建筑手法,重新组合。 We use gray as the background color, paired with white as the main color, to create a circular movement line, abandoning unnecessary spatial structures, and using the moving line to break the box like boundaries, forming a unique spatial rhythm between sparsity and density, as well as collection and release. Various blocks are reassembled through architectural techniques such as cutting, inserting, and penetrating. 灰、白、木 拉开空间温柔的序章,铺垫宁静的归属感! Grey, white, and wood create a gentle prel
  • 图片
  • 图片
  • 图片
  • 图片
  • 图片
  • 图片
  • 图片
  • 图片
  • 图片
  • 图片
  • 图片
  • 图片
  • 图片
  • 图片
  • 图片
  • 图片
  • 图片
  • 上一个 下一个
    2024第八届金腾奖 私宅(独居)丨私宅(多人居)丨餐饮丨酒店丨办公丨商业丨公共丨公益丨人物丨NEW100 jintengAWARD(小金_金腾奖组委会) 广州市海珠区琶洲大道68号华新中心21楼
    金腾奖视频号 金腾奖小红书号 监制:刘译遥
    统筹:张俊媚
    运营:赖钰炼 曹凯月 刘芳棋 小金
    新媒体:王贝贝 严洁 张文一
    技术:黄天佑 丁德昌
    最终解释权归金腾奖主办方所有