Quiet and leisurely
作品详情
  • Details of the work 标题横线
    头像或者logo
    图片 黄志敏 长沙青设联特约推荐
    城市:长沙
    公司: 上层筑尺设计
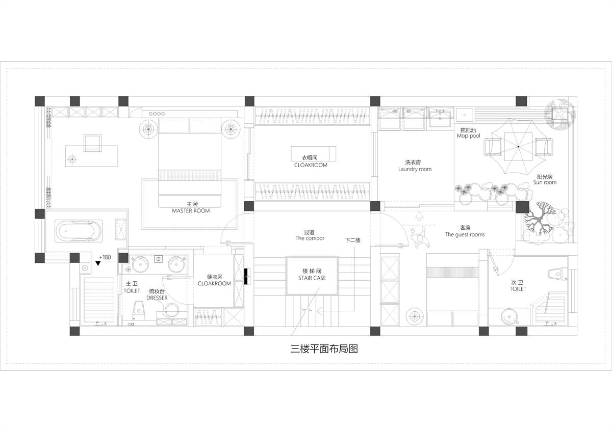
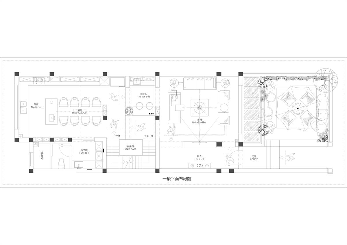
    参赛作品: 隅静
    空间类型:别墅
    个人/公司简介:
    黄志敏-上层筑尺设计 联合创始人兼设计总监 从业15余年积累了丰富的别墅、豪宅样板房、高端会所设计经验。 设计理念: 推崇于“尽其心,创其美,善其工”。主张设计行业的跨界思维,参与建筑室内景观实践。设计崇尚功能至上,强调功能布局,根据人体工程学推敲细节,使作品透露出浓厚的建筑结构美学,力求作品具备强烈的时代感,空间感,意识感。在追求实用的同时在感官上去引导生活,品味生活,享受生活。多个作品在权威大赛中获奖,并为高端时尚媒体和业界权威杂志长期刊登关注。 获奖情况: 2013年第八期TOP《软装饰界》优秀作品奖 2014年时尚家居金堂奖别墅空间作品入围 2015年IF设计奖室内设计优秀作品 2016年芒果奖住宅公寓最佳创意设计奖 2017年全国青年设计师创新创客大赛优秀作品奖 2018年入选亚太空间设计年度评选最具影响力设计师 2019年红棉中国设计奖·2019室内设计奖入围 2021年湖南省建筑室内设计大赛顶峰设计奖优秀奖铜奖 2021湖南顶峰设计奖优秀奖 2022年老宅新生设计奖·十大改造设计师 2023年N+DESIGN AWARDS获奖设计师 2023年湖南年度风尚设计师卓群奖 2023年京东设计家大赛住宅空间设计TOP100 2023年CIFF·设计千人计划2023-2024入选设计师 2023-2024年40UNDER40(湖南)当代设计杰出青年
    设计说明 | Design Instruction
  • 无论身处何种场景之中,家的氛围总生长在内心深处,表达居者的性格特质与审美观念。在环境与人的相互浸染下,家即以空间、光线和秩序达成多种生活状态的共存,亦带给居者更为丰富细腻的场所体验。 该案设计师站在居者的角度,以实际感受出发,为居者创造独立又丰富的空间。分层式功能空间分布,精细化空间设计,承载基本居住需求以外的个性化场景需求。删繁就简,凡事以简约为主。 公共区域浅色与木纹色的搭配,从硬装到软饰保持了整体的一致性和美观感,使空间看起来更加沉稳大气的同时,还能给予住者舒适的居家体验。悬挑式电视背景墙设计使得客厅空间更加整洁、大气。 叔本华曾说:不被外界打扰的闲暇,是求之不得的恩赐。现代生活的形式和底色,早已让生活变成工作的容器,而只有家,才能缓缓勾勒出生活的真正轮廓。本案以“家的平衡”为原点,关注空间内不同家庭成员的生活需求,于有限的空间内构建温情、柔和的氛围。强化空间的连接感与人性化,凸显不一样的理性与感性。
  • 图片
  • 图片
  • 图片
  • 图片
  • 图片
  • 图片
  • 图片
  • 图片
  • 图片
  • 图片
  • 图片
  • 图片
  • 图片
  • 图片
  • 图片
  • 图片
  • 图片
  • 图片
  • 上一个 下一个
    2024第八届金腾奖 私宅(独居)丨私宅(多人居)丨餐饮丨酒店丨办公丨商业丨公共丨公益丨人物丨NEW100 jintengAWARD(小金_金腾奖组委会) 广州市海珠区琶洲大道68号华新中心21楼
    金腾奖视频号 金腾奖小红书号 监制:刘译遥
    统筹:张俊媚
    运营:赖钰炼 曹凯月 刘芳棋 小金
    新媒体:王贝贝 严洁 张文一
    技术:黄天佑 丁德昌
    最终解释权归金腾奖主办方所有