银海泊岸
作品详情
  • Details of the work 标题横线
    头像或者logo
    图片 王顺涛 华耐设计基金特约推荐
    城市:昆明
    公司:
    参赛作品: 银海泊岸
    空间类型:别墅
    个人/公司简介:
    昆明理工大学,环境艺术设计专业。 注册高级室内设计师。云南省室内设计协会2019年度十佳设计师。 代表作品:海铂兰庭、九夏云水、润城、滇池郡府、华夏四季、诺德山海春风、文旅城、山海原著、三辰府、华润润府等。 擅长风格:新中式、现代极简、混搭、简欧、轻奢、法式、欧式奶油、复古日式原木风等。
    设计说明 | Design Instruction
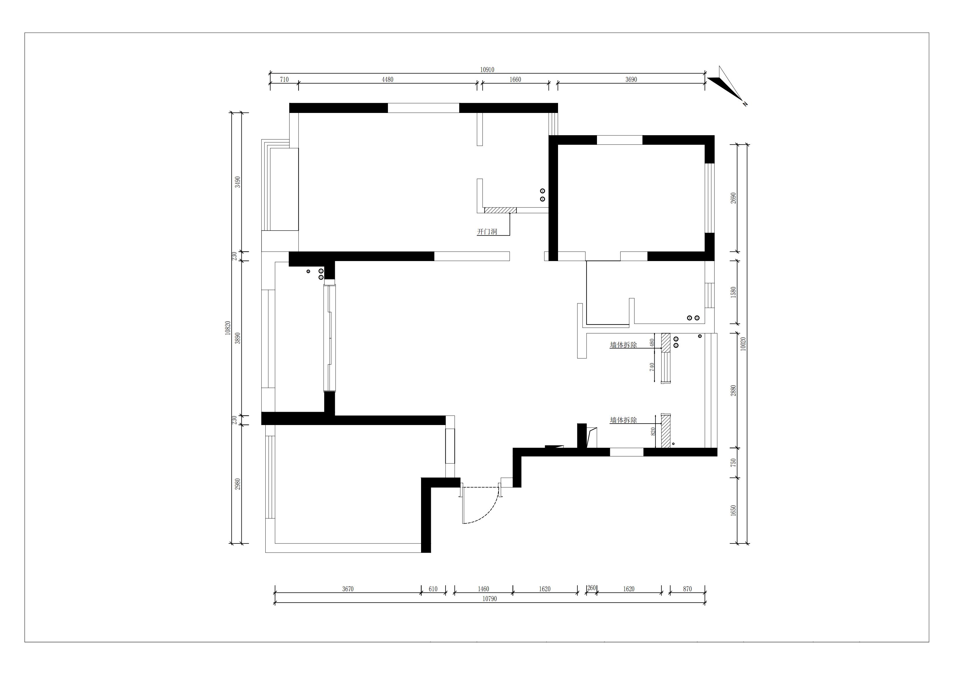
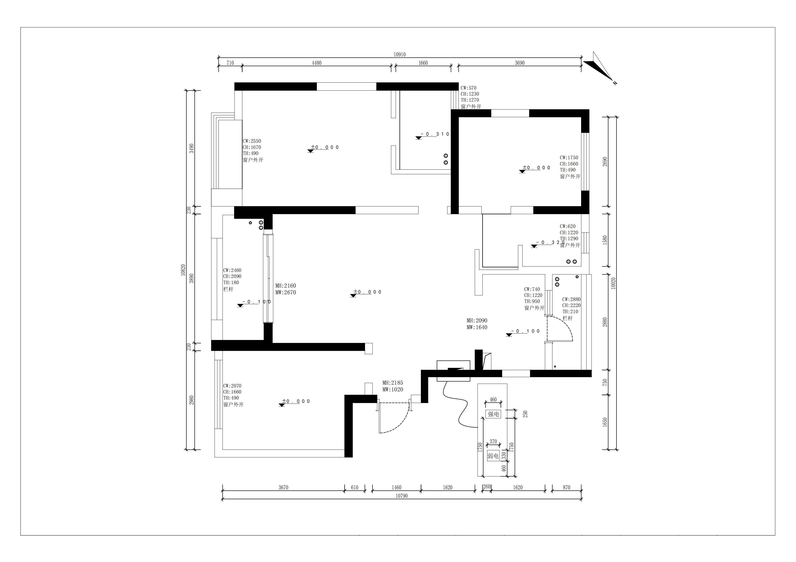
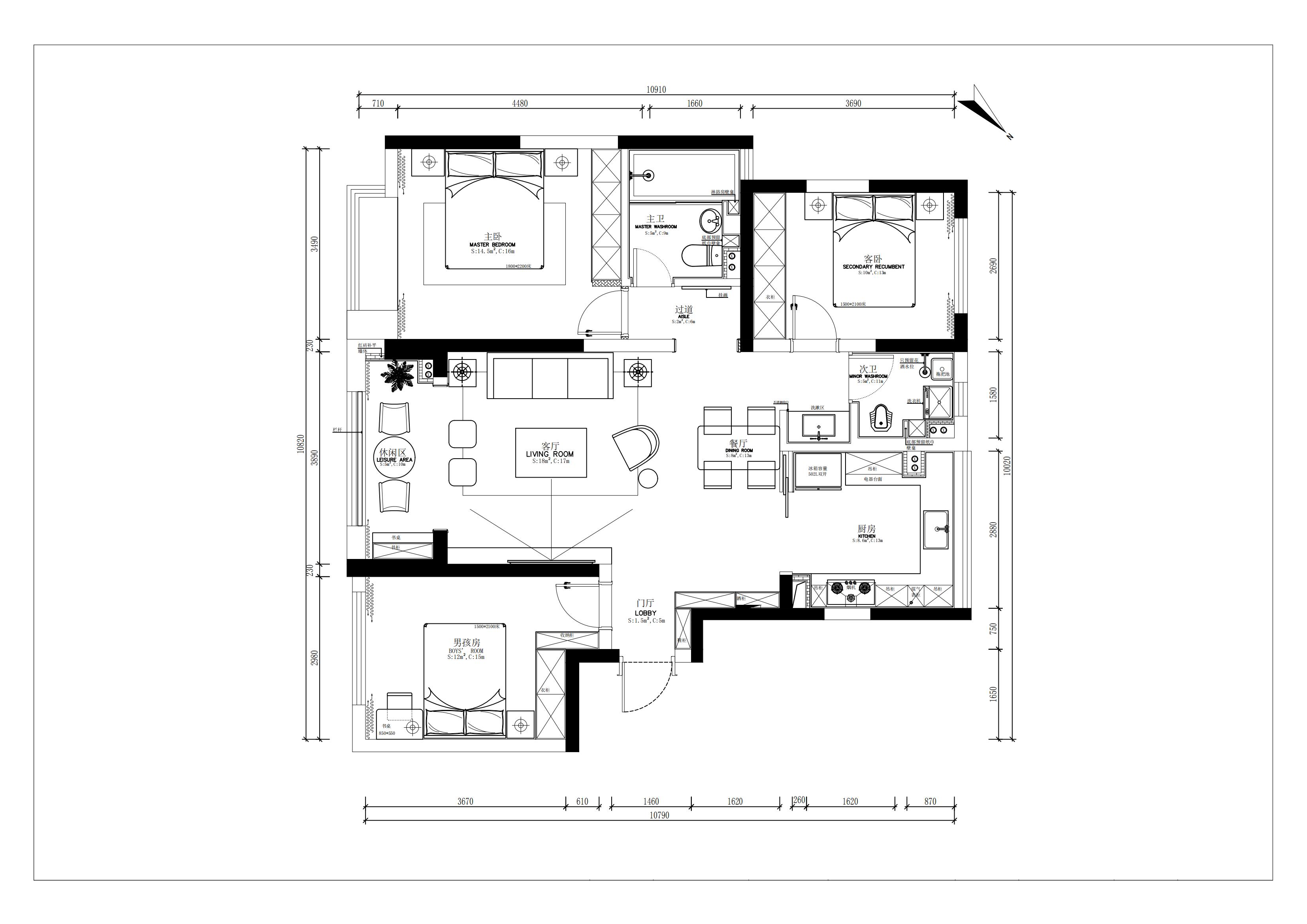
  • 此案例面积不大,客户是养老房,孩子在外工作,偶尔回来一下,不会长期居住. 主要适老化设计。夫妻两人居住为主。 房子南北通透,户型方正。局部改造厨房与生活阳台合并增大厨房使用率。失去了生活阳台,次卫就做了洗衣房兼并客卫的使用,主卫做了独立,不套在主卧里使用,考虑次卫没有淋浴空间,孩子回来的时候洗浴方便,也考虑卫生间使用时 不影响主卧的空间。 风格做了现代轻奢风格,颜色偏木纹咖色,体现出业主的年龄锲合度,也是业主比较喜欢的颜色。
  • 图片
  • 图片
  • 图片
  • 图片
  • 图片
  • 图片
  • 图片
  • 图片
  • 图片
  • 图片
  • 图片
  • 图片
  • 图片
  • 图片
  • 图片
  • 图片
  • 图片
  • 图片
  • 图片
  • 图片
  • 图片
  • 图片
  • 图片
  • 图片
  • 图片
  • 图片
  • 图片
  • 图片
  • 图片
  • 图片
  • 图片
  • 图片
  • 图片
  • 图片
  • 图片
  • 图片
  • 图片
  • 图片
  • 图片
  • 图片
  • 上一个 下一个
    2024第八届金腾奖 私宅(独居)丨私宅(多人居)丨餐饮丨酒店丨办公丨商业丨公共丨公益丨人物丨NEW100 jintengAWARD(小金_金腾奖组委会) 广州市海珠区琶洲大道68号华新中心21楼
    金腾奖视频号 金腾奖小红书号 监制:刘译遥
    统筹:张俊媚
    运营:赖钰炼 曹凯月 刘芳棋 小金
    新媒体:王贝贝 严洁 张文一
    技术:黄天佑 丁德昌
    最终解释权归金腾奖主办方所有