CAD COFFEE
作品详情
  • Details of the work 标题横线
    头像或者logo
    图片 DAED大亦设计
    城市:无锡市
    公司:DAED大亦设计
    参赛作品: CAD COFFEE
    空间类型:餐饮
    个人/公司简介:
    大亦设计专注于建筑及室内设计,并注重打造每个项目的独特视觉艺术效果。设计团队成员均具有国际视野和强烈的学习精神。坚持以在地文化为出发点,尊重传统同时以开放和探索的态度审视未来可能性。我们希望通过设计提升人与环境的互动体验。凭借自由创意和系统管理能力,公司已成功实施多个具代表性的案例项目。
    设计说明 | Design Instruction
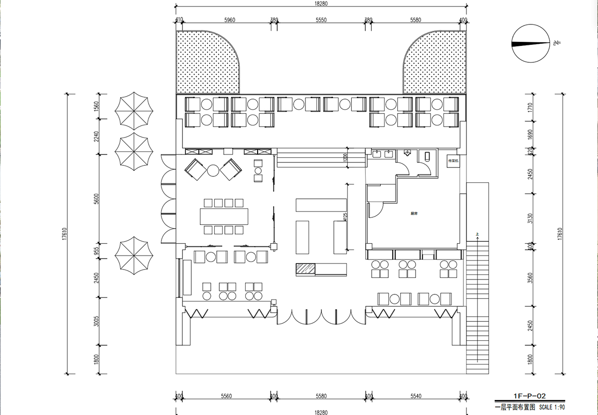
  • 园、水泥厂、咖啡,几个毫不相干的元素,交织出恰如其分的陌生感。公园,如同城市与自然的折痕;废弃的水泥工厂,如同新旧时代更迭的印记;空间与时间于此巧妙交叉,并不贴近也绝非遥远。天然的客观条件,触发我们想象,来客们走出家门抑或办公室格子间,到此处获得咖啡的同时还想获得什么?利用城市公园的环境优势,保留其开放性;维持水泥厂独特造型和年代感,打造陌生化体验;与此同时,满足迥异的消费需求,成为大亦的设计走向。通过洞察当代咖啡消费群体的内在需求,我们将咖啡时光,打造成一场唾手可得且切实可行的日常抽离。 此改造项目对原建筑以修缮为主,极大程度地维持建筑原有的结构风貌,用材上尽可能就地取材,践行长期主义同时保留使用痕迹和岁月肌理。改造,并非重塑,而是赋予新生。 室内采取开放式的布局,大面积玻璃和法式落地窗格与室外景观交互联动,将一侧沙发客座区抬高,暗示区域过渡的同时增加空间的错落层次,此外,以咖啡操作台为中心,分散延伸出商务、聚会、阅读、以及个人闲暇等功能区域,满足多元、甚至多重的消费需求,整体格局流动且舒缓。 整个咖啡空间摒弃惯用的射灯,以自然灯光作补充照明,弱化商业气息,还原日升日落的光影流转,树影扶疏间建立人与自然的生动感知。空间用材以肌理感木材、粗粝的纺织品为核心,天然有机的元素平衡现代简洁硬朗的线条,饰以生机绿植和艺术品,使氛围丰盈灵动。 室外区域打造为轻松怡然的欧式花园,模糊与公园环境的界限感。客座松散分布,留出社交距离和空间上的呼吸感,使来客往来进出、互动独处皆自在无拘束,在花香树影中畅写一段漫游式的咖啡手记。 当下的内卷社会中,人们被焦虑和压力裹挟着向未知前行。咖啡被戏称成为年轻人的“中药”,美式为打工人“续命”,关于咖啡的段子层出不穷,侧面映射出人们对于“碎片式抽离”的需求。有人高呼“人生不是轨道,而是旷野”,但现实生活远不是非此即彼的选择题,本案设计体察当下年轻人的渴望与无奈,为单一的日常生活轨迹开辟细小的岔口,在一杯咖啡的“边角料”时间中短暂抽离、放大自由,为“轨道”与“旷野”的夹缝栽下鲜活的小花。
  • 图片
  • 图片
  • 图片
  • 图片
  • 图片
  • 图片
  • 图片
  • 图片
  • 图片
  • 图片
  • 图片
  • 图片
  • 上一个 下一个
    2025第九届金腾奖 私宅空间 | 旅居空间 | 城市功能空间 | 人气设计师 | NEW100 jintengAWARD(小金_金腾奖组委会) 广州市海珠区琶洲大道68号华新中心21楼
    金腾奖视频号 金腾奖小红书号 监制:余佳灵
    统筹:张俊媚
    运营:赖钰炼 曹凯月 刘芳棋 小金
    新媒体:王贝贝 严洁 张文一
    技术:丁德昌
    最终解释权归金腾奖主办方所有