Contemporary Serenity with Gilded Details
作品详情
  • Details of the work 标题横线
    头像或者logo
    图片 吴囯弦
    城市:重庆市
    公司: 重庆晨羽装饰设计有限公司
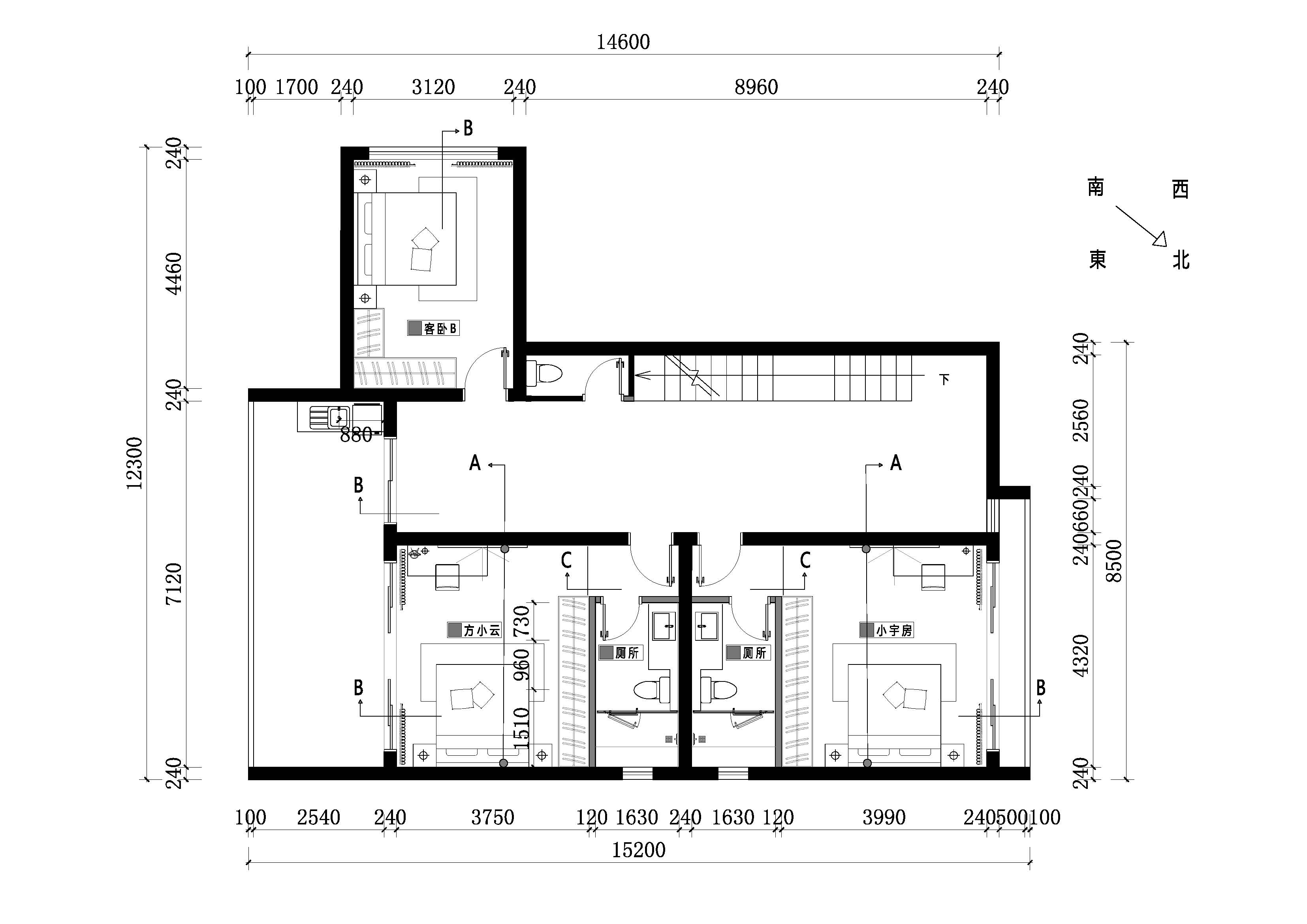
    参赛作品: 青霭浮金·隐逸集
    空间类型:别墅
    个人/公司简介:
    东方美学的世界漫游者,在地设计的时空解读者 从业二十五载,自台湾华夏室内设计系的学术启蒙,到与意大利极简主义大师共探形制美学,与日本枯山水匠人对话空间禅意;从菲律宾热带风情的在地性实践,到越南传统工艺的现代化转译,最终扎根重庆山城十二春秋——这场跨越山海的设计苦旅,淬炼出对多元文化共融的独到见解。二十五年步履不停,始终坚信 "设计是文明的转译者" ,愿以本届金腾奖为契机,与时代共探设计的更多可能。
    设计说明 | Design Instruction
  • “青霭浮金·隐逸集”为核心理念,融合宋代极简美学与现代轻奢气质,通过“隐逸于市”的哲学,打造一处兼具东方意境与当代生活美学的空间。设计以自然共生、材质碰撞、光影叙事为三大主线,将传统文人雅趣转译为现代设计语言,实现“隐逸而不避世,奢华而不张扬”的空间表达。 通过材质碰撞、光影叙事与文化转译,将隐逸哲学融入现代生活场景。空间以留白为基调,青霭与浮金为点睛,既延续宋代极简美学的“至专至简”,又通过轻奢细节提升品质感,最终实现“隐于形,奢于质”的设计愿景
  • 图片
  • 图片
  • 图片
  • 图片
  • 图片
  • 图片
  • 图片
  • 图片
  • 图片
  • 图片
  • 图片
  • 上一个 下一个
    2025第九届金腾奖 私宅空间 | 旅居空间 | 城市功能空间 | 人气设计师 | NEW100 jintengAWARD(小金_金腾奖组委会) 广州市海珠区琶洲大道68号华新中心21楼
    金腾奖视频号 金腾奖小红书号 监制:余佳灵
    统筹:张俊媚
    运营:赖钰炼 曹凯月 刘芳棋 小金
    新媒体:王贝贝 严洁 张文一
    技术:丁德昌
    最终解释权归金腾奖主办方所有