wanxianghuafu
作品详情
  • Details of the work 标题横线
    头像或者logo
    图片 江鑫 宁波市室内设计师协会特约推荐
    城市:宁波市
    公司: 新久软装设计
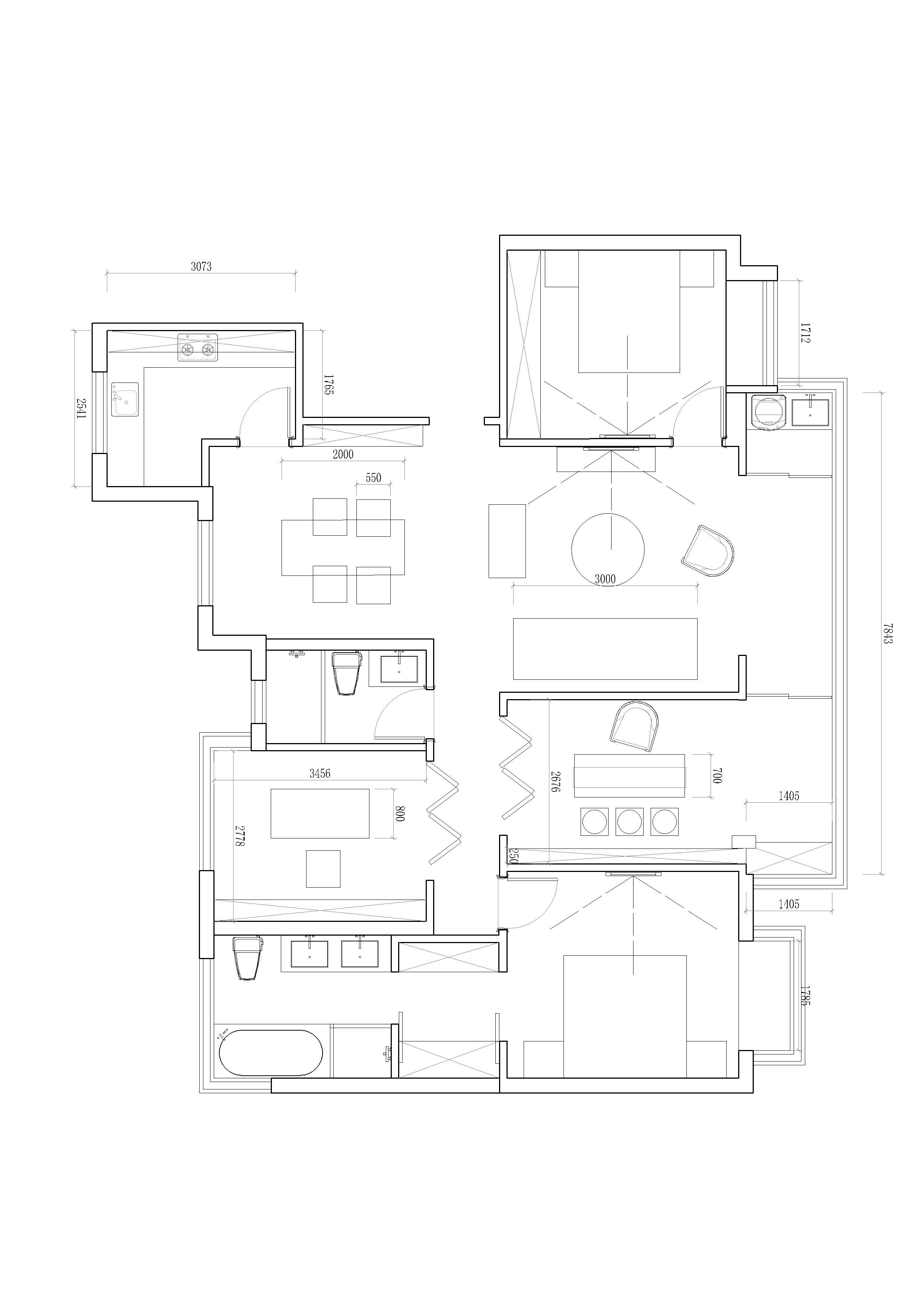
    参赛作品: 万象华府
    空间类型:平层(150㎡以上)
    个人/公司简介:
    2005年色彩排行浙江省青年第11名 2005年中国美院百名排行榜入榜 2019年空间设计大奖年度陈设软装空间设计大奖实景类 2020第十六届中国国际建筑装饰及设计艺术博览会 2019-2020年度国际环境创新设计作品大赛,住宅公寓空间类银奖 2020年国际空间设计大奖年度陈设软装空间设计多项优秀奖 2021年第九届1D+G金创意奖国际空间设计大赛年度十大资深设计v 2022Hi-Design室内设计大赛宁波十佳 2021-2022DesignFocus国际空间设计大奖 2022日立中央空调第十届室内设计大赛宁波十佳 上海国际设计周金维软装奖(2021-2022年度) 宁波市室内设计师协会会员中国软装协会会员 2023年第十一届Hi-Design室内设计大赛大区杰出奖 2023年京东设计家大赛住宅空间设计top100 2023精英名师邀请赛业主最喜爱户型 IDGTOP10人物奖年度十大资深设计师 2023西门子家电家庭公共空间设计大赛总决赛年度优秀奖 2023国际空间设计大奖年度陈设软装空间设计大奖 立邦设计师俱乐部城市合伙人 京东设计家官方认证设计师 城市精英名师榜2023年度十大菁英设计师 2023上海国际设计周金维奖提名奖
    设计说明 | Design Instruction
  • 家居美学 经典重塑 家 ,不仅是生活的港湾,更是品质的象征。 黑色美式家装,低调奢华,尽显独特魅力,成为众多家庭的优选而将黑色家具融入美式的家装设计中,更是为空间增添了一抹深邃而不失格调的风情. 客厅采用开放式的设计,连接餐厅,打造一个宽敞明亮的的一个活动空间,选择简洁大方的家具,沙发和茶几的组合突显空间的宽敞感,墙上的装饰画,提升了空间的艺术感。 餐厅选择实木餐桌和舒适的餐椅,提升用餐体验,通过装饰画和绿植增强餐厅的温馨感和艺术感。      黑色,作为色彩世界的永恒经典,当它与美式家具相遇,便赋予了空间一种难以言喻的高贵与深邃。黑色家具以其独特的视觉冲击力,营造出一种低调奢华的氛围。无论是皮质沙发、实木餐桌,还是复古书柜、黑色都以其独有的魅力,让每一件家具成为家中的艺术品。 在美式家装中,黑色家具与自然光的巧妙结合,能够营造出一种独特的空间美学。夜晚,柔和的灯光洒落,黑色家具则更显沉稳与宁静,为家人提供一方静谧的休憩之地。 在美式风格的卧室,一张黑色实木床架搭配柔软的床品,营造出既温馨又宁静的休憩空间,让人在繁忙之余得以彻底放松。
  • 图片
  • 图片
  • 图片
  • 图片
  • 图片
  • 图片
  • 图片
  • 图片
  • 图片
  • 图片
  • 图片
  • 图片
  • 图片
  • 图片
  • 图片
  • 图片
  • 上一个 下一个
    2025第九届金腾奖 私宅空间 | 旅居空间 | 城市功能空间 | 人气设计师 | NEW100 jintengAWARD(小金_金腾奖组委会) 广州市海珠区琶洲大道68号华新中心21楼
    金腾奖视频号 金腾奖小红书号 监制:余佳灵
    统筹:张俊媚
    运营:赖钰炼 曹凯月 刘芳棋 小金
    新媒体:王贝贝 严洁 张文一
    技术:丁德昌
    最终解释权归金腾奖主办方所有