Jin Ji Ying Yue Li
作品详情
  • Details of the work 标题横线
    头像或者logo
    图片 石城 云上设计师俱乐部特约推荐
    城市:南京市
    公司: 南京寻处空间设计
    参赛作品: 金基映樾里
    空间类型:公寓(150㎡以下)
    个人/公司简介:
    南京寻处空间设计事务所 设计总监/创始人 入行时间:8年 设计理念:设计需要中心思想,才能塑造空间的完整性。 所获荣誉: 2022亚太空间设计年度评选 十大杰出青年设计师(江苏) 2022年十间坊&芒果奖 城市最具设计价值人物
    设计说明 | Design Instruction
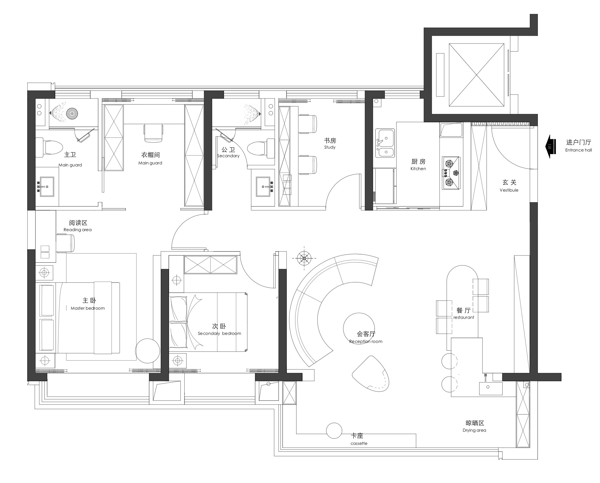
  • 本案设计深度融合黑色元素、天然石材、意大利进口木皮及超白玻璃材质,为空间赋予了独特的现代美学与功能性。 客餐厅: 全屋墙顶使用具有自然纹理的艺术涂料,硬装大面积留白,家具选用不同材质和造型组合,呈现繁简对比。用餐区与入户视野的交汇处采用超白玻璃与进口木皮结合的玻璃吊柜设计,提升了空间的通透感与趣味性。 书房的隐形门设计深化过道视觉体验,大面积的天然木皮赋予空间简洁明快的氛围。天然大花白材质的餐桌岛台与洗衣机柜采用一体化设计,自然衔接空间的同时不失层次与质感。 弧形沙发与定制原木茶几赋予客厅灵动气息。 阳台的卡座兼具收纳与休闲功能,顶部的天然木皮木饰面与之形成空间围合之感,在不打断空间连贯性的同时又强调了特定区域的归属感,空间的松弛感由此蔓延。 使用黑色不锈钢元素对承重墙进行内凹造型处理并加以饰品点缀,弱化了承重墙对空间的分隔感。 在窗帘的选择上使用了半高的香格里拉帘来营造光影之美。 主卧: 优化主卧布局,与北房间打通,增设独立衣帽区,弱化睡眠区局促感。半高的意大利进口木皮从床头延伸至侧面区域,再次强调区域的归属感。原本对床的卫生间门改为半通透玻璃,更改后的门以暗藏滑轨设计于侧面,增强空间连通与互动。半透玻璃格栅隔断作为睡眠区与衣帽区的过渡,保持空间呼吸度的同时增添了进入衣帽区的仪式感。 衣帽间: 在满足收纳的基础上,衣帽间打破常规,部分采用壁挂式设计,拓宽视觉空间,避免压抑感。 南次卧: 床头背景以半高意大利进口木皮为主色调,点缀黑色元素。棋盘格元素的木皮与手工木雕摆件相映成趣,提升空间趣味与艺术感。 书房: 书房大量运用进口木皮,收纳隔板设计独特,厚薄不一、材质多样,旨在营造功能性与美学并重的艺术氛围。
  • 图片
  • 图片
  • 图片
  • 图片
  • 图片
  • 图片
  • 图片
  • 图片
  • 图片
  • 图片
  • 图片
  • 图片
  • 图片
  • 图片
  • 图片
  • 图片
  • 图片
  • 图片
  • 图片
  • 图片
  • 图片
  • 图片
  • 上一个 下一个
    2025第九届金腾奖 私宅空间 | 旅居空间 | 城市功能空间 | 人气设计师 | NEW100 jintengAWARD(小金_金腾奖组委会) 广州市海珠区琶洲大道68号华新中心21楼
    金腾奖视频号 金腾奖小红书号 监制:余佳灵
    统筹:张俊媚
    运营:赖钰炼 曹凯月 刘芳棋 小金
    新媒体:王贝贝 严洁 张文一
    技术:丁德昌
    最终解释权归金腾奖主办方所有