Hidden City
作品详情
  • Details of the work 标题横线
    头像或者logo
    图片 贾祺 云上设计师俱乐部特约推荐
    城市:蚌埠市
    公司: 蚌埠万物有序设计
    参赛作品: 市隐
    空间类型:公寓(150㎡以下)
    个人/公司简介:
    蚌埠万物有序设计 创始人兼主案设计 擅长案例: 住宅空间以及老房改造 公司文化: 他山之石,可以攻玉 踽踽独行,逆流而上 刚柔并济,休戚与共 目光所及,万物有序 设计理念: 万物有序全案设计工作室, 是一个独立的设计团队, 我们致力于将创新、艺术与实用相结合, 尊重知识、注重实践, 在创新与实践之间取得平衡, 创造出令人惊叹的设计作品。
    设计说明 | Design Instruction
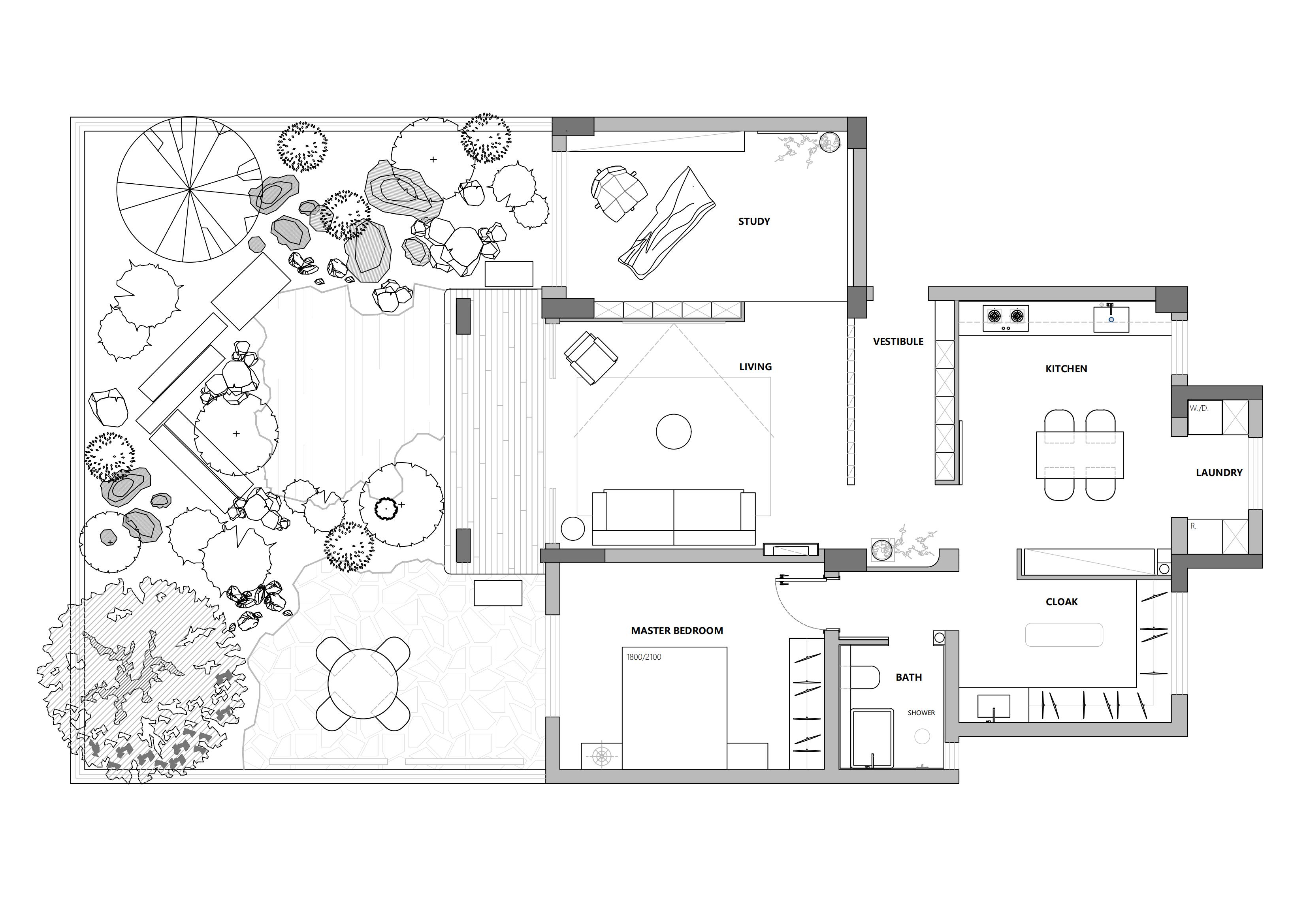
  • 项目位于安徽蚌埠老城区,业主为独居者,渴望在闹市中构筑一处“隐于市井”的精神居所。原始建筑为上世纪砖混结构老房,无地下车库且庭院紧贴实体围墙,恰契合业主“下挖庭院、隔绝喧嚣”的核心诉求。设计以 “引自然入室,化封闭为通透” 为核心理念,将日式禅意美学与江淮民居肌理融合,在72㎡空间内重构“人、自然、建筑”的共生关系。 空间重构策略 格局再造 - 打破三室一厅固有框架,以“一人居”尺度重塑空间序列: • 复合型茶室:6米通长地台整合书房、茶叙、观景功能,格栅移门实现光影戏剧化切割 • 独立式衣帽间:U型玻璃隔断消解储物区厚重感,兼作卧室自然光过滤器 - 开放式厨房植入中岛吧台,与庭院景观轴线形成视觉对景 自然交互系统 - 垂直渗透:下挖1.2米庭院形成沉静感,花岗岩踏步嵌入青苔缝隙,模糊室内外高差 - 水平流动:定制铜质导风板将庭院气流引向茶室,吊顶隐藏式新风增强空气环流 - 五感设计:竹帘滤光、惊鹿竹音、枫树投影墙面,构建随时间流转的感官剧场 材料叙事与可持续实践 在地性表达:回收老房红砖打磨为庭院汀步,与樱桃木温润质感形成历史对话 生态微系统:锦鲤池兼作雨水收集池,搭配佛甲草屋顶实现小气候调节 轻量化改造:原有实墙保留为“画布”,通过爬藤月季与透景窗重构立面表情 本案最终呈现的,是一个兼具现代理性与自然诗意的居住容器。通过侘寂美学的当代转译,在简练的框架中生长出温润质朴的空间气质,为居者构筑出可栖可游的精神居所。
  • 图片
  • 图片
  • 图片
  • 图片
  • 图片
  • 图片
  • 图片
  • 图片
  • 图片
  • 图片
  • 图片
  • 图片
  • 图片
  • 图片
  • 图片
  • 图片
  • 图片
  • 图片
  • 图片
  • 图片
  • 图片
  • 图片
  • 图片
  • 图片
  • 图片
  • 上一个 下一个
    2025第九届金腾奖 私宅空间 | 旅居空间 | 城市功能空间 | 人气设计师 | NEW100 jintengAWARD(小金_金腾奖组委会) 广州市海珠区琶洲大道68号华新中心21楼
    金腾奖视频号 金腾奖小红书号 监制:余佳灵
    统筹:张俊媚
    运营:赖钰炼 曹凯月 刘芳棋 小金
    新媒体:王贝贝 严洁 张文一
    技术:丁德昌
    最终解释权归金腾奖主办方所有