Overlaying Shadows
作品详情
  • Details of the work 标题横线
    头像或者logo
    图片 北岩设计 云上设计师俱乐部特约推荐
    城市:南京市
    公司:北岩设计
    参赛作品: 叠影
    空间类型:别墅
    个人/公司简介:
    北岩设计2013年成立于南京,是一家集空间设计、配套施工、软装陈设于一体的系统化专业设计公司。10年间在全国20多个城市累计输出500+优秀案例,并凭借专业实力屡获国内外各类设计大奖,成为南京品质私宅的引领者。
    设计说明 | Design Instruction
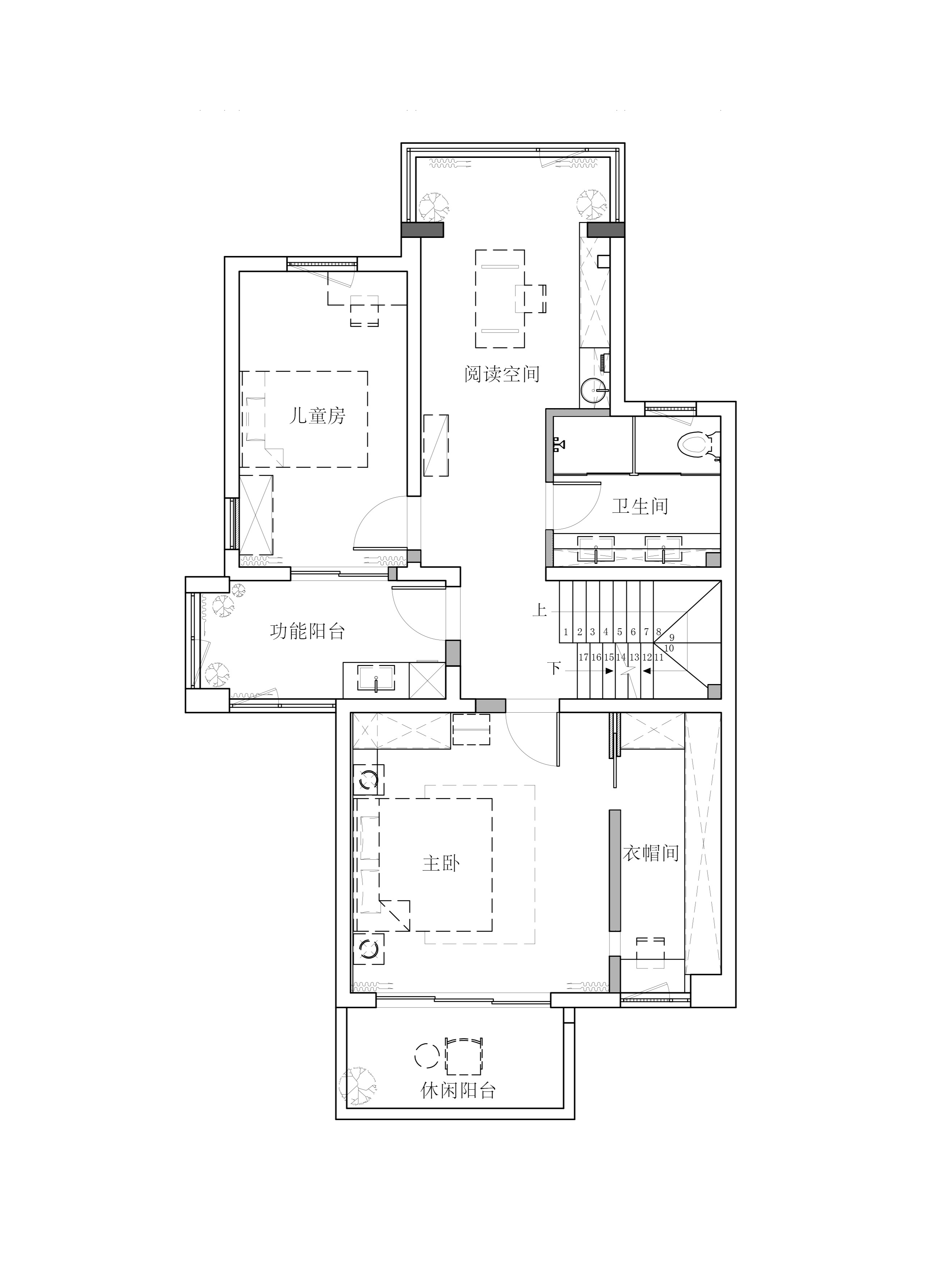
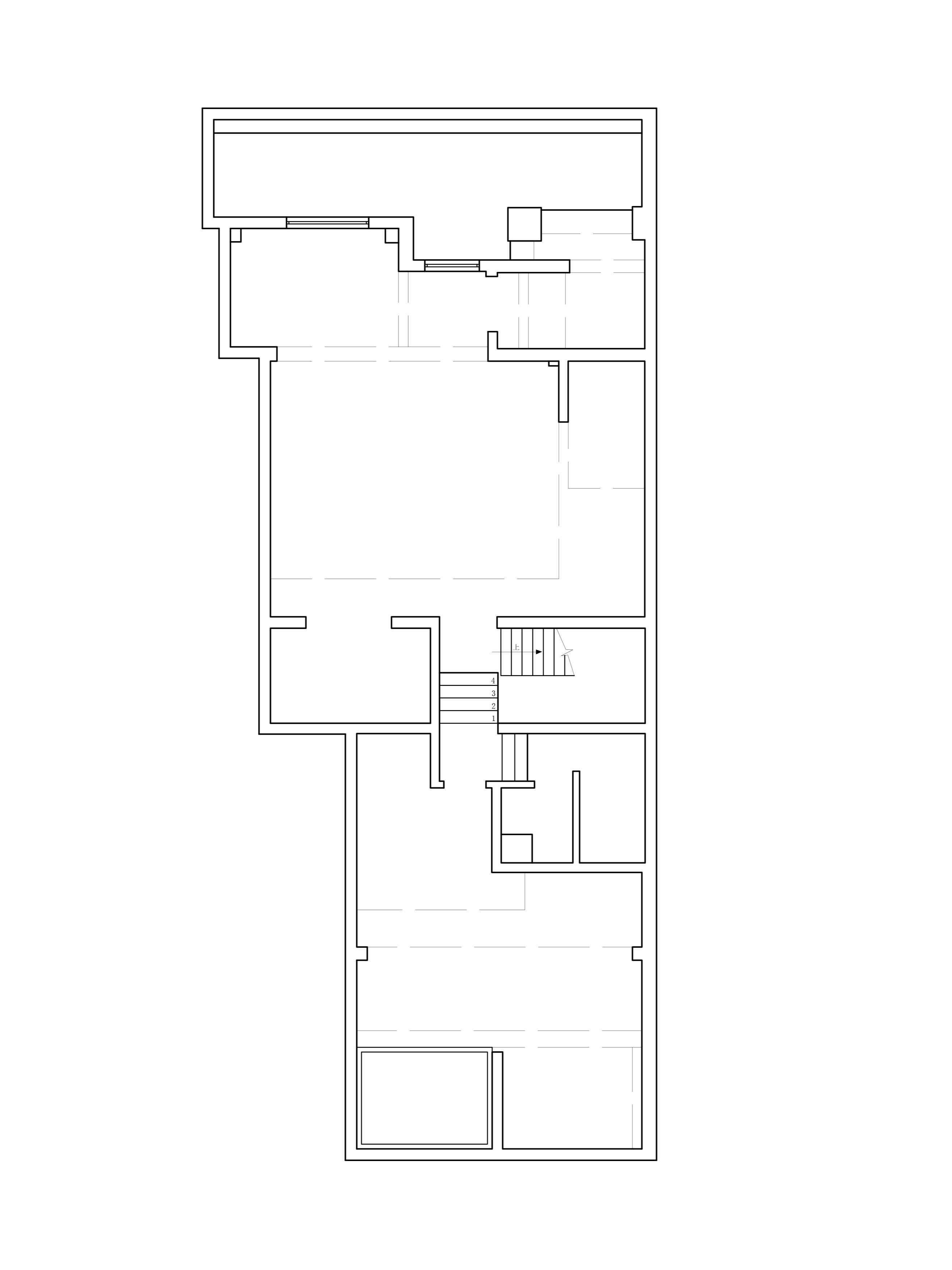
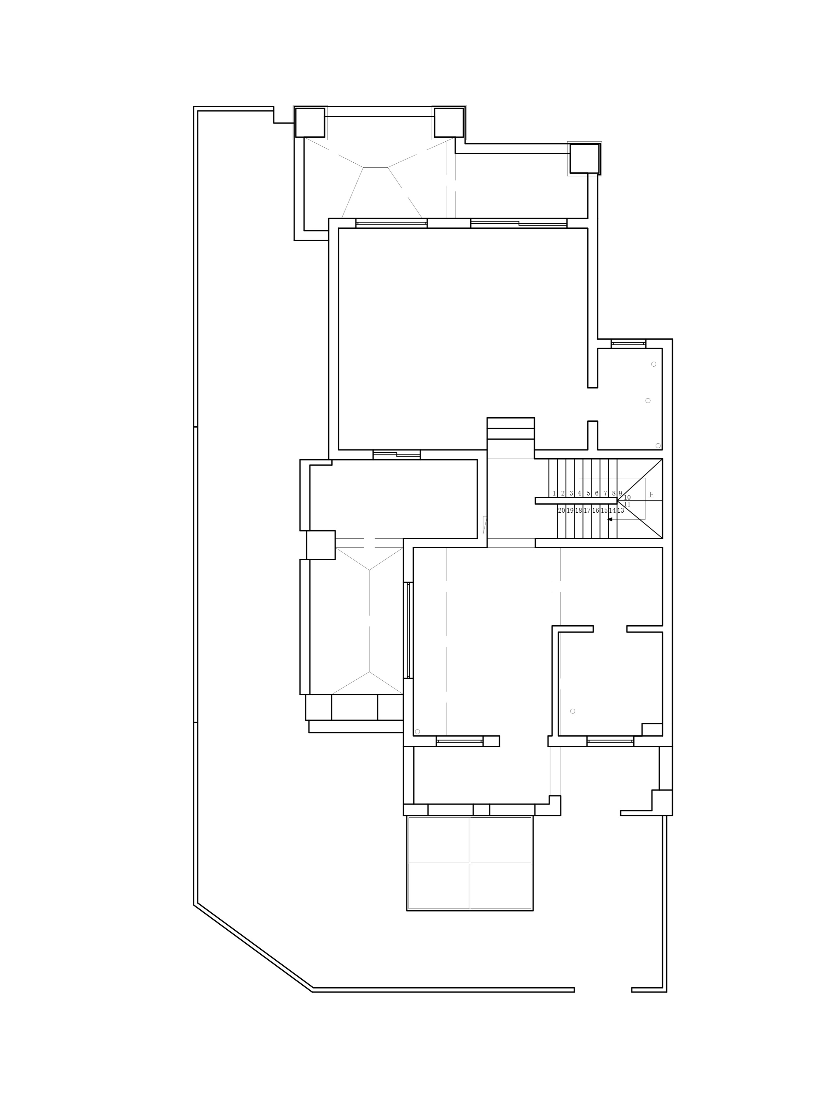
  • 从二人世界到三口之家,赋予了空间更丰富的功能与情感需求。设计以“静谧的极简主义”为基调,通过黑白主色、干净利落的线条构筑空间结构,同时融入艺术软装与灵活的光影,实现功能性与情感温度的平衡。四层别墅通过垂直动线与视觉联动设计,既保持各层独立性,又形成连贯的整体生活系统。 地下室设定为家庭社交延伸区,结合影音室和品茶区等功能。一楼公共区域融合餐厅、厨房与客厅等空间。二楼主卧套间与儿童房通过书房过渡,兼顾独立性与亲子互动需求。顶楼预留灵活客房与储藏室,为未来十年生活变化留白。 井然有序的收纳柜、隐形踢脚线等细节强化空间的纯粹性。透明玻璃柜门将藏品转化为“生活展陈”,在秩序中透露出居住者的个性印记。 Gufram仙人掌衣帽架的鲜绿点缀,以艺术化的叛逆打破极简的克制,隐喻家庭生活的活力与成长性。 光影是空间最忠实的叙事者。利用建筑原有采光条件,午后三四点,修长的日影从餐桌脚边漫溯,如缓慢推移的电影镜头,每日上演不重样的光影即兴曲。 当夜幕降临,灯光渐次亮起,属于业主的故事继续在这里生长。而我们,依然会是那个安静的记录者与共建者——用设计,为下一个十年的美好生活预留伏笔。
  • 图片
  • 图片
  • 图片
  • 图片
  • 图片
  • 图片
  • 图片
  • 图片
  • 图片
  • 图片
  • 图片
  • 图片
  • 图片
  • 图片
  • 图片
  • 图片
  • 图片
  • 图片
  • 图片
  • 图片
  • 图片
  • 图片
  • 图片
  • 上一个 下一个
    2025第九届金腾奖 私宅空间 | 旅居空间 | 城市功能空间 | 人气设计师 | NEW100 jintengAWARD(小金_金腾奖组委会) 广州市海珠区琶洲大道68号华新中心21楼
    金腾奖视频号 金腾奖小红书号 监制:余佳灵
    统筹:张俊媚
    运营:赖钰炼 曹凯月 刘芳棋 小金
    新媒体:王贝贝 严洁 张文一
    技术:丁德昌
    最终解释权归金腾奖主办方所有