Just the right amount of healing
作品详情
  • Details of the work 标题横线
    头像或者logo
    图片 翁结爱 宁波市室内设计师协会特约推荐
    城市:宁波市
    公司: 宁波高新区喆翔设计工作室
    参赛作品: 恰到好处的治愈
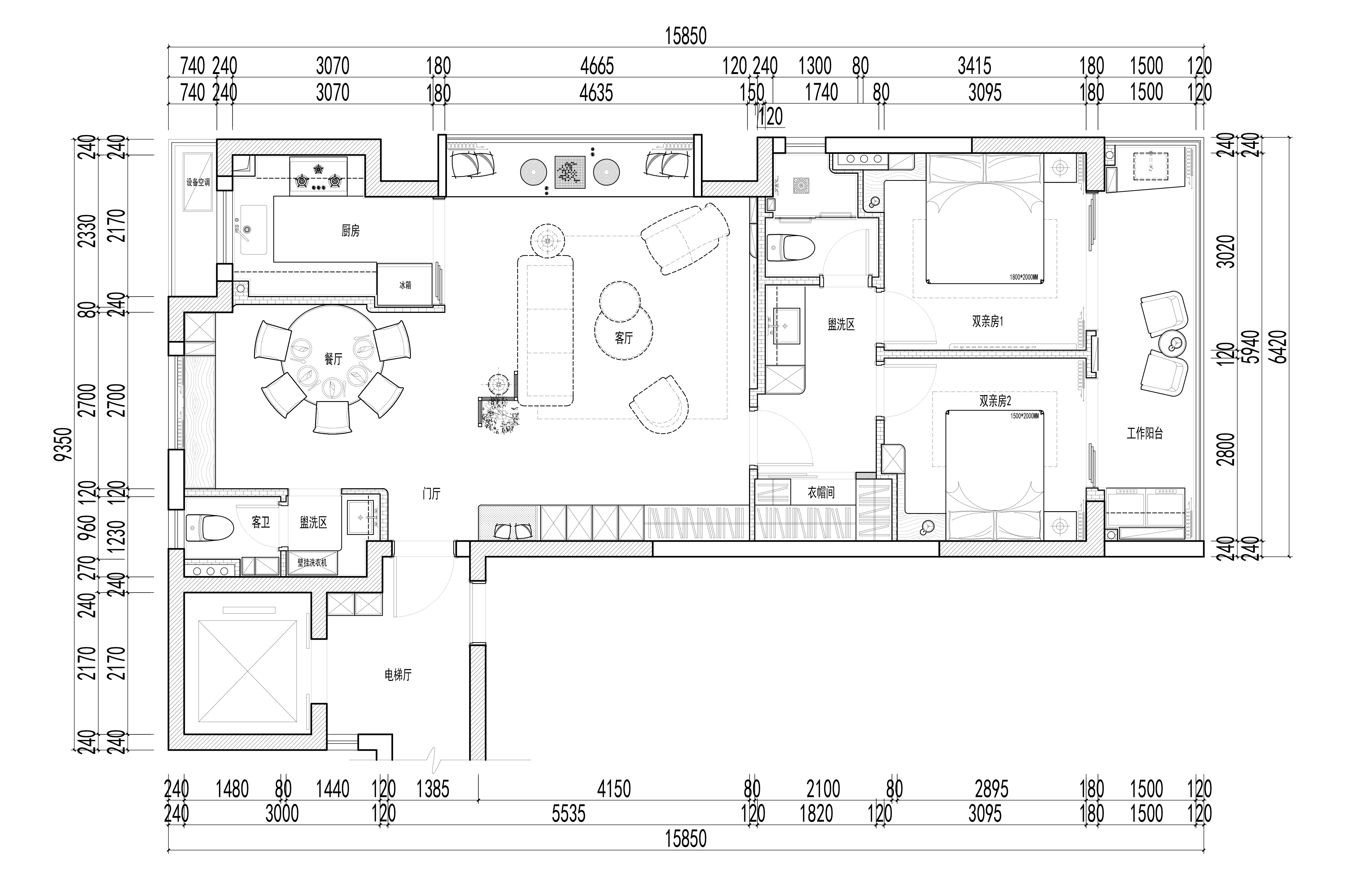
    空间类型:公寓(150㎡以下)
    个人/公司简介:
    [主要成就] 第四届DESIGN FOCUS国际空间设计大奖(陈设软装空间设计大奖-实景类) 2022年度红棉设计奖—最美时尚空间设计奖 2022年第二届拓者杯—空间概念设计大奖 2022年首届京东设计家住宅谁及大奖赛TPO100 2022年度中国装饰艺术设计作品类(一等奖) 宁波市室内设计师协会会员 国际建筑装饰室内设计协会高级室内设计师 工程师(建工专业) B证安全员(建工专业) 高级住宅室内设计师(装饰专业) [设计理念] “尽其心,创其美,善其工”来解构生活的语言 [擅长风格] 现代、中式、新中式、港式、法式
    设计说明 | Design Instruction
  • 恰到好处的治愈 家不止是一个空间,她关乎居住者的情,我们能做的就是将这个空间打造的契合业主内心深度的想法,一处可以抚慰心灵的落脚点。她是连接身心的存在,家如其人,大抵就是如此,当你身处其中,房子就像娓娓道来的讲述者,不疾不徐缓缓展开。 与业主沟通中,确定了对新家的需求: 1. 更重视功能性,形式追随功能。 2. 喜欢温馨的风格,要舒适耐看、通透明亮、干净雅致。 我们在三房改两房在空间上,更大的释放了空间的舒适度,贯穿南北。边角的弧线让空间更加的柔美,温柔的奶白和木纹的碰撞,包容了一家人的生活。大理石纹路增添着一丝俏皮的活力,玻璃下穿透着空间丝丝缕缕的烟火气息。在本案中大量运用了原木和奶油白两种元素。通过巧妙的搭配和布局,相互呼应、相互衬托,原木色的家具和地板、局部木作与奶油白的墙面及软装相得益彰,营造出一个既自然又梦幻的居住空间。在这样的环境中,让家人尽情享受生活的美好,感受到家的温馨与浪漫。 敞开门扉,走进屋的那刻起,即是一场简约与柔美的邂逅。眼前是奶油色系与原木的碰撞,素色淡雅的空间基调,给房屋蒙上一层朦胧而美好的滤镜。空间中弧形的线条,为整个空间增添了一道亮丽的风景线。门厅隔断经过精心设计变成共享区域中的点睛装饰,在不同光线下能呈现出不同的色彩感受。绿色是业主最喜欢的颜色,在此中也有不同程度的相关元素点缀其间。 客厅作为设计的核心地带,希望能以开放式的布局打造个性化空间,作为居住者个性、情绪、审美的集中体现,此中也加入了很多抽象的趣味元素,比如小手办,成年人的世界也需要这些柔软的情感陪伴,弧线的温柔磨平了岁月的棱角,造型墙的空格里激迸出繁星点点,木的纹理是大自然对岁月的洗礼与石材的结合在温润了空间,芥末绿单椅家具点亮了空间的活跃。隐于无形的收纳手法,更是切中业主所需,不显厚重的方式整合了展示与纳物的功能,一举两得。舍弃层层华丽堆叠,简约舒适与细腻铺叙并陈,满室净透又自带仙气的家景里掺入编织形式的靠包与木质,严选的极简无主灯,亦为家宅增添唯美光氛。半弧形的餐厅布局弱化了棱角,让家庭聚餐社交变得更加舒适,也增加人在空间中的亲密度。 不同于共享区简约的空间调性,卧室从配色和软装搭配上会更柔软一些,作为私人空间,能够完全放松下来,回归内心,做回那个柔和的自己。主卧套间功能独立,涵盖独立衣帽间、卫浴等多个功能空间。进门更衣、洗漱、再到睡眠区,动线顺畅,卧室的阳光轻柔地穿透纱幔,悄无声息地融入这个静谧世界。此处于细小微处感知松弛生活的能量,向外延展,向上生长的惬意姿态。床头设有双层平台,下层可当作床头柜,上层则可放置较大型、暂时用不到的物品,充足而完善的收纳机能,使卧室保持有条不紊的整洁与秩序感,每一个角落都弥漫着生活的醇香,每一道光影都折射着艺术的深邃。一个居住的地方,更似心灵的港湾,情感的归宿。 家的结构是我们对生活的规划和期待的体现。无论是宽敞明亮的客厅,还是温馨舒适的卧室,每一个空间都承载着我们对家的独特理解和期待。我们注重空间的合理布局和功能的完善,力求让每一个空间都发挥出的价值,满足日常生活的需求。 我们不必为美设限,因其本就无界,美是凌驾于空间之上的意境,是超越文字描述的境界,唯有亲身经历,方能深切领悟生活的艺术之美。
  • 图片
  • 图片
  • 图片
  • 图片
  • 图片
  • 图片
  • 图片
  • 图片
  • 图片
  • 图片
  • 图片
  • 图片
  • 图片
  • 图片
  • 图片
  • 图片
  • 图片
  • 图片
  • 图片
  • 图片
  • 图片
  • 上一个 下一个
    2025第九届金腾奖 私宅空间 | 旅居空间 | 城市功能空间 | 人气设计师 | NEW100 jintengAWARD(小金_金腾奖组委会) 广州市海珠区琶洲大道68号华新中心21楼
    金腾奖视频号 金腾奖小红书号 监制:余佳灵
    统筹:张俊媚
    运营:赖钰炼 曹凯月 刘芳棋 小金
    新媒体:王贝贝 严洁 张文一
    技术:丁德昌
    最终解释权归金腾奖主办方所有