Starry Sea
作品详情
  • Details of the work 标题横线
    头像或者logo
    图片 杨磊
    城市:张家港市
    公司:杨磊
    参赛作品: 海韵星辰
    空间类型:民宿
    个人/公司简介:
    杨磊----极致空间大观设计事务所设计总监 主要荣誉 中国建筑学会室内设计分会CIID会员 高级住宅室内设计师 40UNDER40中国(张家港)设计杰出青年 金住奖-2022中国(张家港)十大居住空间设计师 金住奖-2021中国(张家港)十大居住空间设计师 金住奖-2020中国(张家港)十大居住空间设计师 金住奖-2019中国(张家港)十大居住空间设计师 2019东方美学设计大赛张家港赛区冠军 2019“九洲杯”首届室内装饰方案创意设计大赛二等奖 2018芒果奖中国住宅优胜奖 2016中国国际室内设计筑巢奖优秀奖 2015“永隆.星空间杯”江苏省室内设计大赛优秀奖 2014张家港设计行业菊花杯三等奖 设计理念 设计是对生活的一种诠释,尊重建筑形态 合理利用光影,以人为本打造有温度的空间。
    设计说明 | Design Instruction
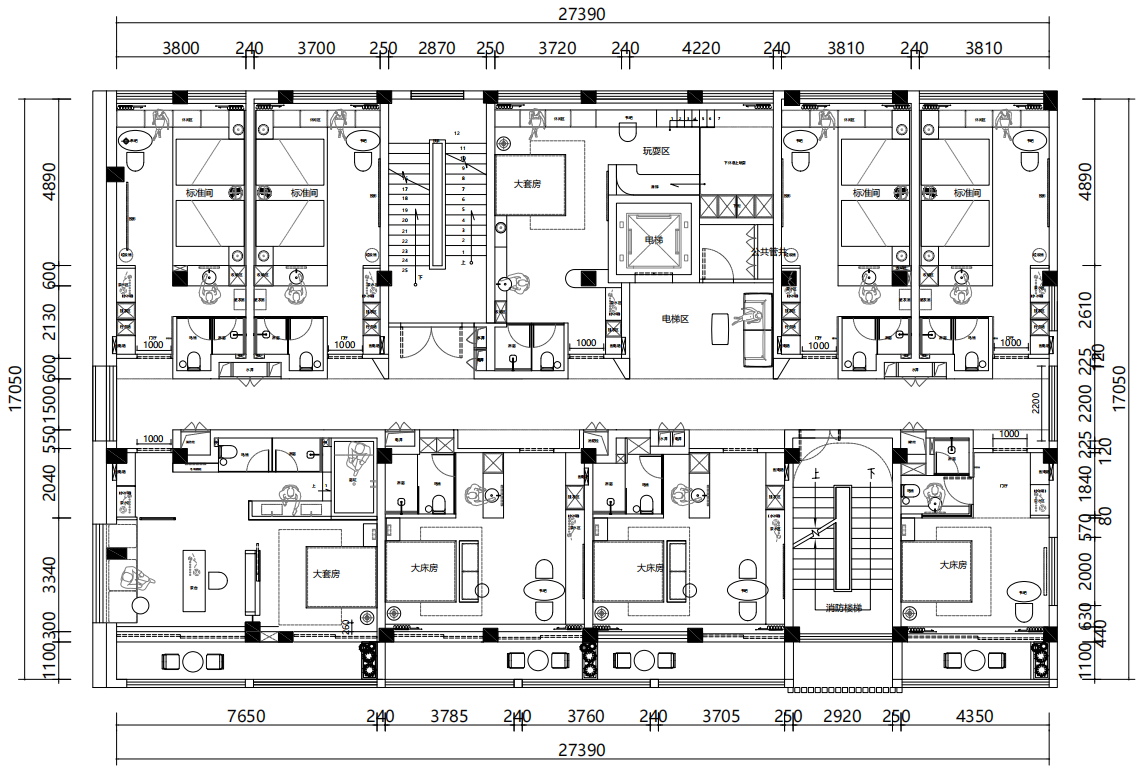
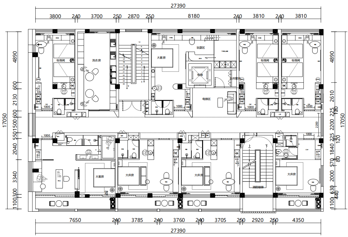
  • 关于湄洲岛海韵星辰民宿酒店项目的设计构思如下: 湄洲岛,这座承载千年妈祖文化的海上圣地,即将迎来一座以宋式美学为魂、以海岛风情为韵的精品民宿——「海韵星辰」。苏州极致空间设计公司(专注设计落地,十年间设计版块取得成绩突破,全国类设计奖项:筑巢奖---全国优秀奖 金堂奖---全国优秀奖 新浪家居---全国赛区最具风格奖 芒果奖---全国优胜奖 金住奖---中国张家港十大居住空间设计师。苏州、张家港区域奖项---苏州装饰设计行业协会理事 。新浪家居---东方美学优秀奖)。应甲方诉求以"让文化可栖居,让身心归自然"为初衷,将宋代文人雅士的生活哲学与妈祖精神的人文情怀交织,打造一处既能触摸历史温度、又能安放现代人精神的诗意空间。 一、宋式美学:穿越千年的东方意境 设计团队以"极简、清雅、通透"的宋式美学为设计主线。室内空间借鉴宋代"四般闲事"生活美学,以素色麻幔、竹编灯影、青瓷摆件点缀,搭配可开合的格栅门窗,让光影成为空间流动的诗句。厅内伫立着妈祖的雕像,隐喻“海上守护神”与自然共生的意境。 二、地域文化与妈祖信仰的在地性表达 妈祖文化的精神内核,湄洲岛作为妈祖文化的发源地,民宿设计需以妈祖信仰为核心叙事线索。 三、政策导向下的民宿新生活模式 1、文旅融合与乡村振兴 政府倡导民宿作为“文化载体”,如湄洲岛推动台胞创业、鼓励“民宿+文创”模式。 2. 低碳与智慧化实践 响应“零碳岛屿”政策,采用光伏发电、微电网系统、雨水回收等技术。 结语 湄洲岛海韵星辰民宿设计以“文化为魂、自然为体、简约为形、人本为核”,通过在地性叙事与跨文化美学的融合,打造兼具精神归属与时代审美的旅居空间。未来可进一步探索碳积分奖励、主理人IP孵化等模式,形成可持续发展的民宿生态。
  • 图片
  • 图片
  • 图片
  • 图片
  • 图片
  • 图片
  • 图片
  • 图片
  • 图片
  • 图片
  • 图片
  • 图片
  • 图片
  • 图片
  • 图片
  • 图片
  • 图片
  • 图片
  • 图片
  • 图片
  • 图片
  • 图片
  • 图片
  • 图片
  • 图片
  • 图片
  • 图片
  • 图片
  • 图片
  • 图片
  • 图片
  • 图片
  • 图片
  • 图片
  • 图片
  • 图片
  • 图片
  • 图片
  • 图片
  • 上一个 下一个
    2025第九届金腾奖 私宅空间 | 旅居空间 | 城市功能空间 | 人气设计师 | NEW100 jintengAWARD(小金_金腾奖组委会) 广州市海珠区琶洲大道68号华新中心21楼
    金腾奖视频号 金腾奖小红书号 监制:余佳灵
    统筹:张俊媚
    运营:赖钰炼 曹凯月 刘芳棋 小金
    新媒体:王贝贝 严洁 张文一
    技术:丁德昌
    最终解释权归金腾奖主办方所有