The LOVE
作品详情
  • Details of the work 标题横线
    头像或者logo
    图片 张弦
    城市:北京市
    公司: 艾德诺特(北京)设计顾问有限公司
    参赛作品: 小蜗居
    空间类型:公寓(150㎡以下)
    个人/公司简介:
    艾德诺特设计创始人/设计总监,艾德诺特建筑工程项目总监,ADNT品牌创始人。 2025年 第20届美国室内设计金外滩奖 最佳概念设计奖 2024年 Design Discovery Awards Honorable Mention 2024年 华鼎奖 中国建筑装饰行业十大最具原创设计师 2023年 第十五届CBDA照明应用设计大赛 非照明家组设计奖 2023年 金堂奖学院城市学院 特聘讲师 2022年 第17届美国室内设计金外滩奖 最佳居住空间奖 2022年 4040中国设计杰出青年奖 2021年 第二届三棵树健康+室内设计新星大赛 全国一等奖 2021年 金堂奖 年度杰出别墅空间设计奖 2021年 第16届美国室内设计金外滩奖 最佳休闲娱乐空间奖
    设计说明 | Design Instruction
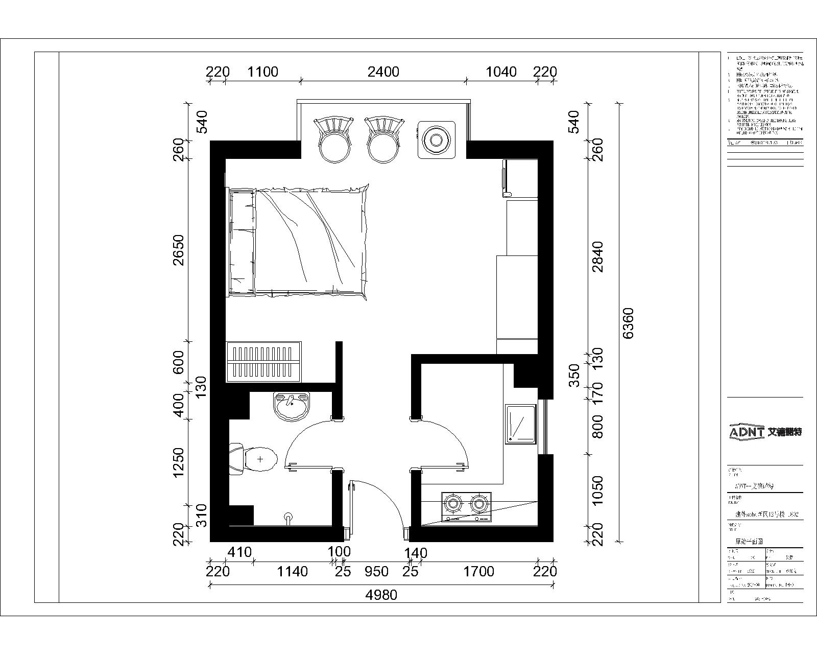
  • 这是一处快20年的公寓改造,项目空间只有37平米,早期的公寓厨房和卫生间都是实体墙,由于业主经常自己做饭,考虑到油烟的问题,设计师采用了半墙加玻璃的设计,既避免开放式厨房的油烟,又使得整个空间尽可能通透。早期的卫生间都没有淋浴房,设计师加长了卫生间,专门做出了一个淋浴房,解决的很多开放式淋浴间导致卫生间门发霉的问题。同时入户的过道过于狭窄,设计师挤压了卫生间的宽度,给门厅过道留出了摆放鞋柜的位置。
  • 图片
  • 图片
  • 图片
  • 图片
  • 图片
  • 图片
  • 图片
  • 图片
  • 图片
  • 图片
  • 图片
  • 图片
  • 图片
  • 图片
  • 上一个 下一个
    2025第九届金腾奖 私宅空间 | 旅居空间 | 城市功能空间 | 人气设计师 | NEW100 jintengAWARD(小金_金腾奖组委会) 广州市海珠区琶洲大道68号华新中心21楼
    金腾奖视频号 金腾奖小红书号 监制:余佳灵
    统筹:张俊媚
    运营:赖钰炼 曹凯月 刘芳棋 小金
    新媒体:王贝贝 严洁 张文一
    技术:丁德昌
    最终解释权归金腾奖主办方所有