/
作品详情
  • Details of the work 标题横线
    头像或者logo
    图片 池铭瑞 青设荟(西安)文化有限公司特约推荐
    城市:西安市
    公司: 西安一念至造设计事务所
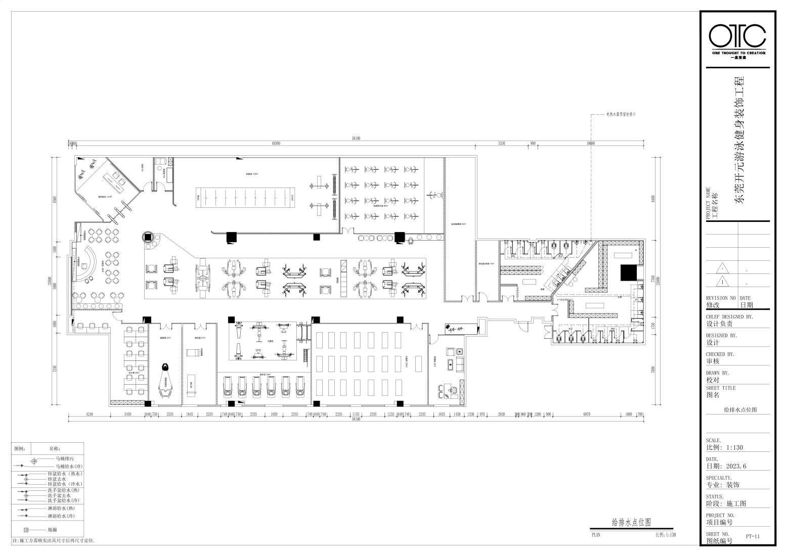
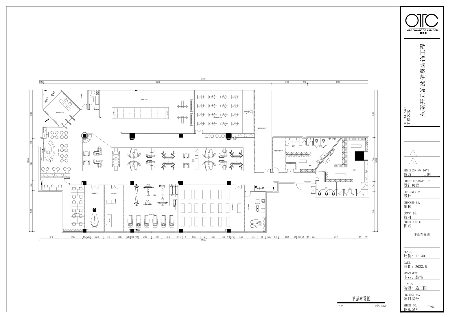
    参赛作品: 开元游泳健身
    空间类型:商业
    个人/公司简介:
    西安一念至造设计事务所设计总监
    设计说明 | Design Instruction
  • 在当今时代,绿色低碳可持续发展已成为设计领域的追求,在健身空间更是将这一理念深入贯彻到每一个细节。 从设计伊始,我们便充分考虑了自然通风,良好的通风系统确保空气自然流通,营造清新舒适的健身环境,告别传统空间的闷热与浊气。 在材料选择上,我们坚持选用环保、可回收的材质。从墙面装饰到地面铺设,每一处材料都经过严格筛选,确保无毒无害。不仅具有出色的耐用性,减少了更换频率,还能带来更加安全健康的运动体验。 此外,我们的健身空间还配备了高效节能的照明设备和运动器材。照明设备在满足照明需求的同时,最大限度地降低能耗。 我们致力于打造一个不仅能满足健身需求,更可持续发展的良性健身空间。 在尽情享受健身的同时也为绿色低碳的未来贡献一份力量。
  • 图片
  • 图片
  • 图片
  • 图片
  • 图片
  • 图片
  • 图片
  • 图片
  • 图片
  • 图片
  • 图片
  • 图片
  • 图片
  • 图片
  • 图片
  • 图片
  • 图片
  • 图片
  • 图片
  • 上一个 下一个
    2025第九届金腾奖 私宅空间 | 旅居空间 | 城市功能空间 | 人气设计师 | NEW100 jintengAWARD(小金_金腾奖组委会) 广州市海珠区琶洲大道68号华新中心21楼
    金腾奖视频号 金腾奖小红书号 监制:余佳灵
    统筹:张俊媚
    运营:赖钰炼 曹凯月 刘芳棋 小金
    新媒体:王贝贝 严洁 张文一
    技术:丁德昌
    最终解释权归金腾奖主办方所有