Huatong Tower Apartment, Jing'an District, Shanghai
作品详情
  • Details of the work 标题横线
    头像或者logo
    图片 沈大楠
    城市:上海市
    公司: 上海浅观空间设计工作室(个人独资)
    参赛作品: 上海市静安区华通大厦项目
    空间类型:平层(150㎡以上)
    个人/公司简介:
    沈大楠先生是一位资深的建筑师与创意总监,拥有超过10年的建筑设计经验。沈大楠曾在知名建筑事务所一Arquitectonica工作多年,参与并完成了瑞虹新城太阳宫、苏州中心、经纬等多个商业建筑项目。2015年开始,沈大楠涉足室内设计领域,主导了多个住宅及商业项目,并屡获业内知名奖项。这些丰富的经验体现了其在室内空间设计及创意领域追求卓越与创新的坚定信念。
    设计说明 | Design Instruction
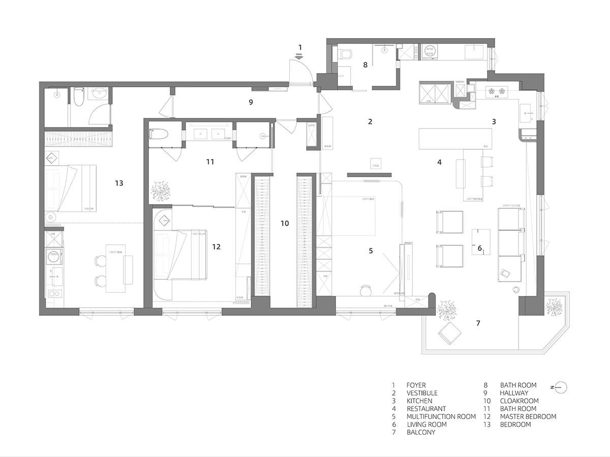
  • 这套位于静安区的220㎡大平层,以“开放与灵活”为设计核心,创新性地重构了住宅空间逻辑,巧妙地分隔成两套户型:一套自住,一套出租。实现了"一宅两用"的居住方案——主居空间与出租单元和谐共存。 空间重塑 入户后,通过开放式走道串联全屋的3大功能空间—共享客厅、主人套房、客人房。共享客厅作为核心社交场域,为所有居住者提供互动空间;而主人套房则单独配备智能门禁系统,在业主外出时该空间完全独立,既维持了日常生活的便利性,又周全地保障了私人空间的隐秘性。主客动线泾渭分明,精心规划的流线系统既保持空间的连贯性,又赋予每个区域独立的功能属性。这种突破性的空间布局完美平衡了居住品质与资产收益的双重需求。 功能创新 通过开放式走道进入到8.5米宽的共享客厅空间,LDK开放式的布局不仅最大化地引入了自然光线,更创造了流畅的生活动线,让家人间的互动交流自然而然地发生。设计师通过一道2.4米墙体,将横厅划分为两个功能区域——2/3的空间作为主客厅满足会客需求,1/3的空间则被打造为一个集客厅延展区、开放式书房、客卧、休闲区于一体的复合空间。这一设计突破传统客厅单一功能定位,完美诠释了现代都市住宅"一宅多用"的弹性生活哲学。 L型厨房位于共享客厅的一角,通过大理石岛台形成高效的洄游动线,既保持了视觉的连贯性,又确保了烹饪区的相对独立。围绕厨房岛台,一张可伸缩折叠的餐桌完美地嵌入其中——展开时可舒适容纳5人共进晚餐;收起时则与岛台融为一体,将宝贵的活动空间彻底释放给客厅区域。 主人房以"酒店式舒适"为基底,将睡眠区、衣帽间、卫生间三大功能进行一体化整合,整体布局如同酒店般舒适便捷。睡眠区则巧妙融入东方美学意境,打造出兼具现代便利与人文气息的私密空间。 客人房采用"三段式"高效布局,将卫浴、睡眠区、餐厨区三大功能模块沿轴线依次排布,形成流畅的生活动线。这种布局保留了酒店式客房的实用功能,完美适配短期留宿与长期居住的不同需求。 人与自然共存 设计师在整个空间中多处引入了自然元素,主卫背景墙延续了岛台的流沙绿大理石元素,精妙的材质搭配与人性化设计,成就了一处令人心旷神怡的私密绿洲。阳台被重塑为一处充满生机的迷你庭院,形成了人与自然对话的生态窗口。 这套大平层的设计没有夸张的设计手法,也没有刻意追求风格,而是用开放布局、灵活分区和材质搭配,完美诠释了"形式追随功能"的设计真谛。
  • 图片
  • 图片
  • 图片
  • 图片
  • 图片
  • 图片
  • 图片
  • 图片
  • 图片
  • 图片
  • 图片
  • 图片
  • 图片
  • 图片
  • 图片
  • 图片
  • 图片
  • 图片
  • 图片
  • 图片
  • 图片
  • 图片
  • 图片
  • 上一个 下一个
    2025第九届金腾奖 私宅空间 | 旅居空间 | 城市功能空间 | 人气设计师 | NEW100 jintengAWARD(小金_金腾奖组委会) 广州市海珠区琶洲大道68号华新中心21楼
    金腾奖视频号 金腾奖小红书号 监制:余佳灵
    统筹:张俊媚
    运营:赖钰炼 曹凯月 刘芳棋 小金
    新媒体:王贝贝 严洁 张文一
    技术:丁德昌
    最终解释权归金腾奖主办方所有