Using cell regeneration to trace the vitality of space
作品详情
  • Details of the work 标题横线
    头像或者logo
    图片 西安四月初吉环境艺术设计工程有限公司
    城市:西安市
    公司:西安四月初吉环境艺术设计工程有限公司
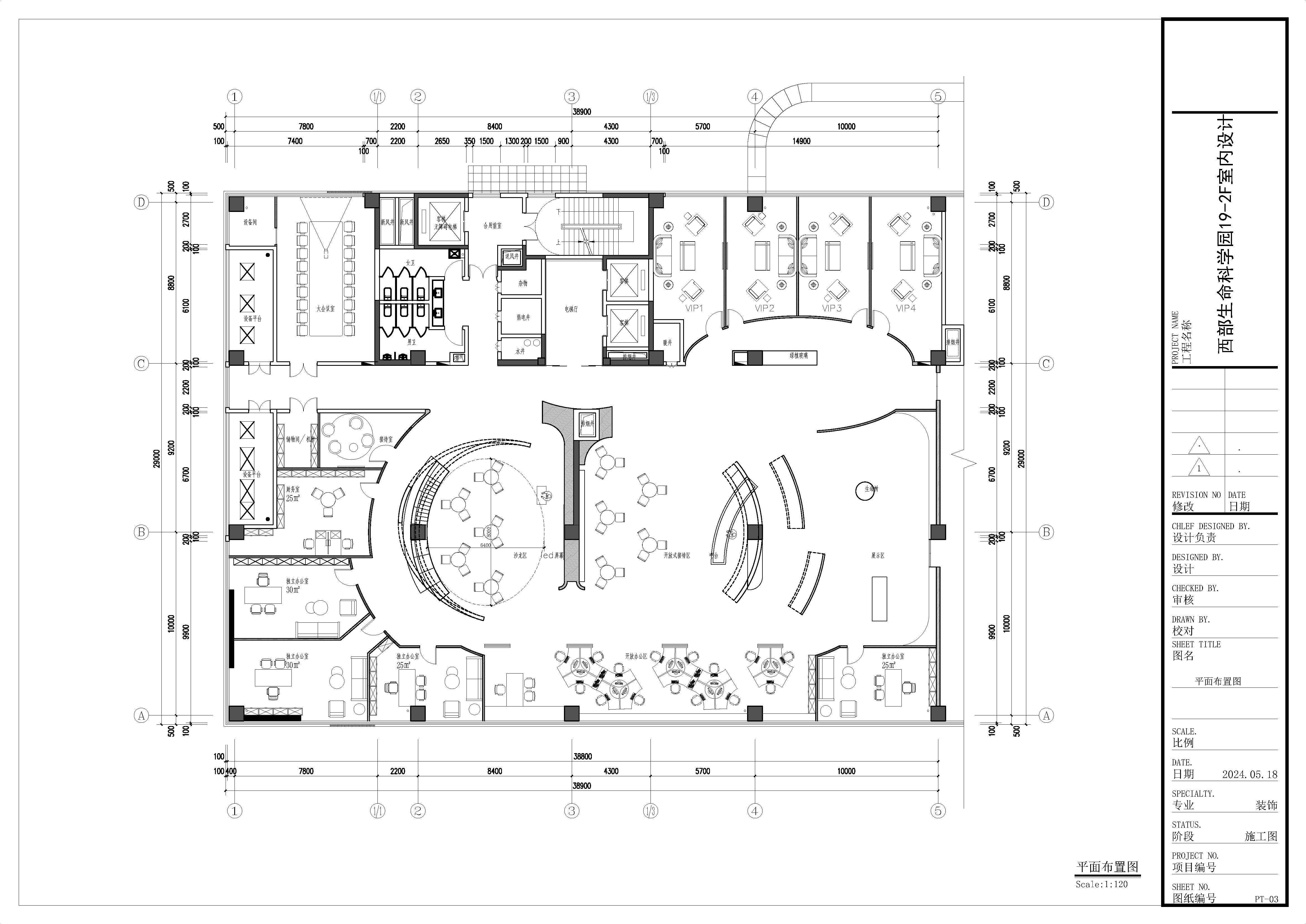
    参赛作品: 用细胞再生,追溯空间生命力
    空间类型:办公
    个人/公司简介:
    公司为2017年成立以设计学院为主导,综合实力强的专业设计机构。公司为酒店餐饮、商业办公、高端会所及豪宅地产等大型企业提供综合性的室内专业设计服务。先后为凯悦、万丽、云缦山庄等星级酒店进行艺术品设计及升级。参与并完成了多家大型房地产企业的售楼中心及样板房的设计与施工,设计师团队多次荣获国内外设计大奖,设计团队凝聚力,创造力一直是四月初吉生存和发展的动力。公司邀请多名各大美院教授共同参与监督设计工作,并构架起公司的核心领导层,建立了一整套科学、严谨的企业内部管理模式和工作流程。公司现有来自不同区域文化和学术背景的多名设计人员,是一家极富综合实力的艺术设计公司。
    设计说明 | Design Instruction
  • 《用细胞再生,追溯空间生命力》以“细胞、绿色、再生”为核心理念,通过采用弧形墙面、玻璃材质和环保艺术涂料,为奇迈健康公司打造了一个现代、生态、科技的公共办公空间。开放式的工作区和私密讨论区通过流畅的弧形设计和玻璃隔断相互融合,既增强了空间的流动性,又提供了必要的隐私。休闲放松区和展示区则通过环保材料的使用,营造出舒适且具有科技感的环境。这一设计不仅提升了工作空间的功能性和舒适度,也体现了公司对创新与可持续发展的承诺。
  • 图片
  • 图片
  • 图片
  • 图片
  • 图片
  • 图片
  • 图片
  • 图片
  • 图片
  • 图片
  • 图片
  • 图片
  • 图片
  • 上一个 下一个
    2025第九届金腾奖 私宅空间 | 旅居空间 | 城市功能空间 | 人气设计师 | NEW100 jintengAWARD(小金_金腾奖组委会) 广州市海珠区琶洲大道68号华新中心21楼
    金腾奖视频号 金腾奖小红书号 监制:余佳灵
    统筹:张俊媚
    运营:赖钰炼 曹凯月 刘芳棋 小金
    新媒体:王贝贝 严洁 张文一
    技术:丁德昌
    最终解释权归金腾奖主办方所有