Cloud roll
作品详情
  • Details of the work 标题横线
    头像或者logo
    图片 物象构造
    城市:西安市
    公司:物象构造
    参赛作品: 云卷
    空间类型:商业
    个人/公司简介:
    物象构造——用设计感悟生命。
    设计说明 | Design Instruction
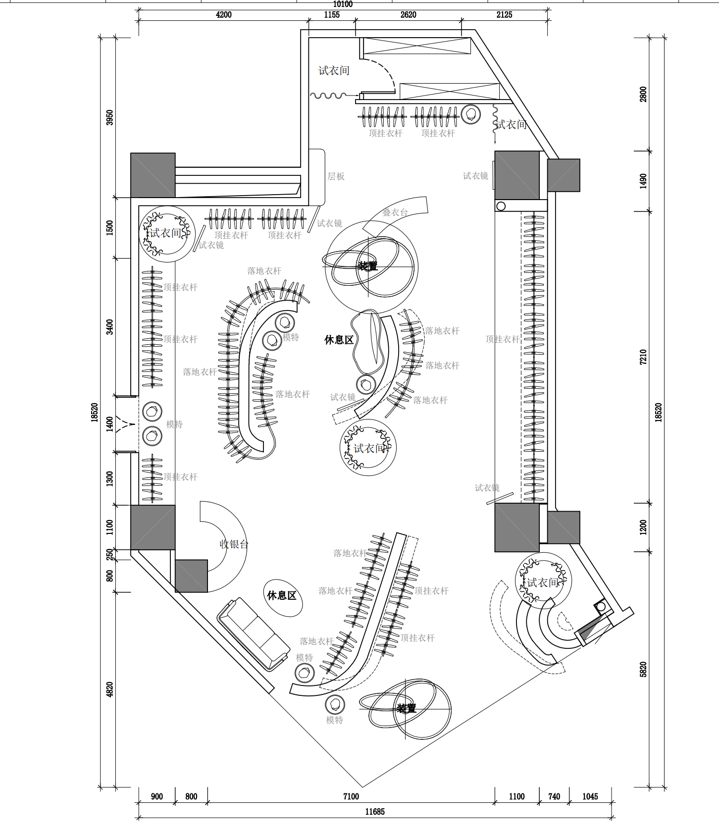
  • 灵感来源:蔽日下,卷云随着风之气息,或卷起、或残角... 提取元素:汲取云之形态、绽放之色彩、扬起之纹理,结构重组,将自然之美融入空间之中。 空间布局:以看似不规则的方式贯穿整个空间,打破固有的消费体验,营造出自由多变、包容的气氛,同时模糊空间中的功能性,置身其间可以自由穿梭或驻足,在全然放松的状态中寻得轻盈感觉。利用解构的手法搭配软膜这类可塑性较高的材料,设计了多组贯穿整个空间的白色弧形立面,形成了一个极具吸引力的对外界面。软膜采用内发光设计,大型的照明区域提升了整个空间的感官体验并营造出独特的环境光,并辅以顶灯的组合为衣服和客户创造了独具吸引力的光场景。极简黑白灰的整体基调是整个空间的核心,让不规则的场域得到舒适的统一。同时将镜面融入到空间的各个角落成为空间中的重要元素,增加了空间的视觉层次给空间带来无限的延伸感。同时它鼓舞并吸引人们靠近,利用镜子反映出客人与空间、与产品、与自己的互动。以错落构成的弧形墙重新赋予空间的次序,以模块化的形式层叠围合出空间的流动性,无常的曲面赋予空间自由的形态,运动中的流线围合出不同的功能分区,让空间互为联动却又能各自独立存在。 空间动线:在空间动线的设计上我们有别于传统意义上的商业空间,摆脱了直接的单动线设计,避免顾客从店门口一眼看到底。而我们在空间的考量上允许客户走回头路,甚至在其间驻足观赏。这种漫游式的、沉浸式的空间体验增加了客户进入店铺的可能性,再通过优雅简单的动线让人在空间中巧妙地被引到深处,使客人能主动地探索整个空间,不仅满足了快节奏生活下人们的好奇心,也延长他们选购和徜徉的时间。 设计目标:以创新融合为核心,创造出一个具有艺术感染力的空间环境;更是一个当代女性随时都可沉浸其中的秀场。
  • 图片
  • 图片
  • 图片
  • 图片
  • 图片
  • 图片
  • 图片
  • 图片
  • 图片
  • 图片
  • 图片
  • 图片
  • 图片
  • 图片
  • 图片
  • 上一个 下一个
    2025第九届金腾奖 私宅空间 | 旅居空间 | 城市功能空间 | 人气设计师 | NEW100 jintengAWARD(小金_金腾奖组委会) 广州市海珠区琶洲大道68号华新中心21楼
    金腾奖视频号 金腾奖小红书号 监制:余佳灵
    统筹:张俊媚
    运营:赖钰炼 曹凯月 刘芳棋 小金
    新媒体:王贝贝 严洁 张文一
    技术:丁德昌
    最终解释权归金腾奖主办方所有