YUNCHUSHIYUE
作品详情
  • Details of the work 标题横线
    头像或者logo
    图片 H DESIGN STUDIO 艾驰设计工作室
    城市:西安市
    公司:H DESIGN STUDIO 艾驰设计工作室
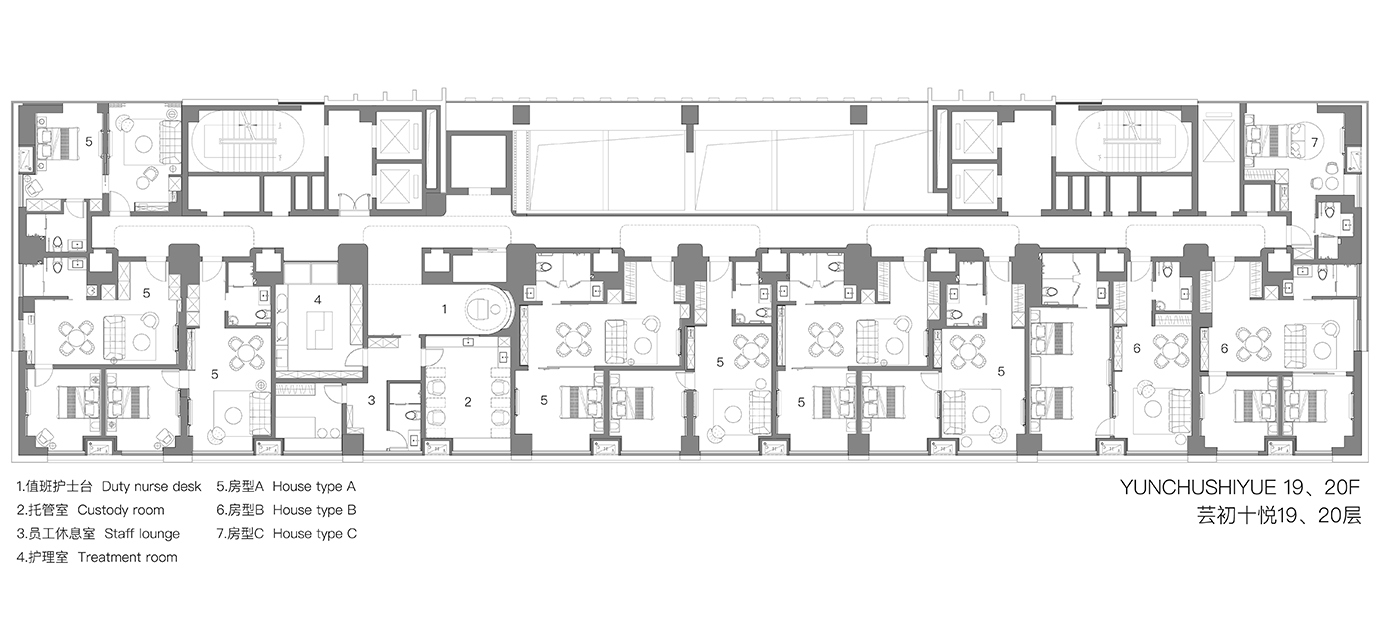
    参赛作品: 芸初十悦
    空间类型:商业
    个人/公司简介:
    艾驰设计 H DESIGN 自2020年创立伊始,汇聚了一批拥有海外工作经验及学术背景的设计团队,主要从事办公空间、商业空间、地产空间、精品酒店空间、公共文化空间、高端私宅等设计项目。团队从多维度深入研习,专注于设计的精炼、打磨与本质回归,在深度钻研自我风格的同时,不断的探索多元化的设计方向,潜心研究空间的设计逻辑思维方式,致力于为客户提供高品质个性化的定制服务。
    设计说明 | Design Instruction
  • 芸初十悦委托艾驰设计为品牌打造在西安的首家母婴护理门店,该项目位于一栋传统的柱网结构建筑内,设计师巧妙地将细胞裂变的生物学原理融入空间设计中,通过不同大小的圆形重新构筑空间布局,打破了直角空间的尖锐与冰冷,柔化了空间自身的情绪,使之更加柔和松弛,同时营造了丰富的美学线条和空间层次感。 流线型的设计和曲面元素的结合,成功打破了原有空间的方正与单调,引导顾客在环形的动线中自如穿梭。卷曲的墙体不仅塑造了有机形态的空间结构,更成为了连接各个功能区的桥梁,实现了墙面、地面与天花的和谐统一。 空间色彩以跃动的红色为主导,协同圆形曲面共同建构了整个空间容器的张力。色彩巨大的反差与引导性为客户在视觉和心理上印记了美好的瞬间,同时激发客户内心的治愈感。 变色龙的世界是多紫多彩的,这种神奇的爬行动物,以其独特的变色能力而闻名于世。它们能够根据环境、情绪甚至交流的需求,迅速改变自身的体色,从而适应环境场合的需求。 传统的母婴护理,往往忽略客户的情绪变化及情感需求。为此设计师从变色龙汲取灵感,通过色彩的变化快速转换客户的情绪,将接待空间的跃动红色过度到休息空间的静谧奶油色。从热情洋溢到舒适松弛,深入洞察并细腻呵护客户的心理需求,营造出一处沉静而宁谧的空间,让顾客得以在此彻底放松身心。 产后康复是一个循序渐进的旅程,为了让客户能够充分的适应被赋予的崭新角色和全新生活,提供一个宽敞的私人空间和宁静的休闲区域是产康空间设计的核心要素。因此,确保设计的功能性和私密性是至关重要的。设计师精心规划了多样化的房型空间,以满足不同客户的需求和场景。通过巧妙的空间布局和流畅的动线设计,将产康空间安置在走廊的尽端,有效地划分了动静区域,确保了康复环境的隐私性,为客户提供了理想的产康空间。 设计师希望空间氛围能够间接地影响人的心理状态,因此材料选择更加考究,木纹砖、水磨石、艺术涂料、仿生形态的夹丝亚克力板使空间一切形态趋于自然,以达到人与自热共栖的设计理念。 以现代建筑空间美学为基础,从精神层面着手,这一特殊时期被塑造为一趟短暂而愉悦的度假之旅,为使用者带来心灵的慰藉。
  • 图片
  • 图片
  • 图片
  • 图片
  • 图片
  • 图片
  • 图片
  • 图片
  • 图片
  • 图片
  • 图片
  • 图片
  • 图片
  • 图片
  • 图片
  • 图片
  • 图片
  • 图片
  • 图片
  • 图片
  • 图片
  • 图片
  • 图片
  • 图片
  • 图片
  • 图片
  • 图片
  • 图片
  • 上一个 下一个
    2025第九届金腾奖 私宅空间 | 旅居空间 | 城市功能空间 | 人气设计师 | NEW100 jintengAWARD(小金_金腾奖组委会) 广州市海珠区琶洲大道68号华新中心21楼
    金腾奖视频号 金腾奖小红书号 监制:余佳灵
    统筹:张俊媚
    运营:赖钰炼 曹凯月 刘芳棋 小金
    新媒体:王贝贝 严洁 张文一
    技术:丁德昌
    最终解释权归金腾奖主办方所有