LiberHaven
作品详情
  • Details of the work 标题横线
    头像或者logo
    图片 祁文杰 貳道杠特约推荐
    城市:苏州市
    公司: 苏州威迪设计
    参赛作品: 自由朴居
    空间类型:公寓(150㎡以下)
    个人/公司简介:
    威迪设计创立于2018年,是一家集规划策划、室内设计、软装设计、软装整包、硬装为一体的全案设计公司。我们坚持不忘初心,以创造具有丰富内涵与生活趣味的设计为核心,将作品落地,客户满意视为已任。凭借良好的设计出品与客户口碑相传,成熟独到的设计管理,完整链条的执行标准与服务体系,威迪设计在众多工作室中脱颖而出,得到众多精英客户的认可。
    设计说明 | Design Instruction
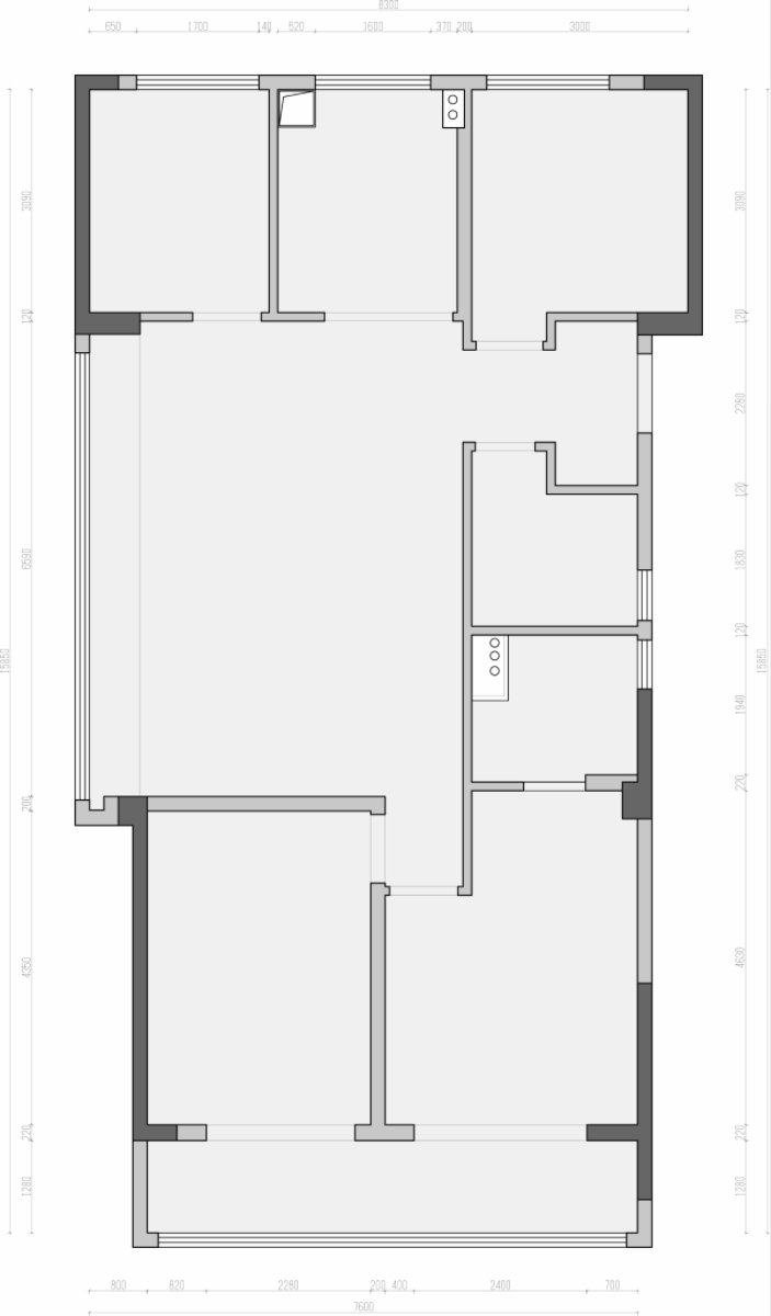
  • 本案坐落于杭州钱塘江南岸的绿城沁桂轩,业主是一位对生活美学有着极致追求的都市精英。这座居所不仅要满足功能需求,更需承载独特的生活意境与艺术格调。 在萧山区这片配套醇熟的土地上,我们面对的是一套亟待蜕变的精装房。历经三家设计公司的比选,业主最终将信任交付于我们,期待我们为这个空间注入灵魂。六米五的景观飘窗成为设计的点睛之笔,在延展城市视野的同时,更构筑了一方诗意栖居的天地。 材质的选择彰显着非凡的品味:白洞石地砖铺就时光的肌理,黄洞石岩板墙面诉说自然的韵律,红洞石茶几沉淀岁月质感。胡桃木色饰面与黑橡木西厨台面交织出温暖的层次,做旧金属饰面则为空间增添一抹工业美学的张力。这些精心配比的材质语言,共同谱写了一曲复古与现代共鸣的空间乐章。 我们以设计解构精装房的同质化桎梏,通过精准的空间叙事,将实用美学提升至艺术高度。每一处细节都暗藏巧思:功能布局遵循黄金动线,材质碰撞激发视觉张力,光影设计营造戏剧氛围。这不仅是对物理空间的改造,更是一场关于生活方式的革命。 最终呈现的,是一个超越居住本质的艺术居所。在这里,功能与美学达成完美平衡,日常起居升华为充满仪式感的生命体验。这个家,已然成为业主精神世界的物化呈现,在城市的喧嚣中,构筑了一处安放身心的诗意栖居。
  • 图片
  • 图片
  • 图片
  • 图片
  • 图片
  • 图片
  • 图片
  • 图片
  • 图片
  • 图片
  • 图片
  • 图片
  • 图片
  • 图片
  • 图片
  • 图片
  • 图片
  • 图片
  • 图片
  • 图片
  • 图片
  • 图片
  • 图片
  • 图片
  • 图片
  • 图片
  • 图片
  • 图片
  • 图片
  • 图片
  • 图片
  • 图片
  • 图片
  • 上一个 下一个
    2025第九届金腾奖 私宅空间 | 旅居空间 | 城市功能空间 | 人气设计师 | NEW100 jintengAWARD(小金_金腾奖组委会) 广州市海珠区琶洲大道68号华新中心21楼
    金腾奖视频号 金腾奖小红书号 监制:余佳灵
    统筹:张俊媚
    运营:赖钰炼 曹凯月 刘芳棋 小金
    新媒体:王贝贝 严洁 张文一
    技术:丁德昌
    最终解释权归金腾奖主办方所有