Mhouse
作品详情
  • Details of the work 标题横线
    头像或者logo
    图片 成森
    城市:常州市
    公司: 東亼设计
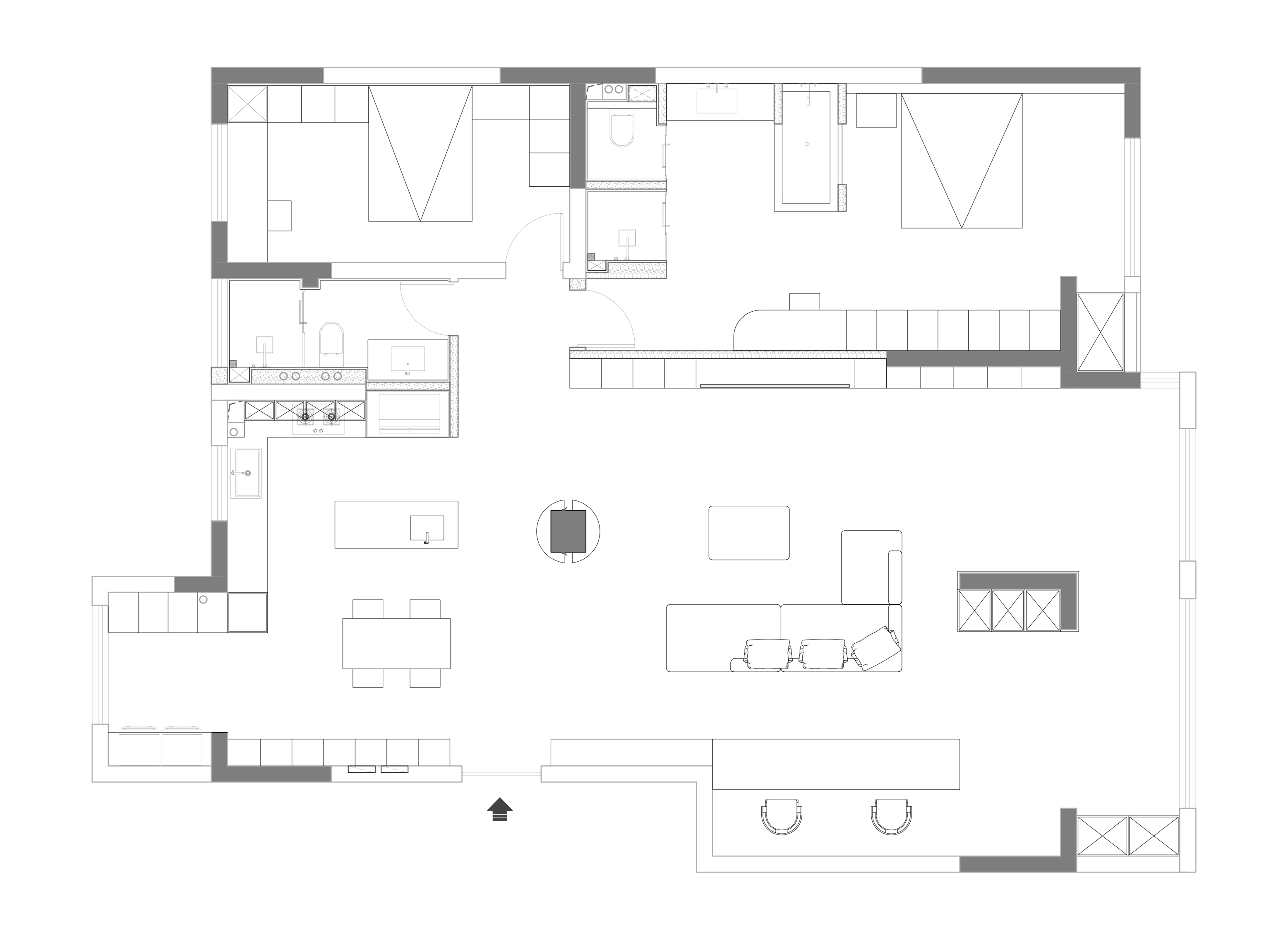
    参赛作品: M住宅
    空间类型:平层(150㎡以上)
    个人/公司简介:
    東人设计于2023年成立在江苏常州。是一家多元化的设计公司。专注于住宅,商业空 间及小型的单体建筑。擅长项目陪伴式成长,以落地交付为主要服务目标。 我们主张用自然质朴的,从人情感出发的材质去表达空间。拒绝"多余"的设计,因此 对于审美我们一直保持着宽泛的态度。以人为核心的空间,是我们一直追求和表达的。 让设计能够真正的"长期主义”。
    设计说明 | Design Instruction
  • 项目地址位于常州市蔚蓝天地,业主是一对新婚夫妻,一起居住的还有两只小猫。 家的意义,不仅是居住场所,更是长久而稳定的精神依靠。 我们想要打造的, 也是一个能让业主放松、充电、感受平静安稳的居住空间, 是温暖的栖息地。 客厅做了斜顶的处理,弱化梁体同时最大程度保证层高,增加空间层次感。 从外形上看,像鸟儿的翅膀, 是鸟儿的停留,体现栖息地的寓意。 我们将原有的三居改成两居,保证客餐厅的通透性,满足业主平时在公区的生活需求,并合理规划每个空间的功能性。 沙发后的区域用定制书桌分隔,不仅打造了具有安全感的书房一角, 同时又保证与其它空间的柜体在同一平面。 这不仅体现了空间的完整性,也诠释了主理人对于极简空间设计的极度思考。 客厅空间的承重墙部分,主理人并没有将其刻意隐藏, 将其一用圆柱的造型凸显,在一定程度上起到了空间分隔的作用, 其二用柜体弱化,保证空间的收纳功能。 一左一右,一黑一白,成为了家的“支柱”。 敞开式厨房打破空间限制,客餐厅宽敞明亮,动线自由, 北阳台为空间提供了洗衣功能,独立且不突兀。 空间的每个部分井然有序,“各司其职”,将极简的理念贯彻至细微之处。 我们在每个空间都尽可能保留最多的收纳功能,在一定程度上实现“少即是多”的设计理念, 去掉一切装饰,追求纯净形式。 我们希望空间是理性的、功能的,不是简单的将其形式简化, 而是在材料、结构、工艺上下功夫,将简化与细节并存。 主卧运用无靠背床,增加过道空间。床头柜打破常规,用壁龛的形式,增强空间趣味性。 卫生间与卧室之间半开敞,墙面的矩形区域让实体墙不再沉闷,有了视线的延伸,空间与空间之间有了交流与联系。 同时也可作为壁龛使用,放置一些泡澡需要的沐浴用品。 每个设计的运用,不仅限于装饰,而是最大化的利用其功能性服务于空间, 让“人”的生活,更方便。
  • 图片
  • 图片
  • 图片
  • 图片
  • 图片
  • 图片
  • 图片
  • 图片
  • 图片
  • 图片
  • 图片
  • 图片
  • 图片
  • 图片
  • 图片
  • 图片
  • 图片
  • 图片
  • 图片
  • 图片
  • 图片
  • 图片
  • 图片
  • 图片
  • 图片
  • 图片
  • 图片
  • 图片
  • 图片
  • 图片
  • 图片
  • 图片
  • 图片
  • 上一个 下一个
    2025第九届金腾奖 私宅空间 | 旅居空间 | 城市功能空间 | 人气设计师 | NEW100 jintengAWARD(小金_金腾奖组委会) 广州市海珠区琶洲大道68号华新中心21楼
    金腾奖视频号 金腾奖小红书号 监制:余佳灵
    统筹:张俊媚
    运营:赖钰炼 曹凯月 刘芳棋 小金
    新媒体:王贝贝 严洁 张文一
    技术:丁德昌
    最终解释权归金腾奖主办方所有