Zhengfu Architectural Design (Ningbo) Firm
作品详情
  • Details of the work 标题横线
    头像或者logo
    图片 宁波正负建筑设计有限公司 宁波市室内设计师协会特约推荐
    城市:宁波市
    公司:宁波正负建筑设计有限公司
    参赛作品: 正负建筑设计(宁波)事务所
    空间类型:办公
    个人/公司简介:
    宁波正负建筑设计有限公司是一家致力于专业设计的公司,主要室内项目类型为(酒店、会所、豪宅、地产、办公、商业空间),建筑项目为小型创意类,擅长从方案到落地高度把控力。
    设计说明 | Design Instruction
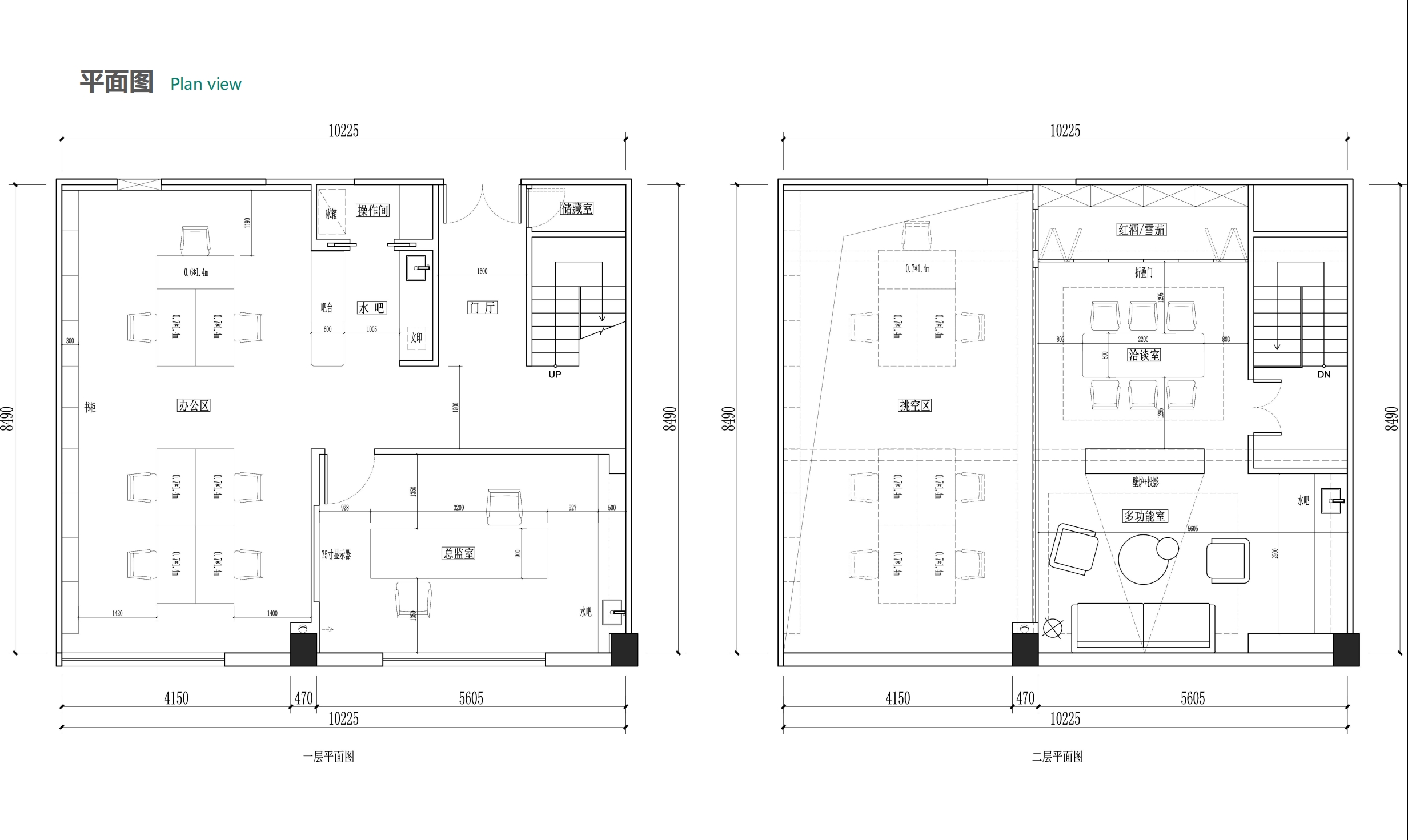
  • 前言:事务所的整体空间分为两层:一层设计办公区,二层接待休闲区。整个空间以现代极简风格为主,同时注重细节的极致把控。设计中摒弃了多余的材料堆砌,通过巧妙利用自然光与灯光设备的配合,展现了空间的整体美感与功能性。 极简与细节的结合:入口设计以极简风格为主,我们在注重细节处理的同时,深入推敲了主入口的空间仪式感及动线的合理性。通过左右对称的六束光影效果,营造出空间入口的层次感与仪式感。墙面上下采用内凹工艺缝,地面瓷砖的排版也经过精心设计,这些细节都体现了公司对空间品质的严谨追求,而非简单的材料堆砌。正如设计行业常说的以人为本,我们通过合理的设计手法,即使是普通的材质,也能打造出高级感。 舒适和功能的结合:我们在设计阶段充分考虑了主入口的功能分区。入口左侧为通往二层独立接待室的楼梯,右侧则为办公区,实现了整个空间的动静分离。该空间的原始层高约为4.8米,为了给员工提供最大化的工作舒适度,我们将其设计为挑空区,提升了空间的通透感。顶面左侧的“S”形弧度设计并非单纯为了造型,而是为了解决建筑大梁和空调风道的功能性需求。整个吊顶设计将美学与功能融为一体,中间的细节凹缝贯穿整个空间,形成了层次感。右侧结合空调风管处理,增设了一整排暗门储藏柜,既满足了收纳需求,又保持了空间的整洁与美观。 专业和休闲的结合:配套设施齐全的水吧区能满足工作时间以外的任何需求。这里为设计师提供了一个放松身心的休闲空间。在疲惫的工作间隙,谁能抗拒一杯美味下午茶的诱惑呢? 灯光和空间的结合:位于空间最高位的三盏射灯从中心向两侧等距排列,既不喧宾夺主,又保持了视觉平衡;中位的一盏落地灯将柔和的光线投射到墙面,为使用者提供了充足的照明;而相对低位的陈列区则通过背景灯带营造出浓郁的氛围感。整个空间无需过多光源,却通过巧妙搭配实现了完美的照明效果。与其他空间一致的是,硬装设计摒弃了材料的堆砌,仅在空间中心放置了一张3米长的岩板桌。这种简洁的设计语言为空间使用者的想象力提供了充分的发挥空间。 自然光和空间的结合:在设计推敲阶段,整个空间的方案既充满挑战又颇具趣味。挑战在于,二层隔层完成后,地面到大梁底的高度有限,且原始弧形顶面上方是陈旧的玻璃采光顶,需要综合考虑设备、采光和隔热的处理方式。而趣味性则体现在二层空间的设计中,我们可以在基础条件的限制下发挥想象力,创造出独特的空间体验。最终,我们结合二层大梁和原始玻璃采光顶的特点,确定了现有方案:墙面的圆孔作为空调出风口,由于原始结构的限制,空调内机和风管的位置经过特殊设计,以确保二层保留舒适的层高。梁下沿采用与一层相同的内凹工艺缝手法,使细节贯穿整个二层空间,同时弱化了酒精壁炉正上方大梁的存在感,将其转化为工艺体块的造型。吊顶的弧形处理也别具匠心:白天,日光从斜口缝隙洒入,投射在侧面弧形吊顶上,形成一道灵动光影,为二层空间增添了趣味性。这道光影会随着时间和天气的变化而改变,通过自然光的微妙变化,让人感知时间与天气的流转,增强了人与空间的互动性,使整个空间焕发出独特的生命力。 真火壁炉的极致氛围感:二层空间的中轴线位置放置了一个酒精壁炉,一侧是舒适的沙发休闲区,另一侧则摆放了一张可容纳八人的长桌作为洽谈区。即使在寒冷的冬日,仅凭这个壁炉便能满足整个二层的供暖需求。真实的火焰不仅温暖了空间,更营造出独特的氛围感,为整个区域增添了温馨与活力。
  • 图片
  • 图片
  • 图片
  • 图片
  • 图片
  • 图片
  • 图片
  • 图片
  • 图片
  • 图片
  • 图片
  • 图片
  • 图片
  • 图片
  • 图片
  • 上一个 下一个
    2025第九届金腾奖 私宅空间 | 旅居空间 | 城市功能空间 | 人气设计师 | NEW100 jintengAWARD(小金_金腾奖组委会) 广州市海珠区琶洲大道68号华新中心21楼
    金腾奖视频号 金腾奖小红书号 监制:余佳灵
    统筹:张俊媚
    运营:赖钰炼 曹凯月 刘芳棋 小金
    新媒体:王贝贝 严洁 张文一
    技术:丁德昌
    最终解释权归金腾奖主办方所有